بهنام ندیمی

بهنام ندیمی

کاربر حقیقی بازدید:
رتبه 352
امتیاز 187

درباره من

بیوگرافی ثبت نشده است

موقعیت مکانی پروژه‌ها

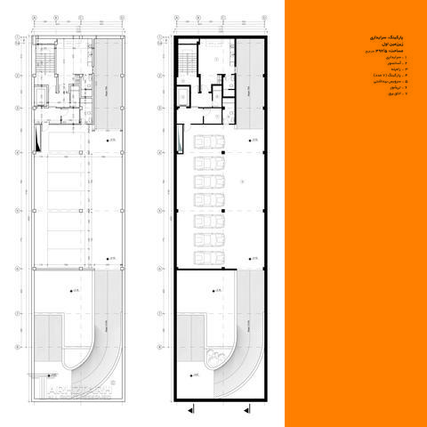
متراژ زیر بنا: 3200 متر مربع
متراژ زمین: 612 متر مربع
شهر تهران- آجودانیه- کوچه سیزدهم
سال انجام: 1402
وضعیت: پایان یافته
کارفرما: امیری
متراژ زیربنا: نامشخص
متراژ زمین: نامشخص
کاربری: نامشخص
شهر:
نقش: نامشخص
سال انجام: 1398
وضعیت: نامشخص
متراژ زیر بنا: 5500 متر مربع
متراژ زمین: 600 متر مربع
شهر تهران جردن
سال انجام: 1401
وضعیت: پایان یافته
کارفرما: علیرضا توکلی

تخصص‌ها

  • خدمات طراحی و کانسپت طراحی نورپردازی - طراحی پلان (نقشه معماری) فاز 1 - طراحی نما
پیشنهاد و بازخورد