نفر 1 - وحید میردار

نفر 2 - چارچوب استودیو

نفر 3 - درسا بهرامی

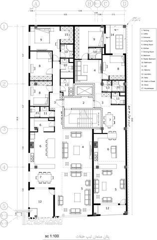
طرح های ارسالی

پیشنهاد و بازخورد