0
طراحان
طراحان برتر
رزومه طراحان
پرسشهای متداول طراحان
آرشیو مسابقات
خدمات منتورینگ
متقاضیان طراحی
خدمات ما
درخواست مشاوره
پرسش های متقاضیان طراحی
خدمات منتورینگ
قیمت طراحی
طراحی مسکونی/ اداری/ تجاری
طراحی ویلا
خدمات طراحی
نوع خدمات
قیمت طراحی نما
قیمت طراحی پلان
کاربری ساختمان
قیمت طراحی ویلا
قیمت طراحی مسکونی
قیمت طراحی اداری/تجاری
مجله طرح تو طرح
پیشنهادها و بازخورد
ورود | ثبت نام
ورود/ثبت نام
مجله
کاربران
مسابقات
خانه
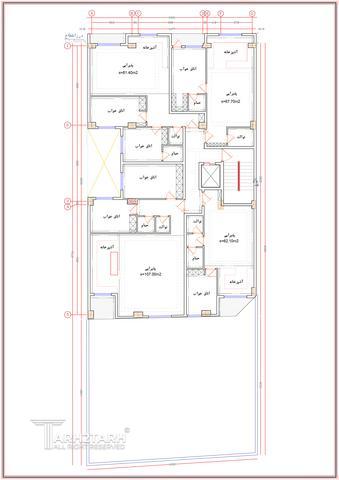
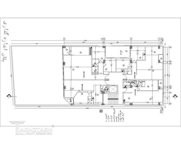
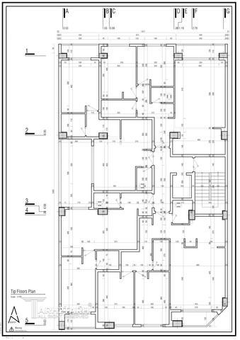
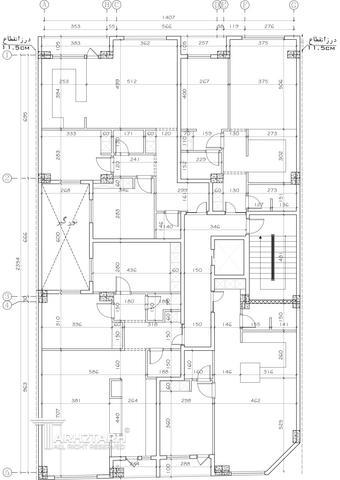
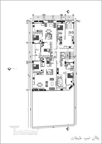
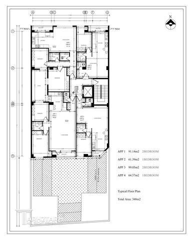
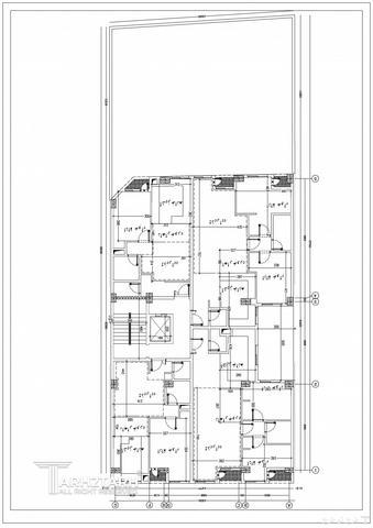
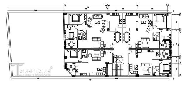
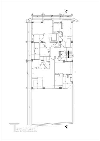
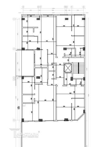
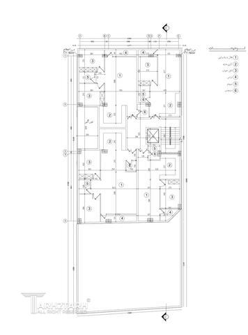
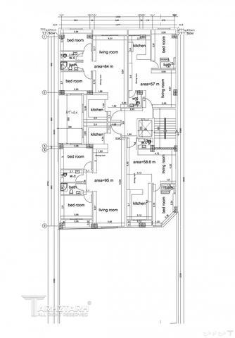
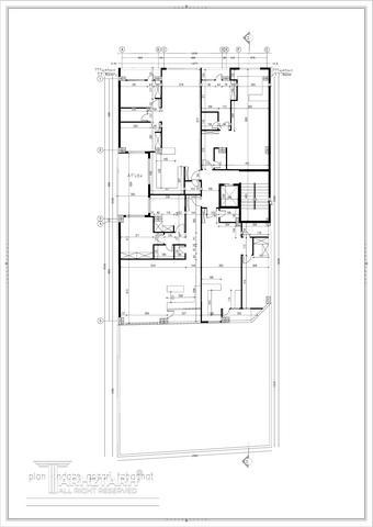
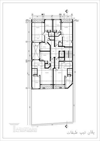
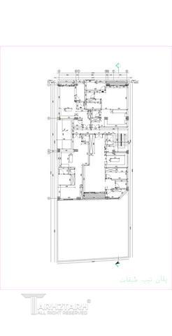
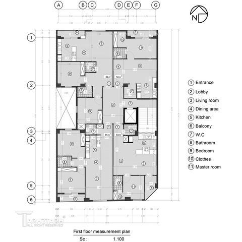
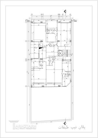
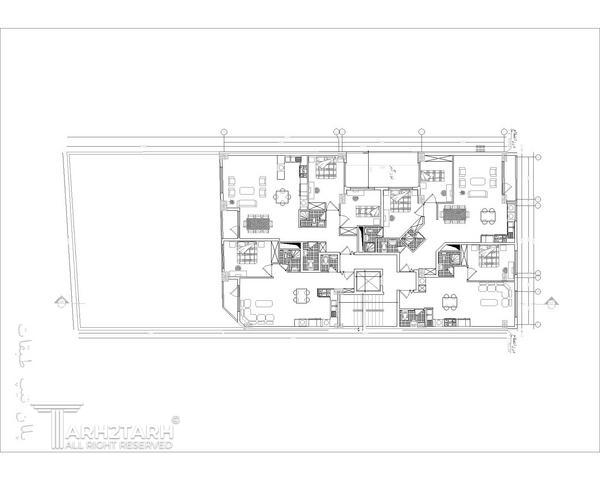
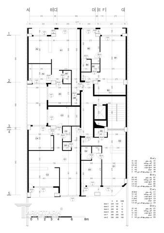
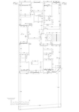
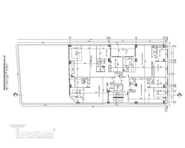
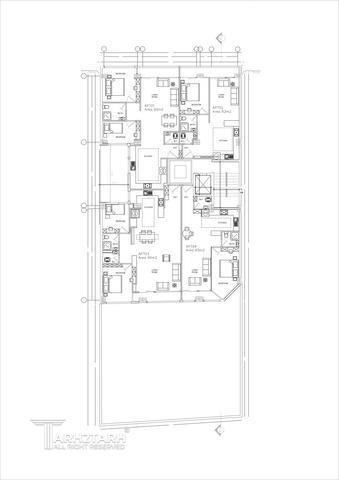
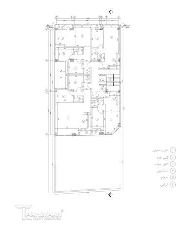
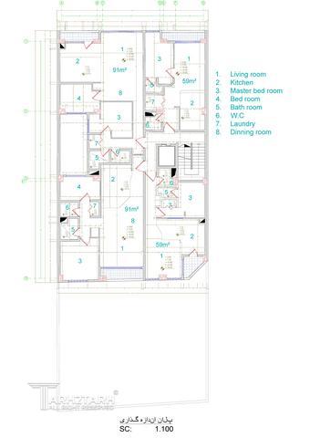
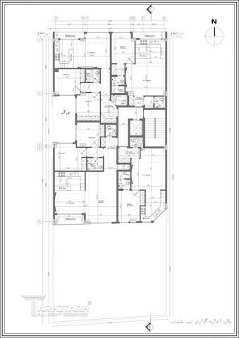
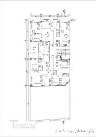
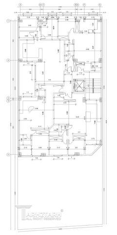
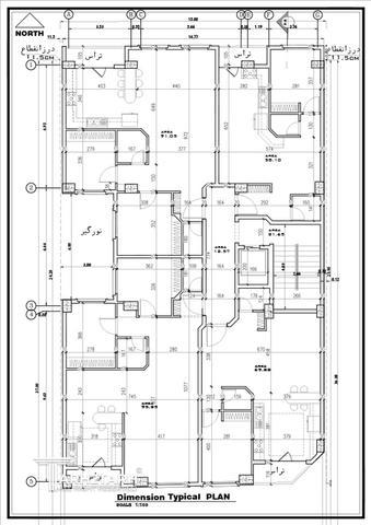
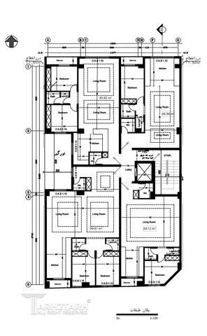
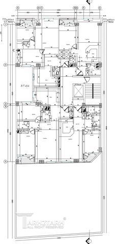
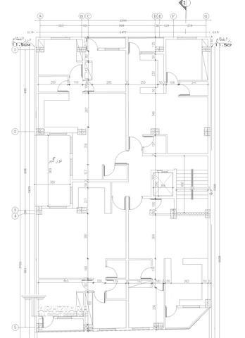
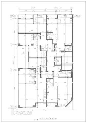
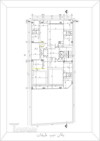
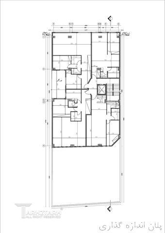
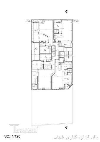
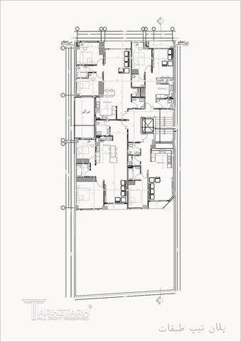
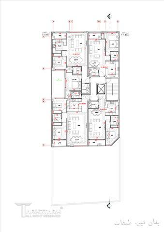
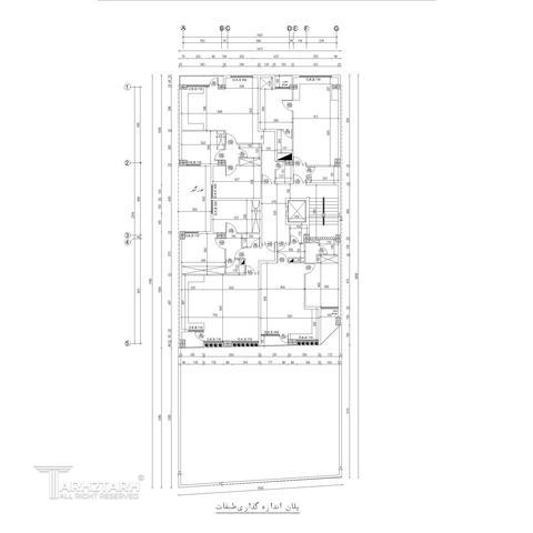
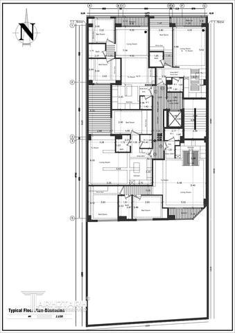
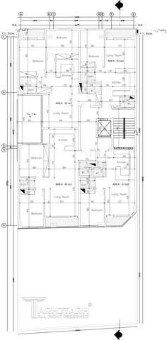
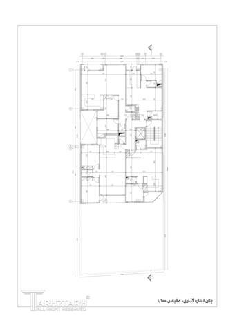
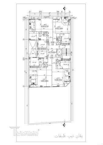
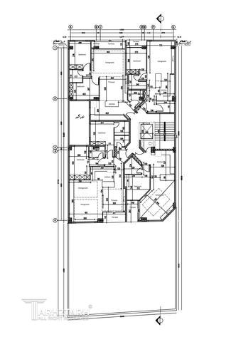
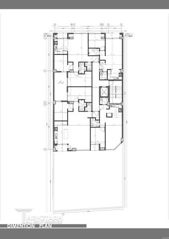
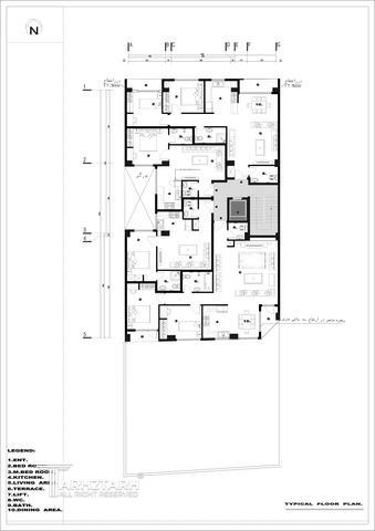
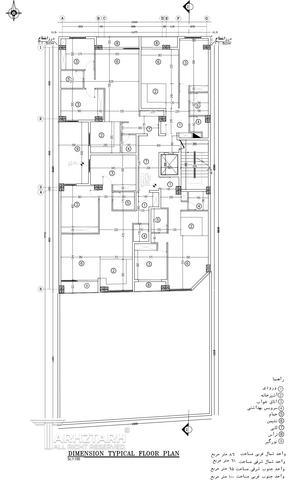
پروژه طراحی پلان سیدخندان
مسابقه عمومی
120,000,000
ریال
جایزه نقدی
تعداد شرکت کنندگان: 437 نفر
اطلاعات پایه
فایلهای راهنما
اخبار مسابقه
پرسش و پاسخ
نتایج
برای دیدن اطلاعات پایه و توضیحات مسابقه، صفحه اصلی پروژه را مرور کنید.
مشاهده اطلاعات پایه
نفر 1 - نیلوفر ساعی بهروزی
نفر 2 - همتا بهلولی
نفر 3 - افشین خادمی
فینالیست ها
سلمان انعامی
ماهرخ صادقی
Parvaneh Moradi
زمانی
حمیده محمدی
افشین خادمی
narges aghababaei
عسل هاتف متقی- محمدرضا ترابی
مه سیما پاک نژاد
طناز احمدی نسب
وحید حق شناس
فاطمه نجفی
مسعود بابایی
پویان کاشفی
فیروز
الهه دولت خواه
مریم عالی زاده
Mahsa Nobari
Architect
شهریار تقی خانی بردیا طاهری
سبا کشوری
شبنم فتحی سفید دشتی
عبدالحمید محمودی
آناهیتا رحیمیان
نوید افشار
نگار رحیمی
مجید عیوضی
unknow
شهرزاد سلیمی
سپیده معراجی
الناز کمره ای
دفتر معماری همکار
R@d¡n ...
محمد امین چلیپا
مریم صوفی
آزاده محسن زاده هیر
امین شیرزاد
محمد سعید هاتفی
محمد گل وردین
انسیه قربان نژاد
افسانه حسینی
متین رستمی
افشار ملکی
افسا حسینی
گروه معماری هایپرنوا
یاسمن خلج
چارچوب استودیو
شین استودیو
متین عسکریان
ehsan zakeri
sareh
گروه معماری ما
کامیار فولادلو
علی قدسیپور
سمیه حسن نژاد
الهام الهامی
گروه معماری سیین
شیوا شریعتی فر
آبی دیزاین
همتا بهلولی
Beikzadeh Bita
مهران علایی
مطهره الماسی
محیا اخوان
منصور رضائی
نیلوفر ساعی بهروزی
پانته آ قاسمی
سینا نجفی مخصوص
farzane shomali
نسترن آبرون
دفتر شبستان
شمیم مشایخی
امین اعلائی نژاد
آیدا سلطانی
Mana Kalaei
الناز عابدینی
فاطمه صنعت
شهرزاد میرحسینی
سحر صدیق پور
نیلوفر امیدی زاده
مجتبی زرگر
فاطمه شاهین نیا
بهناز بیات
مژگان ارباب
آرامه سادات بهشتی
راحله نیل فروشان
arefe barekat
بشری برخورداری
مینا کرمی
بهروز زارعیان
مریم کریمی
سیدحسن امیرلطیفی
حمیدرضا علیدوستی
یاسمین صاحبی
هادی زارعی
سلماز همدانی
رها رسولی
فاطمه سعادتی
RrrR MmM
مروت
سحر نجیبی
عمید اکبری
فاطمه ترامشلو
طرح های ارسالی
ساچلی اقدم
مهسا علیزاده
فرناز ستوده
کاربر حذف شده
هادی ابوالحسنی
محمدباقر ولی زاده
داود هاشم خانی
منا سعیدی
فائزه قاسمی
rozhin shaffie
شیوا قاسمیان
مهسا محمدخانی
نوید دادخواه
فرید احمدی
مریم خسروی2
عطیه صنعت
صادق پوریوسفی
کاربر حذف شده
مبینا جناتیان
وحید رهبری مندولکانی
مژگان رضائی
سید علی ابوالعلایی
لیدا قدرت نژاد آذر
محمدرضا هدایت
هانیه سادات رضایی
سحر رجبی
جواد چابکپور
الهه علیزاده
سعید کاظمی فرد
فاطمه روشن
Mostafa Nasiri
SIAVASH.JAVADI
زهرا پیرهادی
سهیلا نظافت خواجه
نوید عسکری نژاد
هدا حسنی
بشری رستمی
پریسا رنجبر
فاطمه قفقازی
حمیدرضا زرکوب
مریم ارباب
افسانه پیراعیادی
نرگس وکیل شعار
شبنم گل کار
فاطمه طباطبائی
رامبد اقتداری
Milad
نگین ابراهیمی
مسعود نجد
محمود جمشیدی
مهسا نیل گران
نازنین دباغ
شاهین دادخواه
گروه معماری بن
Farzan Fakhar
Zahra Hadipour
نسرین رباط جزی
امیتیس احمدی
شیدا علیزاده -النازحسن نژاد
مهسا جهانیان بهنمیری
زیبا علیمی
فاطمه کاکایی
مهرانه نوروزی
melika taremi
مسعود عرفانیان الفتی
مونا کرمی
علیرضا زاهدی موحد
رضا جعفرزاده
Maedeh Ranjbar
شرکت هوشمند سازه بیم
فاطمه عابدی نیا
فرامرز محمدی
Fateme Soltani
وحید پوران
اصغر غفارزاده
مسیح وطن خواهان
سام آذرعسکری
زینب خلج
عرفان بازرگان
fatemeh asgari
مریم شفائی
مهدیه مظلومی
امین مومنی
شادی اسماعیلی
فریبا اخوان
میلاد شمس
مانی رییسی
عرفان شریفی
مریم خسروی
داود شیرانی
فریور قایدی
نیکناز نیکدلان
زینب صابری فرد
زهرا مختاری
کیمیا زند
amir morshedloo
مهدی ذبیحی
قاسم بهبودی نیا
زهرا طاهری
طالبم
علی علی بابایی
مرتضی نظری
M&S ArchitectureStudio
roxana ماهریان
کارن آرک
نگین اسمعیل فرد
مونا کریمی
محمد معین مسرور
سعید بهرامی
علی و فاطمه علی زاده و پیرحیاتی
گروه معماری همکار
مینا علمدار
یلدا خان رمکی
رکسانا maherian
فریبا قوامی
Reza Mohamadivand
mahla bashiri
Sh fathi
مریم نادری
هدیه سرکاری
sina talaee
شهاب گرجی
زهرا جبلی جوان
سید احمد میرجلالیان
Hanieh Sotudeh
سارا رحیمی
مهسا محسنی
وحید جعفرزاده
مهسا سعدی نژاد
میلاد شیرازیان
بهاره وحیدی
الهام آذرسا
بشرا اصفهانی
استودیو سه گوشه
Mohammad Amin
توحید رهبری
سعید جعفری
گروه معماری زیمان
سید علیرضا سید محمدی
سعید کاوه
پرنیان ابراهیمی
فاطمه ترکمان
یوسف اسماعیل زاده گروه مهندسین فن، هنر معماری
امجد سعیدی
منصور رضایی
mohammad ghasemi
میلاد رحمانی
Mahboobe Khj
فرزانه کازرانی
قیم عباسی
kiani studio
نسرین رباط جزی
قدیری پور
محدثه نظری
پیشنهاد و بازخورد