مسابقه طراحی پلان رودهن بتیا

0

اطلاعات پروژه

پریسا محمدیان

نوع مسابقه: طراحی مسکونی
سال انجام پروژه : 1400
نقش: طراح
موقعیت : رودهن
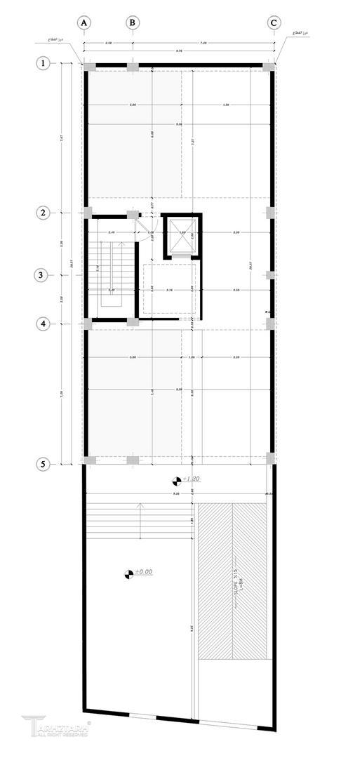
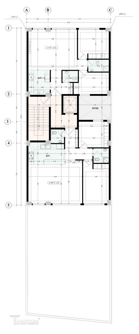
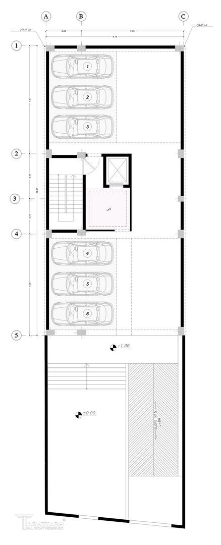
متراژ زیربنا : 800
مساحت زمین : 350
کارفرما : حبیب بهروزنیا

موقعیت مکانی پروژه

پیشنهاد و بازخورد