نفر سوم مسابقه مسابقه طراحی پلان و نما پروژه الهیه

0

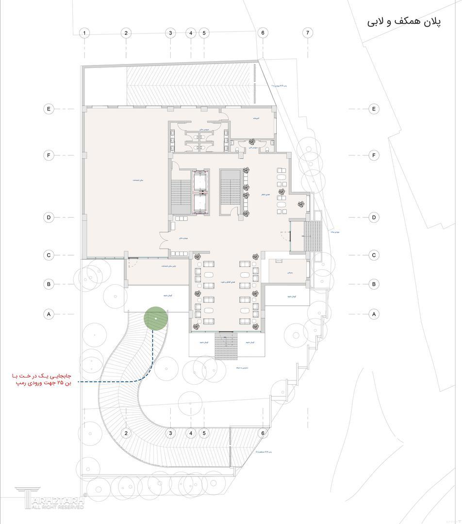
اطلاعات پروژه

kiani studio

نوع مسابقه: طراحی مسکونی
سال انجام پروژه : 1399
نقش: طراح
موقعیت : تهران
متراژ زیربنا : 9151
مساحت زمین : 3000
کارفرما :

موقعیت مکانی پروژه

پیشنهاد و بازخورد