اطلاعات پروژه

نقش : مدیر پروژه
نوع پروژه : طرح اجرایی
وضعیت : اجرا شده
کاربری : ساختمان مسکونی
متراژ زمین : 350
متراژ زیربنا : 600
سبک‌های طراحی: مدرن

خدمات ارائه شده توسط طراح

خدمات طراحی و کانسپت
مدلسازی
طراحی پلان (نقشه معماری) فاز 1
طراحی نما
طراحی نقشه فاز دو معماری
طراحی داخلی
دکوراسیون داخلی
طراحی منظر، فضای سبز، لند اسکیپ، روف گاردن و محوطه
طراحی نورپردازی
طراحی سیستم‌های هوشمند ساختمان (BMS)
طراحی نقشه سازه (فولادی، بتنی)
طراحی نقشه سازه
طراحی نقشه تأسیسات مکانیکی
طراحی نقشه تأسیسات الکتریکی
طراحی سیستم برق اضطراری و تابلو برق
طراحی سیستم‌های گرمایش، سرمایش، تهویه
طراحی کابینت
طراحی درب
طراحی دکوراسیون چوبی
طراحی کانسپت (معماری)
خدمات مشاوره و امکانسنجی
مشاوره و تجزیه و تحلیل فنی و اصلاحات نقشه‌ها برای تطبیق با ضوابط ارگانهای ذیربط
خدمات اجرایی و نظارتی
نظارت عالیه بر اجرا
مدیریت پیمان (پیمانکاری کلی پروژه)
مدیریت پروژه
بازسازی
پیمانکاری و اجرای نما
مدیریت پروژه
کنترل کیفی حین ساخت
خدمات فنی و مهندسی
اخذ تاییدیه نقشه پلان
اخذ تاییدیه نما
تهیه آلبوم نمای شهرداری
تهیه نقشه‌های اجرایی پروژه برای دریافت مجوزهای لازم (شهرداری، نظام مهندسی و …)
تهیه نقشه فاز دو شهرداری
رندرینگ و خدمات فنی
مدل سازی
انجام تغییرات نقشه معماری
متره و برآورد هزینه ساخت پروژه
طراحی و مدلسازی BIM
تهیه نقشه معماری فاز دو جهت ارائه به سازمان نظام مهندسی
تهیه نقشه سازه فاز دو جهت ارائه به سازمان نظام مهندسی
تهیه نقشه تاسیسات برقی فاز دو جهت ارائه به سازمان نظام مهندسی
تهیه نقشه تاسیسات مکانیکی فاز دو جهت ارائه به سازمان نظام مهندسی
تهیه نقشه تاسیسات مکانیکی فاز دو اجرایی
تهیه نقشه تاسیسات برقی فاز دو اجرایی

توضیحات پروژه

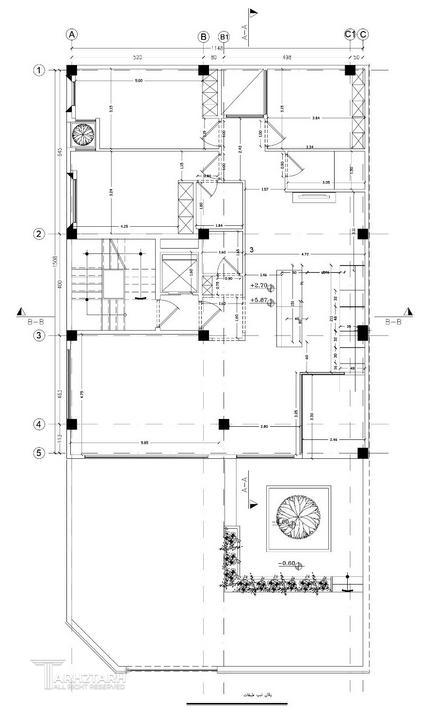
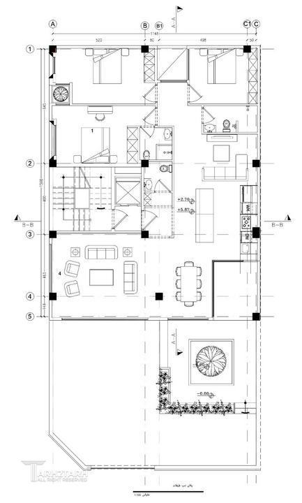
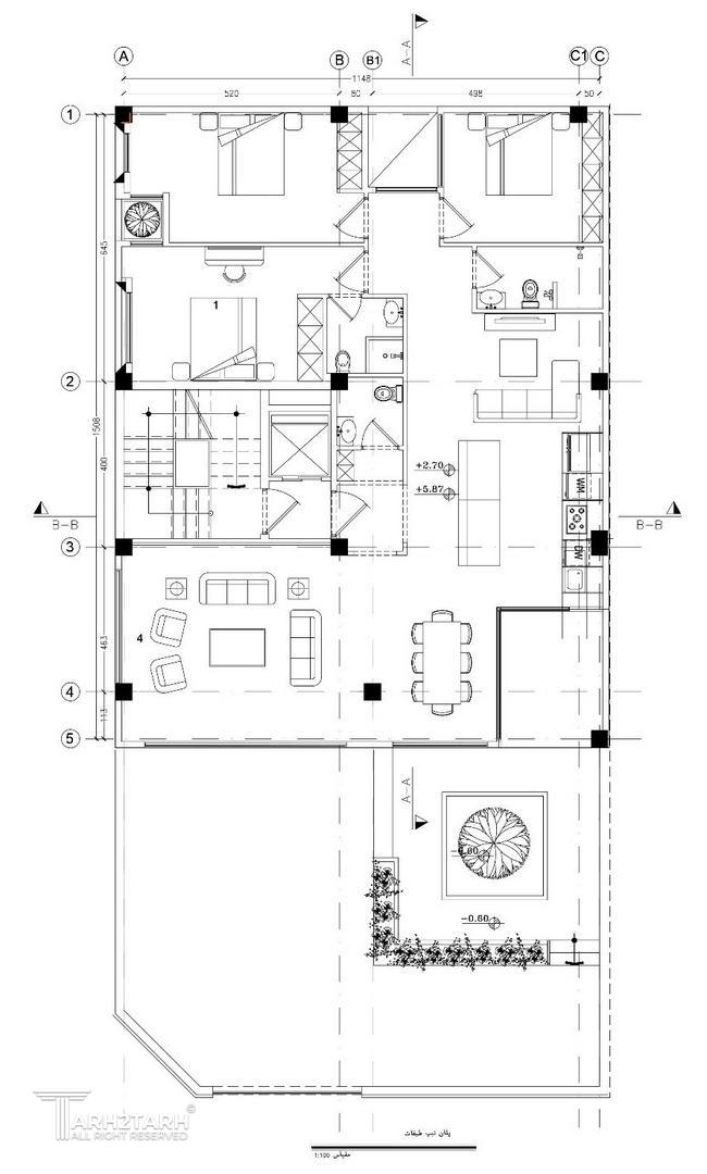
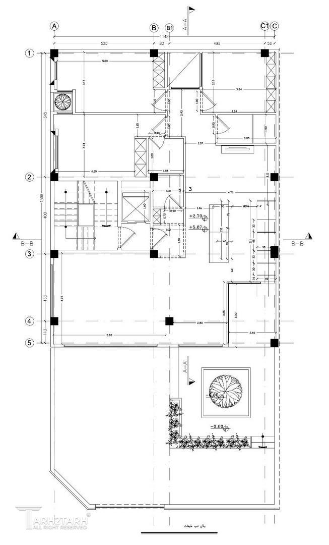
این پروژه پیش از ورود تیم طراحی تا مرحله اجرای اسکلت پیش رفته بود، اما کارفرما از وضعیت موجود رضایت کافی نداشت. بر همین اساس، در گام نخست بازنگری و اصلاح پلان‌ها توسط تیم طراحی انجام گرفت. سپس با توجه به شرایط موجود سازه و محدودیت‌های اجرایی، طراحی نما مجدداً مورد بازبینی قرار گرفته و طرح جدید با رویکردی منسجم و منطبق بر نیازهای پروژه ارائه شد.

موقعیت مکانی پروژه

نظرات
پیشنهاد و بازخورد