مسابقه طراحی ویلا هیربد

0

اطلاعات پروژه

محمدرضا آقامحمدی

نوع مسابقه: طراحی ویلا
سال انجام پروژه : 1400
نقش: طراح
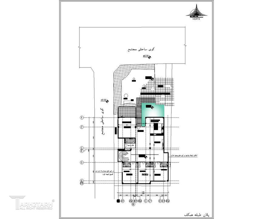
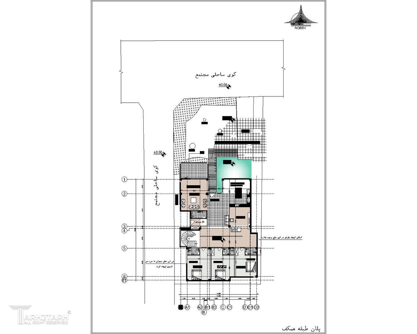
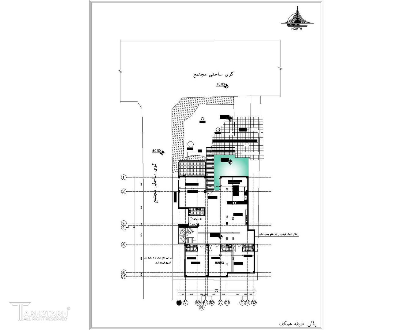
موقعیت : چلندر
متراژ زیربنا : 504
مساحت زمین : 500
کارفرما : علیرضا محمدی

موقعیت مکانی پروژه

پیشنهاد و بازخورد