شهر جدید هشتگرد
1397
0

اطلاعات پروژه

کارفرما : جناب آقای دهقان
نوع پروژه : طرح اجرایی
وضعیت : اجرا شده
کاربری : ساختمان مسکونی
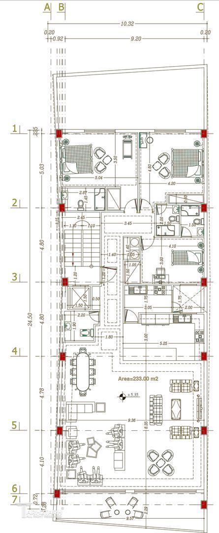
متراژ زمین : 276
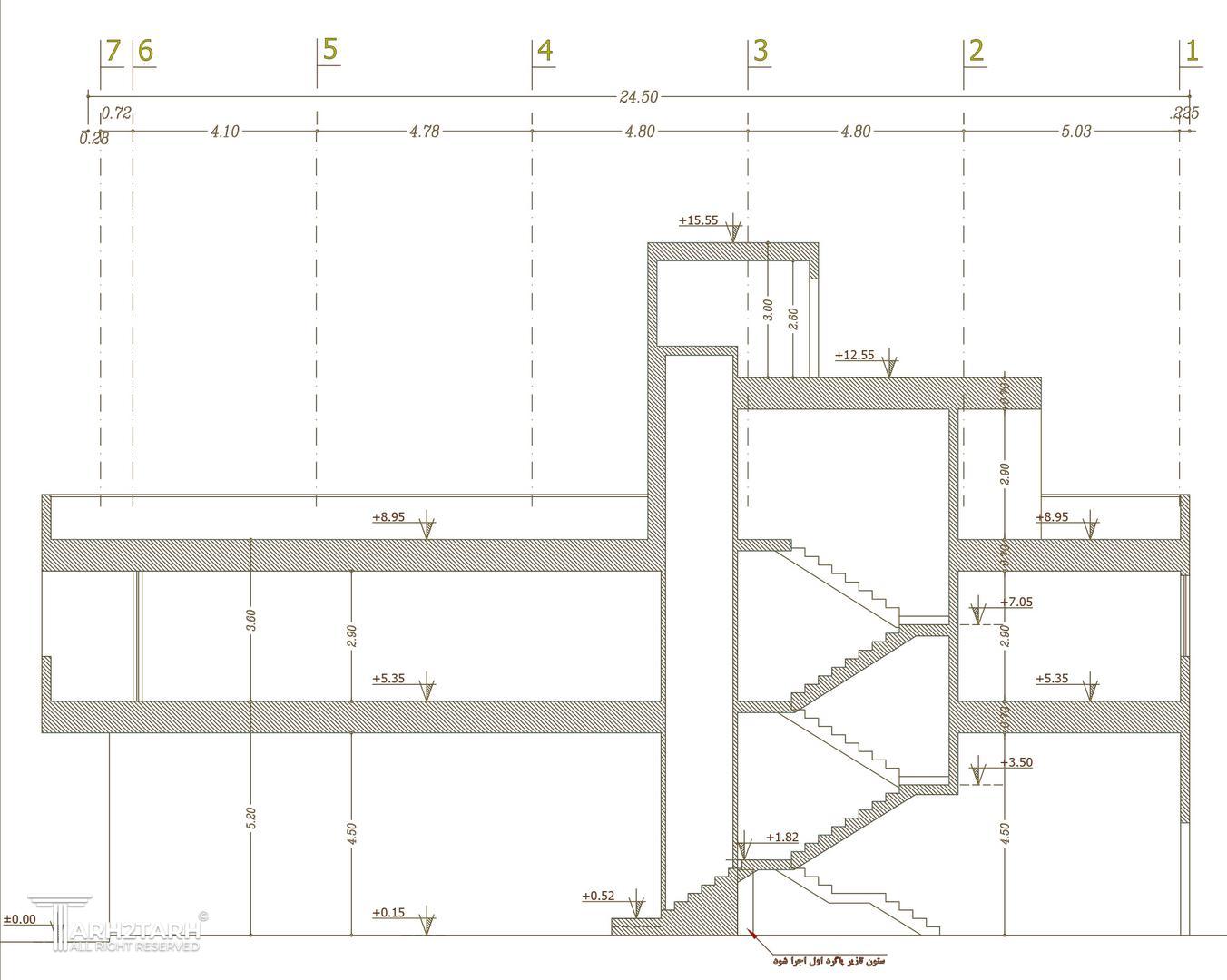
متراژ زیربنا : 700
سبک‌های طراحی: یونانی کلاسیک

خدمات ارائه شده توسط طراح

خدمات طراحی و کانسپت
مدلسازی
طراحی نقشه سازه
طراحی نقشه تأسیسات مکانیکی
طراحی نقشه تأسیسات الکتریکی
طراحی سیستم برق اضطراری و تابلو برق
طراحی سیستم‌های گرمایش، سرمایش، تهویه
خدمات مشاوره و امکانسنجی
مشاوره تحلیل سایت پروژه
مشاوره فاز صفر و امکان‌سنجی پروژه
مشاوره و تجزیه و تحلیل فنی و اصلاحات نقشه‌ها برای تطبیق با ضوابط ارگانهای ذیربط
مشاوره طراحی اقلیمی
مشاوره در زمینه توسعه پایدار
مشاوره انتخاب مصالح و تکنولوژی‌های نوین ساختمانی
مشاوره‌های مرتبط با مجوزات (ضوابط تراکم، سطح اشغال، پروانه ساختمان، ماده 5، کمیسیون های شهرداری، پایان کار و …)
تطبیق نقشه‌ها با ضوابط شهرداری
خدمات فنی و مهندسی
رندرینگ و خدمات فنی
مدل سازی
خدمات دیگر
رندرینگ

توضیحات پروژه

خانه باغی با حس بودن داخل ویلای سبز با وجود یک باب تجاری در همکف

موقعیت مکانی پروژه

نظرات
پیشنهاد و بازخورد