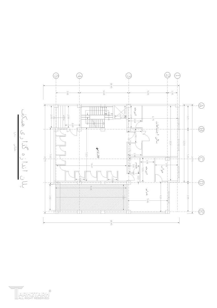
مسابقه طراحی ساختمان مسکونی بردیا

0

اطلاعات پروژه

اديب اورام

نوع مسابقه: طراحی مسکونی
سال انجام پروژه : 1399
نقش: طراح
موقعیت : کرج
متراژ زیربنا : 1500
کارفرما : ایمان زارع

موقعیت مکانی پروژه

پیشنهاد و بازخورد