استودیو معماری نو موفق به کسب جایزه بینالمللی A DESIGN برای طراحی رقابت دروازه ورودی چابهار در پلتفرم طرح تو طرح شد.
ورود | ثبت نام
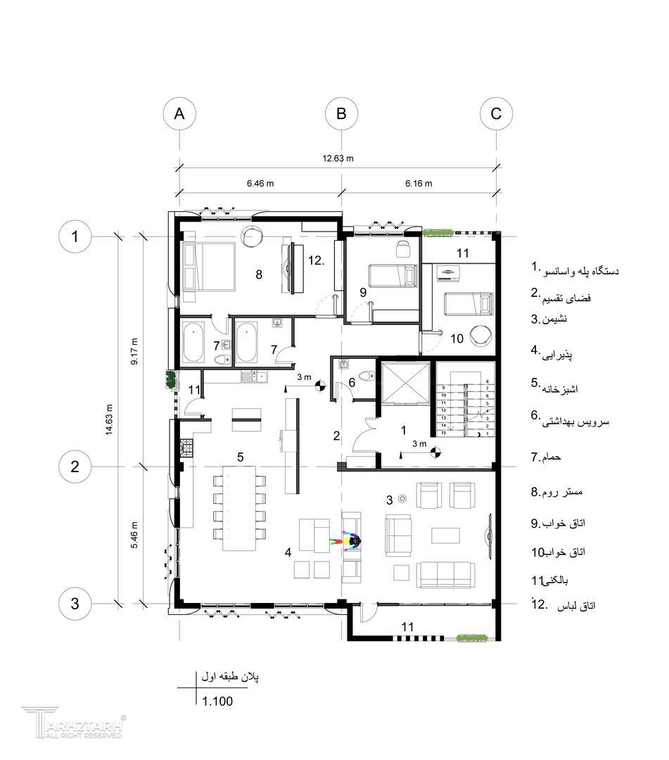
پلان طرح
برش b/b
نمای غربی
نظرات