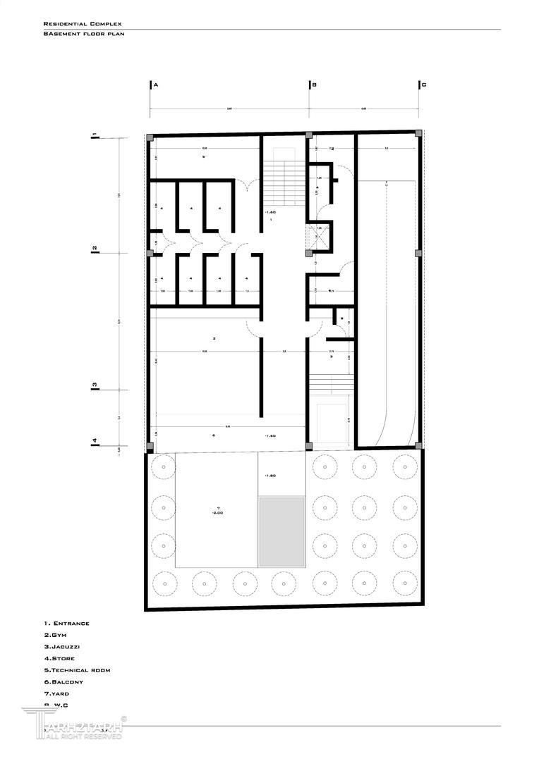
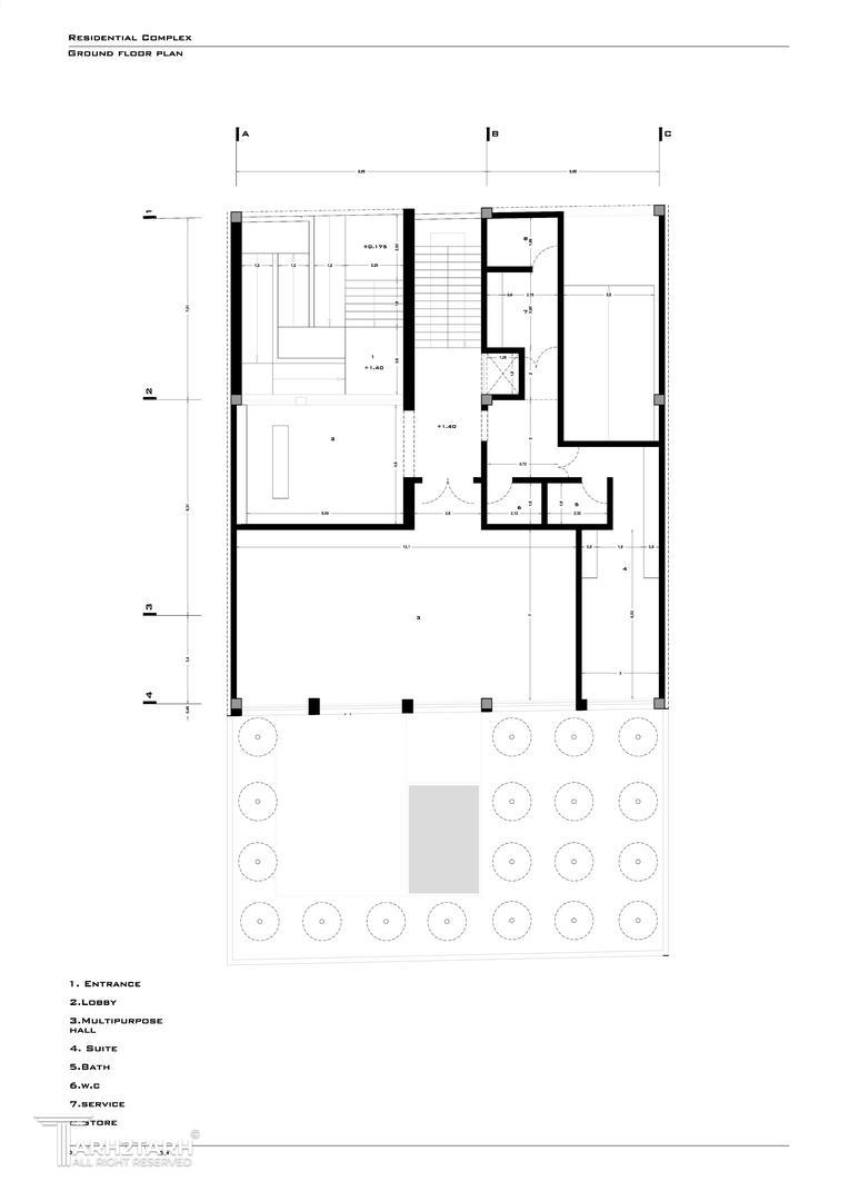
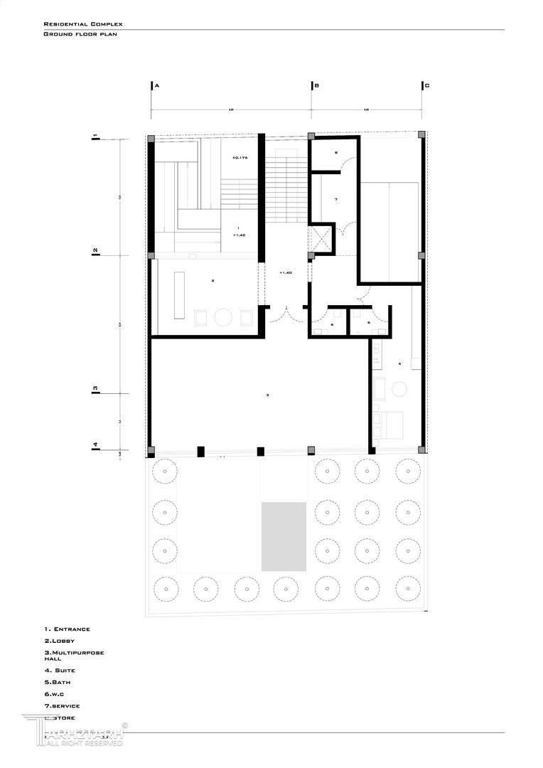
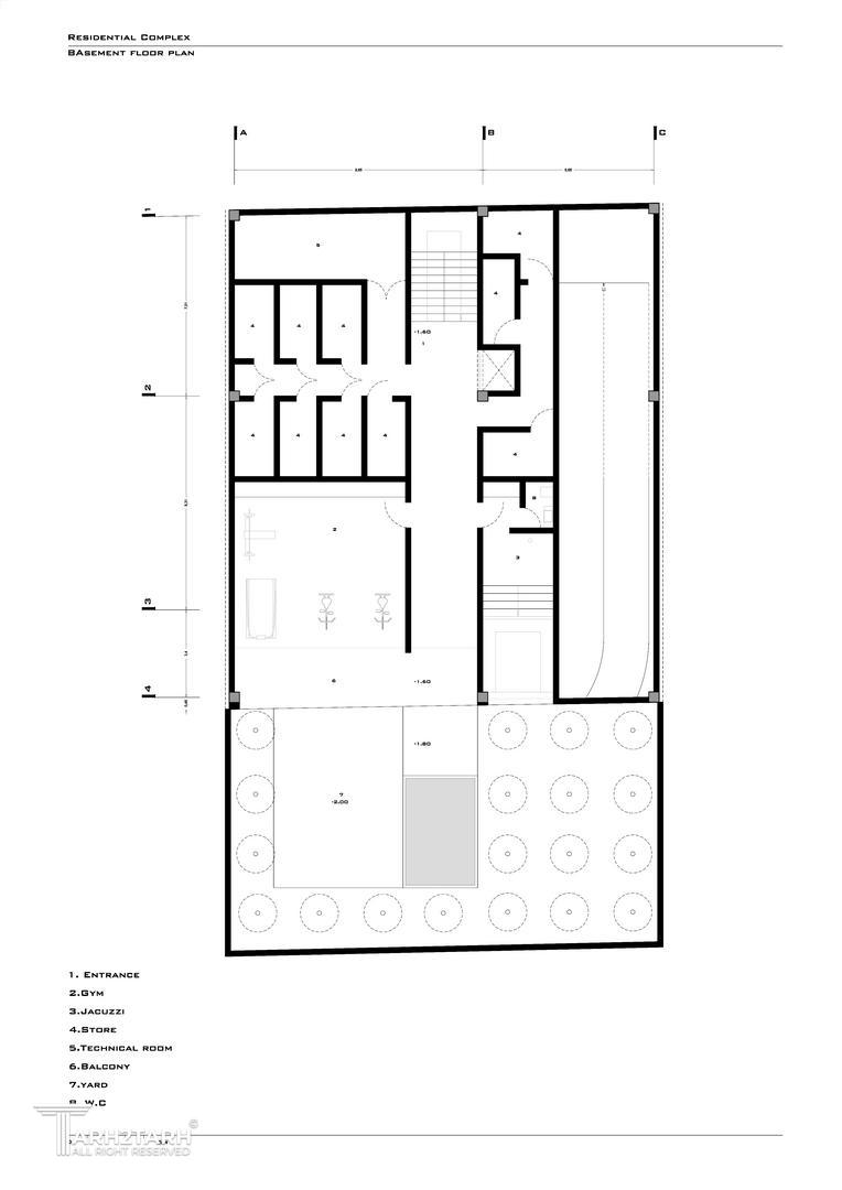
مسابقه طراحی پلان و نما خانه خوب

0

اطلاعات پروژه

کاربر حذف شده

نوع مسابقه: طراحی مسکونی
سال انجام پروژه : 1400
نقش: طراح
موقعیت : تهران
متراژ زیربنا : 2900
مساحت زمین : 600
کارفرما : غنی زاده

موقعیت مکانی پروژه

پیشنهاد و بازخورد