اطلاعات پروژه

نقش : طراح ارشد
نوع پروژه : طرح اجرایی
وضعیت : در حال اجرا
کاربری : ساختمان مسکونی
متراژ زمین : 750
متراژ زیربنا : 6500
سبک‌های طراحی: مدرن

خدمات ارائه شده توسط طراح

خدمات طراحی و کانسپت
دکوراسیون داخلی
طراحی منظر، فضای سبز، لند اسکیپ، روف گاردن و محوطه
طراحی نورپردازی
طراحی کانسپت (معماری)
طراحی نقشه فاز دو معماری
طراحی پلان (نقشه معماری) فاز 1
طراحی نما
طراحی داخلی
خدمات مشاوره و امکانسنجی
مشاوره تحلیل سایت پروژه
مشاوره فاز صفر و امکان‌سنجی پروژه
خدمات اجرایی و نظارتی
نظارت عالیه بر اجرا
نظارت بر اجرای معماری (نظام مهندسی)
خدمات فنی و مهندسی
اخذ تاییدیه نقشه پلان
اخذ تاییدیه نما
تهیه آلبوم نمای شهرداری
تهیه نقشه فاز دو شهرداری
تهیه نقشه‌های اجرایی پروژه برای دریافت مجوزهای لازم (شهرداری، نظام مهندسی و …)
خدمات دیگر
رندرینگ
طراحی و چاپ کاتالوگ معماری

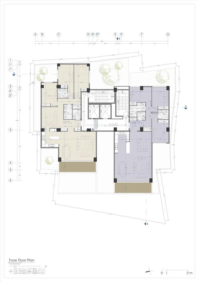
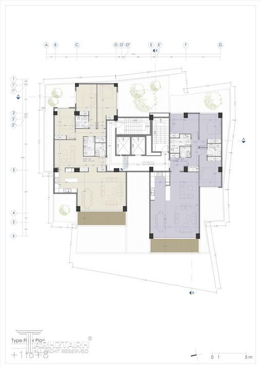
توضیحات پروژه

پروژه مسکونی گلابدره در کوهپایه‌های شمال تهران واقع شده است. طراحی این مجموعه با هدف ایجاد بیشترین ارتباط با طبیعت و بهره‌گیری از چشم‌اندازهای کم‌نظیر باغ ملک و کوه‌های شمال تهران انجام گرفته است. این پروژه مسکونی با حداکثر امکانات رفاهی، محیطی آرام، لوکس و هماهنگ با بستر طبیعی پیرامون خود فراهم می‌کند.

موقعیت مکانی پروژه

نظرات
پیشنهاد و بازخورد