مسابقه طراحی نما و پلان پرند

0

اطلاعات پروژه

حسین غفاری

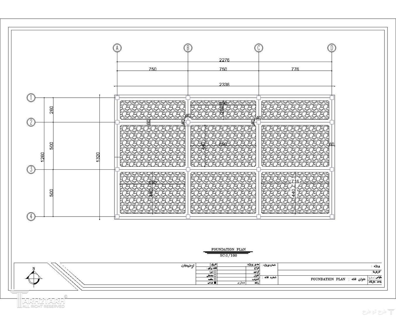
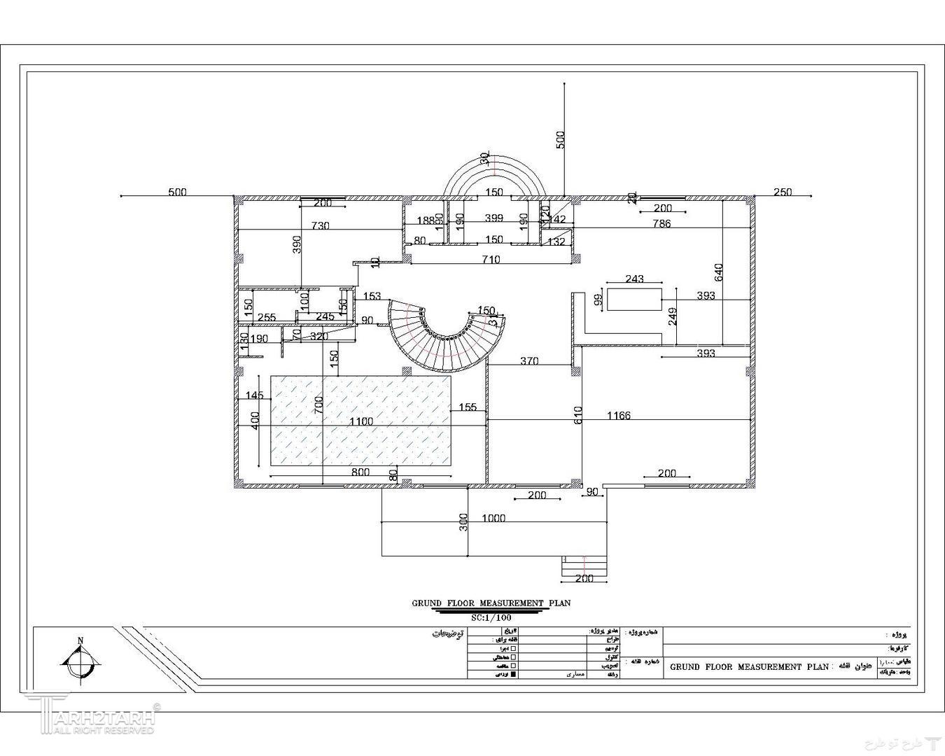
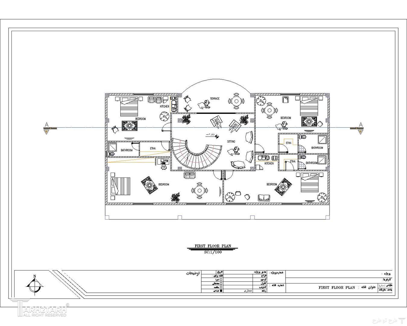
نوع مسابقه: طراحی ویلا
سال انجام پروژه : 1399
نقش: طراح
موقعیت : پرند
متراژ زیربنا : 550
مساحت زمین : 250
کارفرما :

موقعیت مکانی پروژه

پیشنهاد و بازخورد