اطلاعات پروژه

نقش : طراح ارشد
کارفرما : گروه صنعتی مادیران
نوع پروژه : طرح اجرایی
وضعیت : اجرا شده
کاربری : کارخانه
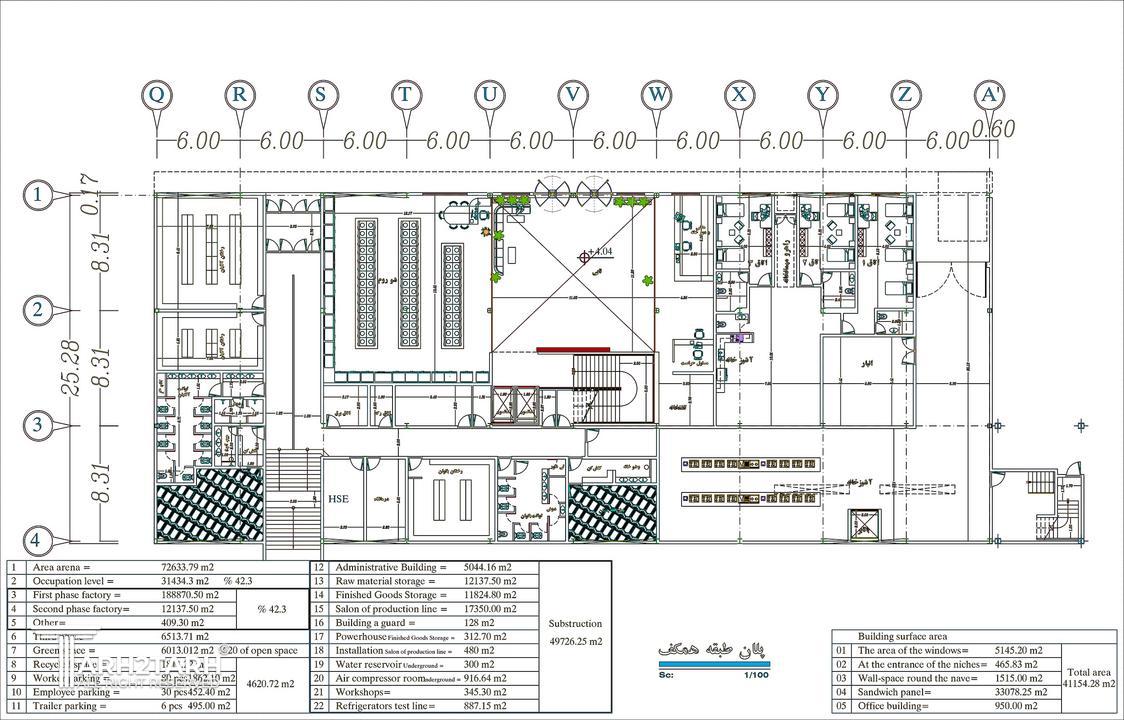
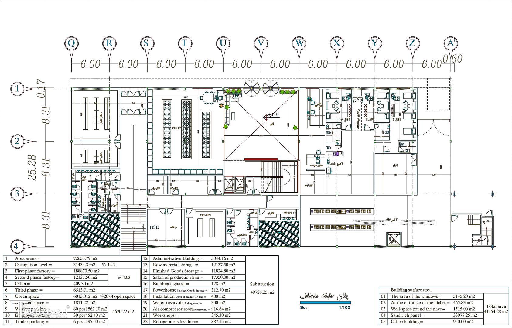
متراژ زمین : 73000
متراژ زیربنا : 60000
سبک‌های طراحی: مدرن

خدمات ارائه شده توسط طراح

خدمات طراحی و کانسپت
طراحی پلان (نقشه معماری) فاز 1
طراحی نما
طراحی نقشه فاز دو معماری
طراحی داخلی
طراحی منظر، فضای سبز، لند اسکیپ، روف گاردن و محوطه
طراحی نورپردازی
طراحی سیستم‌های هوشمند ساختمان (BMS)
طراحی نقشه سازه (فولادی، بتنی)
طراحی نقشه سازه
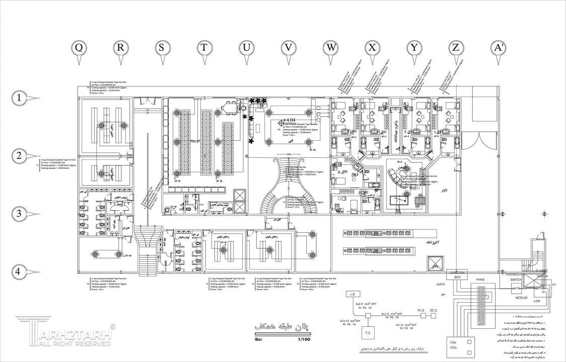
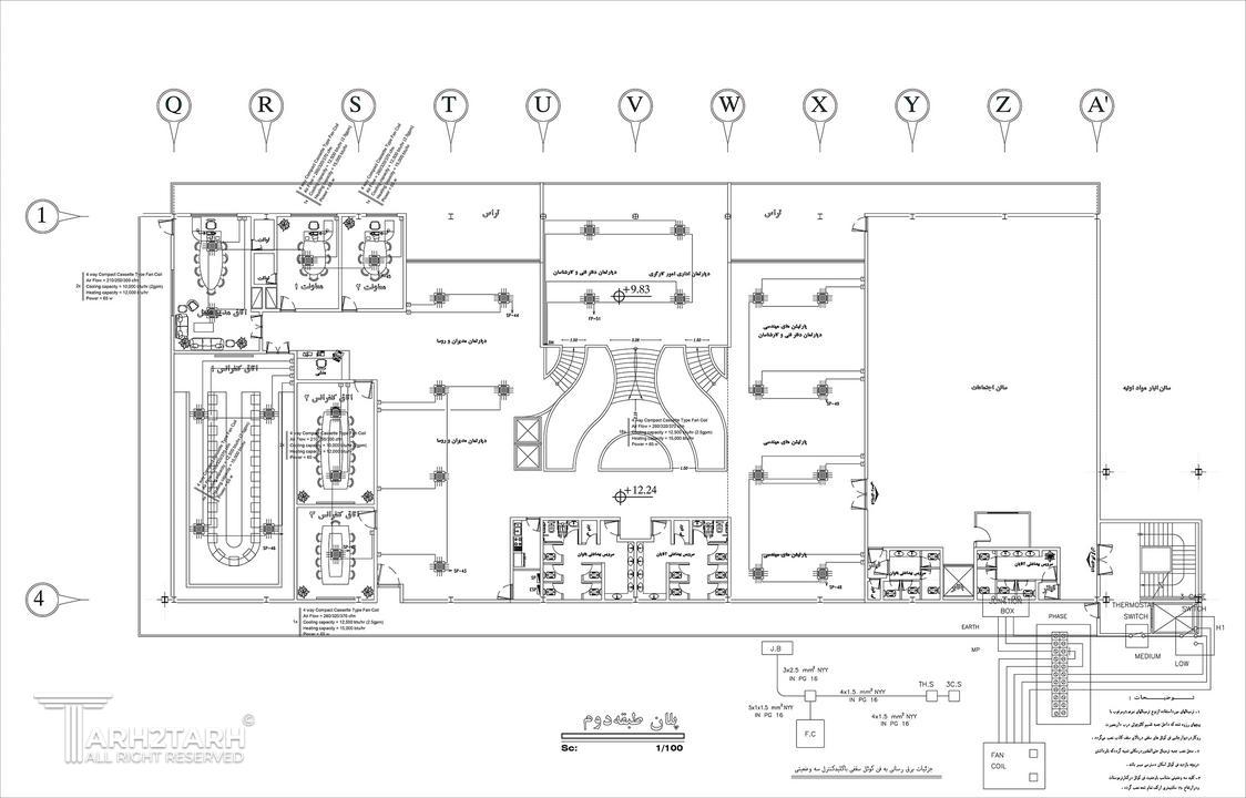
طراحی نقشه تأسیسات مکانیکی
طراحی نقشه تأسیسات الکتریکی
طراحی سیستم برق اضطراری و تابلو برق
طراحی سیستم‌های گرمایش، سرمایش، تهویه
طراحی و تهیه طرح تفکیکی و کاربری زمین
طراحی سردرب
طراحی درب
طراحی طرح جامع
طراحی طرح تفصیلی
طراحی کانسپت (معماری)
خدمات مشاوره و امکانسنجی
مشاوره تحلیل سایت پروژه
مشاوره فاز صفر و امکان‌سنجی پروژه
مشاوره و برنامه‌ریزی تعیین کاربری پروژه
مشاوره و تجزیه و تحلیل فنی و اصلاحات نقشه‌ها برای تطبیق با ضوابط ارگانهای ذیربط
مشاوره طراحی اقلیمی
مشاوره در زمینه توسعه پایدار
مشاوره انتخاب مصالح و تکنولوژی‌های نوین ساختمانی
مشاوره‌های مرتبط با مجوزات (ضوابط تراکم، سطح اشغال، پروانه ساختمان، ماده 5، کمیسیون های شهرداری، پایان کار و …)
مشاوره مالی و بودجه‌ای
مشاوره آتش‌نشانی
مشاوره برندسازی و هویت پروژه
مشاوره و تهیه شناسنامه فنی و ملکی پروژه
خدمات اجرایی و نظارتی
نظارت عالیه بر اجرا
مدیریت پیمان (پیمانکاری کلی پروژه)
نظارت بر اجرای معماری (نظام مهندسی)
نظارت بر اجرای سازه (نظام مهندسی)
نظارت بر اجرای تاسیسات الکتریکی (نظام مهندسی)
نظارت بر اجرای تاسیسات مکانیکی (نظام مهندسی)
هماهنگ کننده ناظرین (نظام مهندسی)
ارائه برگه تعهد مجری ذی صلاح (نظام مهندسی)
پیمانکاری و اجرای نما
ناظر ذی‌صلاح (نظام مهندسی)
اجرای دیوارچینی
اجرای تیرچه‌ها و وال‌پست

توضیحات پروژه

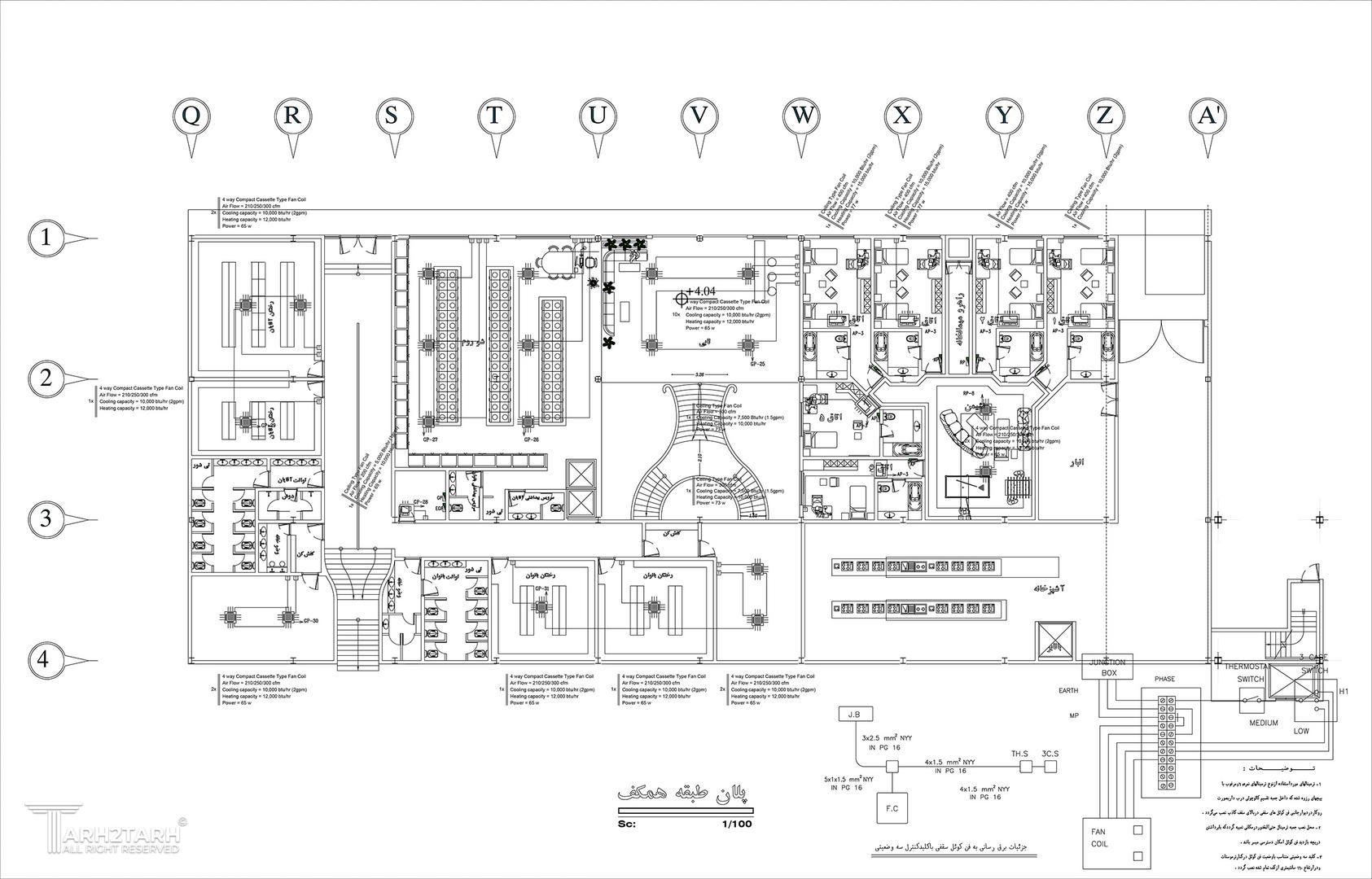
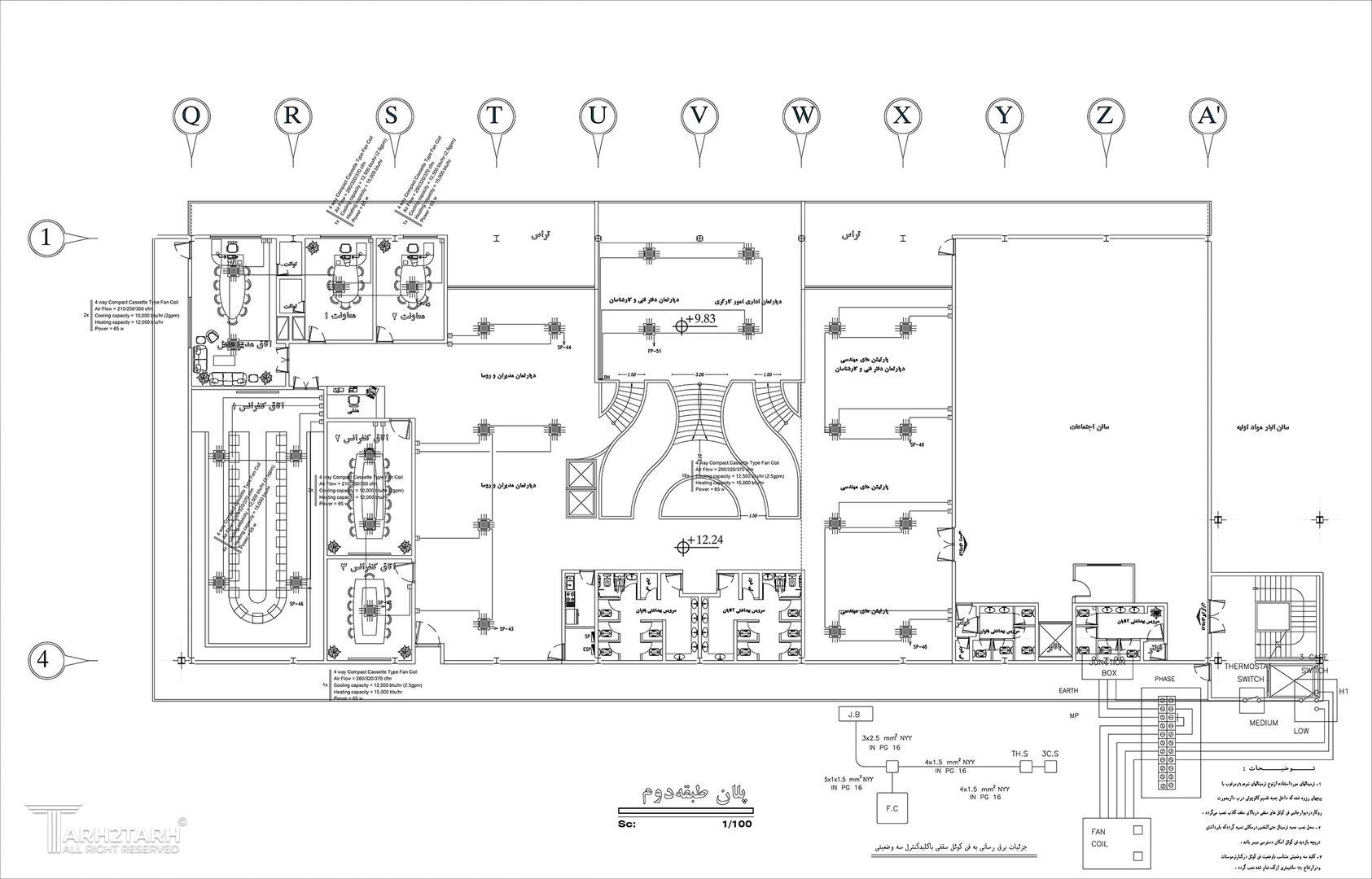
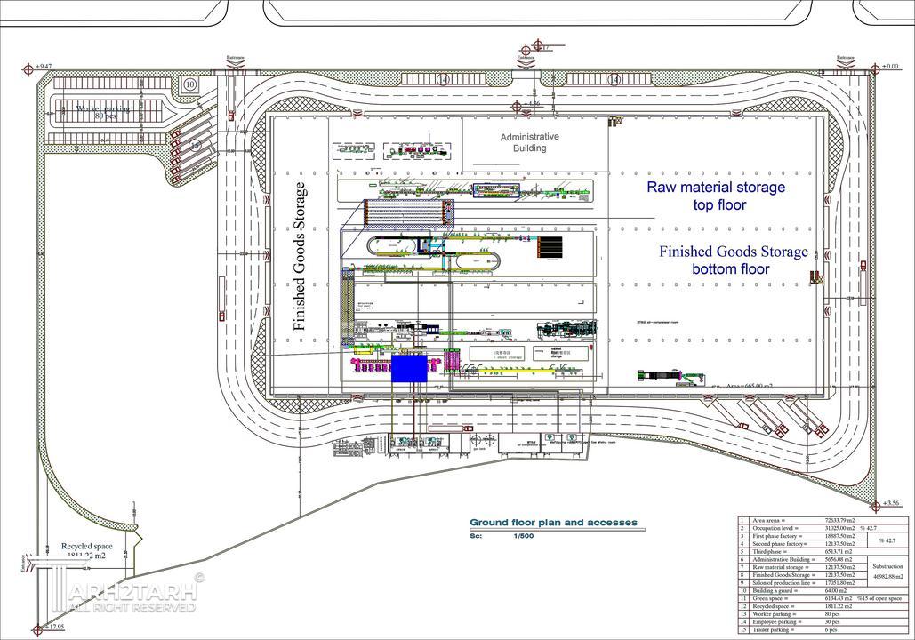
مشاوره مهندسی و طراحی در چهار رشته مهندسی کارخانه بزرگ لوازم خانگی مادیران(ایکس ویژن)

موقعیت مکانی پروژه

نظرات
پیشنهاد و بازخورد