اطلاعات پروژه

نوع پروژه : طرح اجرایی

توضیحات پروژه

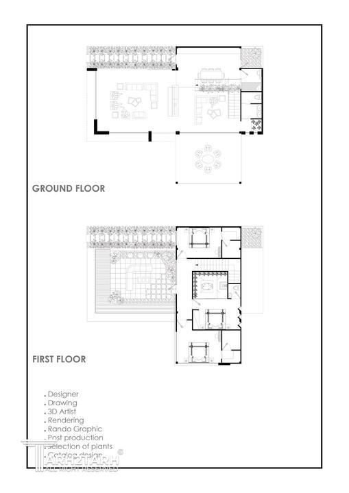
<p>طراحی نما و داخلی نمای مدرن . </p><p>1-طراحی 3 خواب </p><p>2- یک تراس یا آی لند </p><p> همکف </p><p>1-سالن </p><p>2- آشپرخانه </p><p>3- سرویس</p><p> لنداسکیپ</p><p>1-استخر </p><p>2-استخر کودکان </p><p>3-نشیمن روباز</p><p>4-زمین بازی </p><p>4- فضاسازی باغ است</p>

نظرات
پیشنهاد و بازخورد