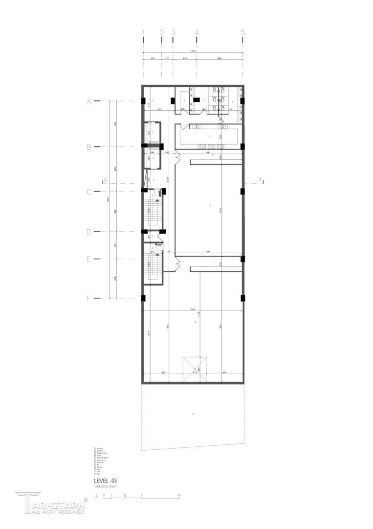
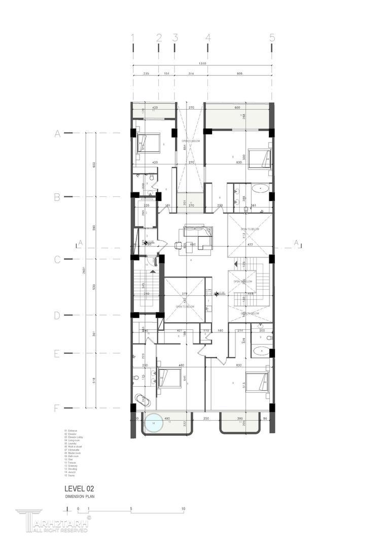
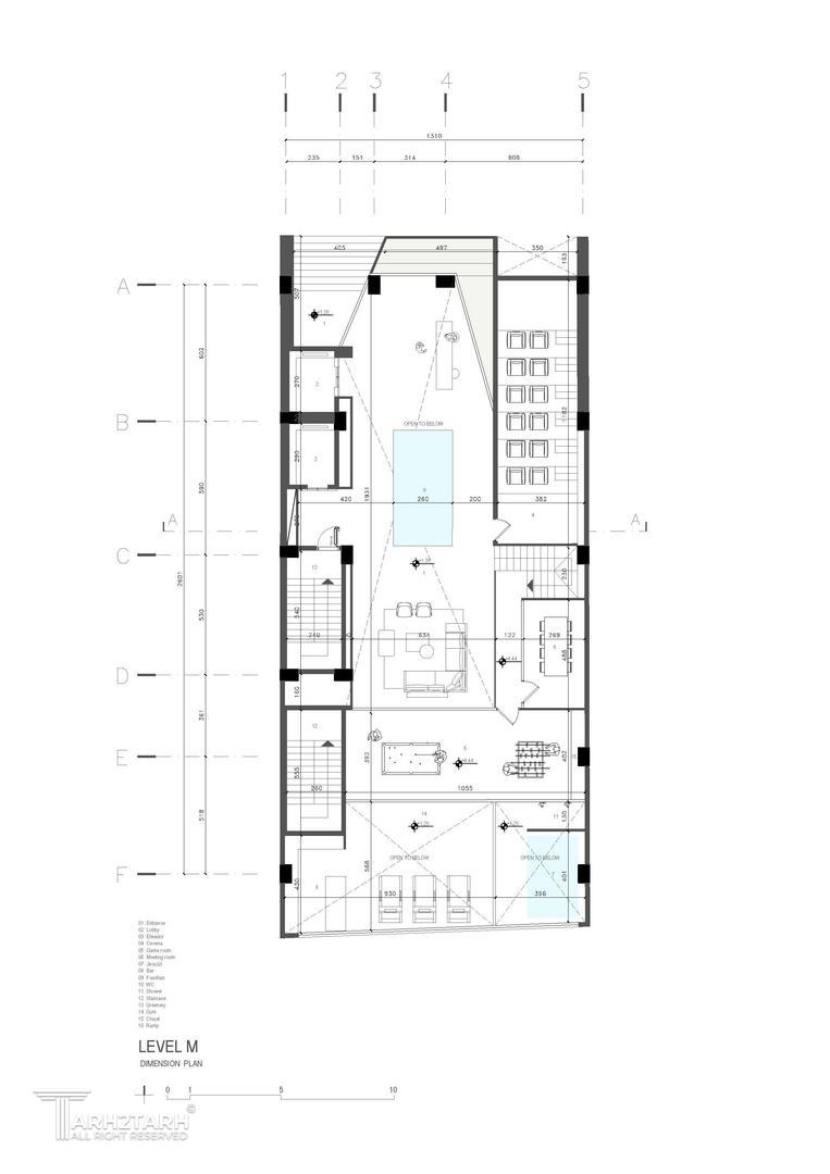
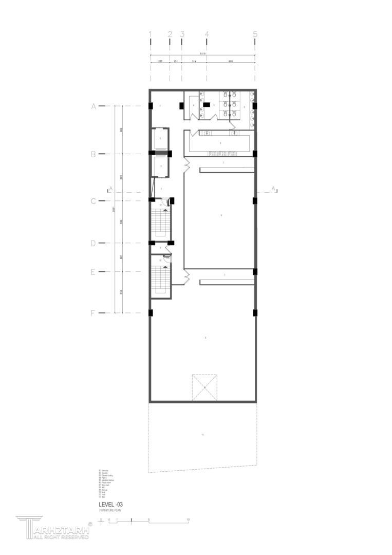
نفر سوم مسابقه طراحی ساختمان مسکونی ماکاگروپ 4 (نارنجستان 2)

0

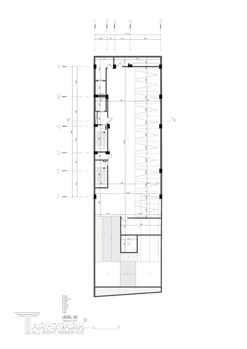
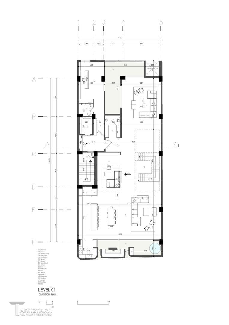
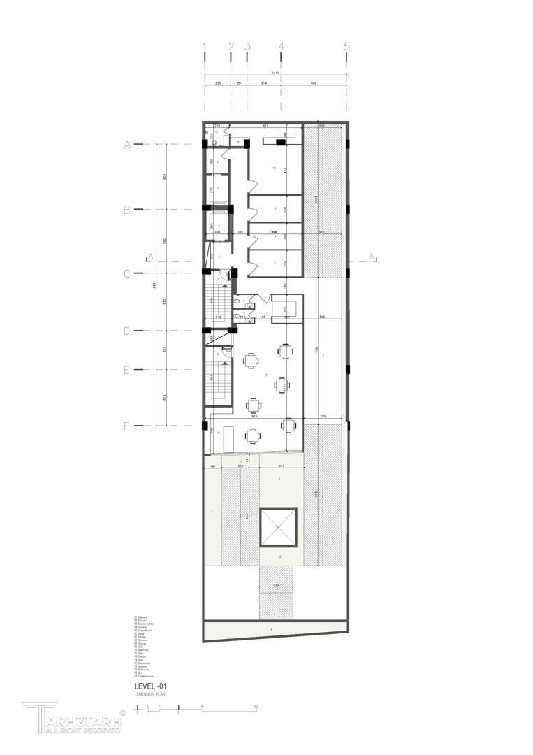
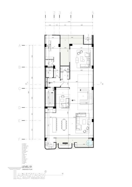
اطلاعات پروژه

ARMINARMANSTUDIO

نوع مسابقه: طراحی مسکونی
سال انجام پروژه : 1404
نقش: طراح
موقعیت : تهران
متراژ زیربنا : 4000
مساحت زمین : 670
کارفرما : علی کاتوزیان

خدمات ارائه شده توسط طراح

خدمات طراحی و کانسپت
طراحی پلان (نقشه معماری) فاز 1
طراحی داخلی
دکوراسیون داخلی
طراحی منظر، فضای سبز، لند اسکیپ، روف گاردن و محوطه
طراحی نورپردازی
پیشنهاد و بازخورد