مسابقه طراحی پلان و نما و داخلی خانه مادربزرگ

0

اطلاعات پروژه

فلاح

نوع مسابقه: طراحی مسکونی
سال انجام پروژه : 1400
نقش: طراح
موقعیت : تهران
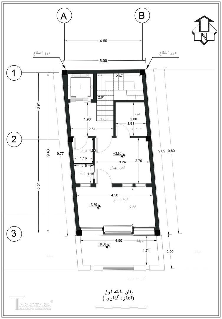
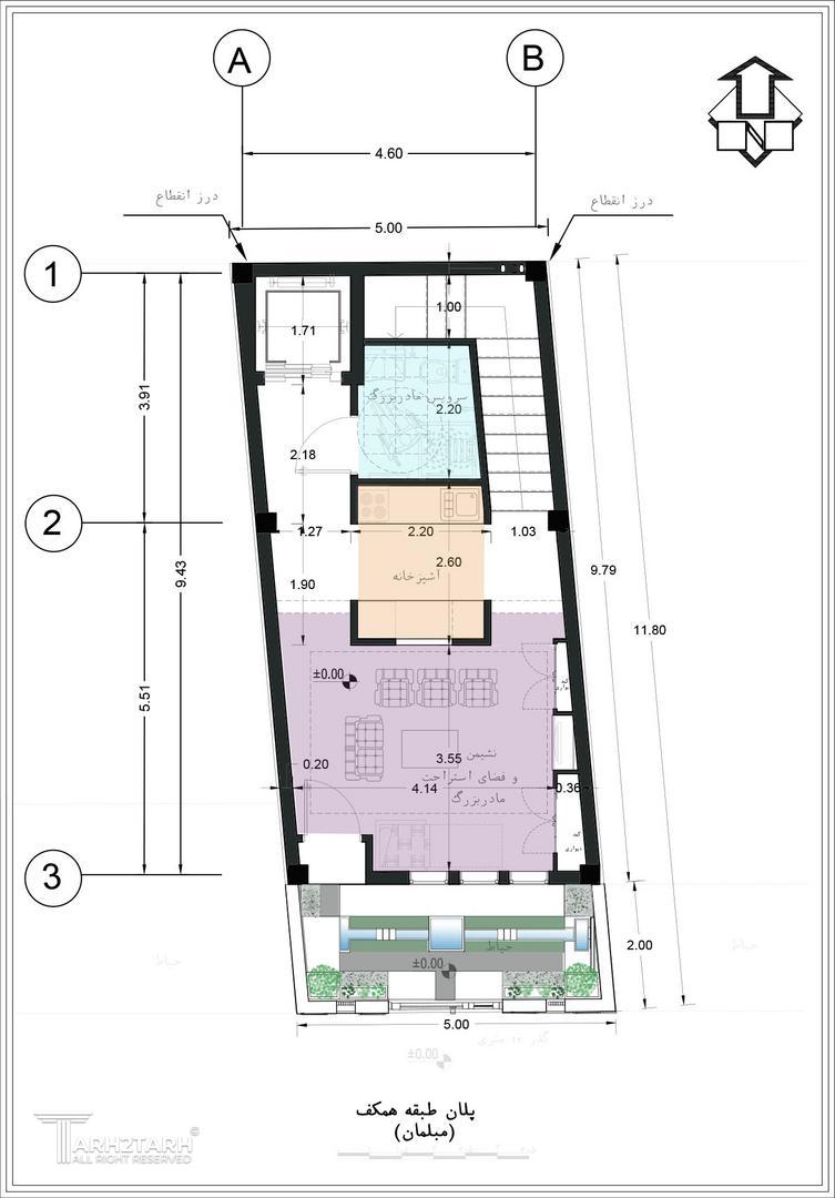
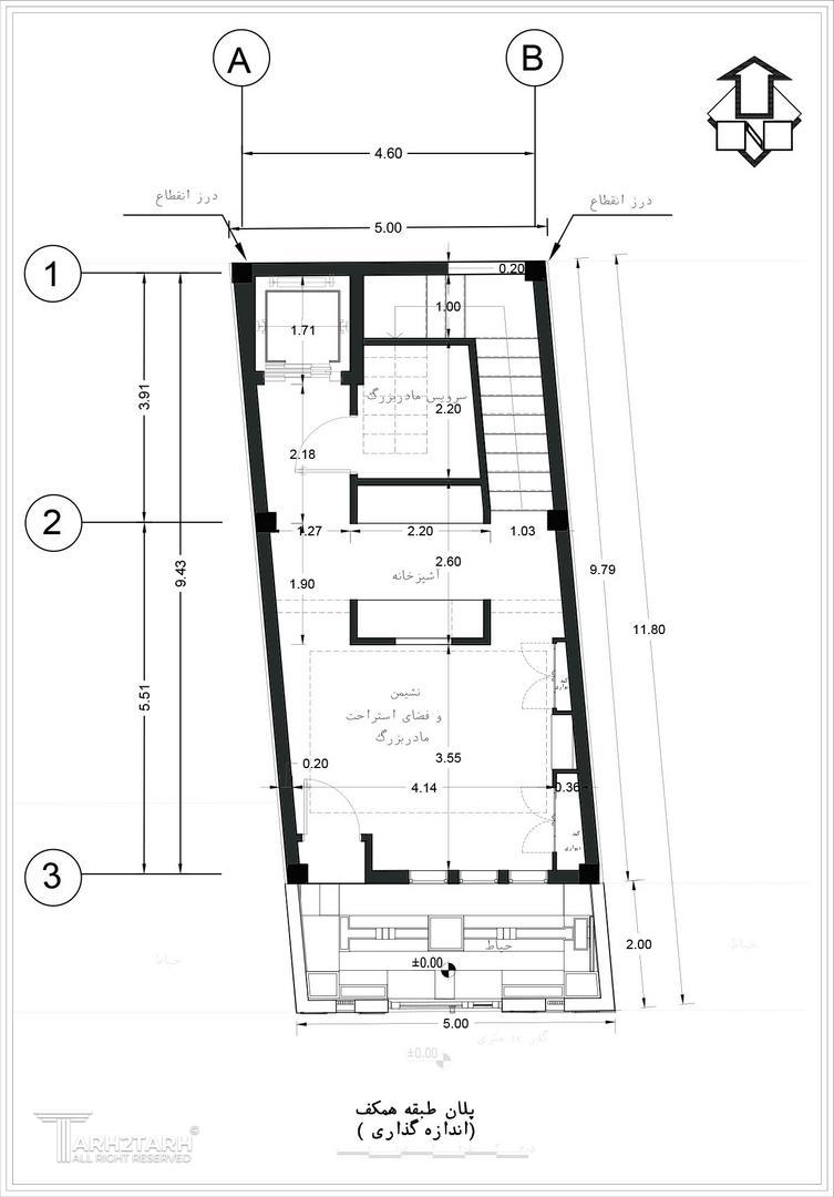
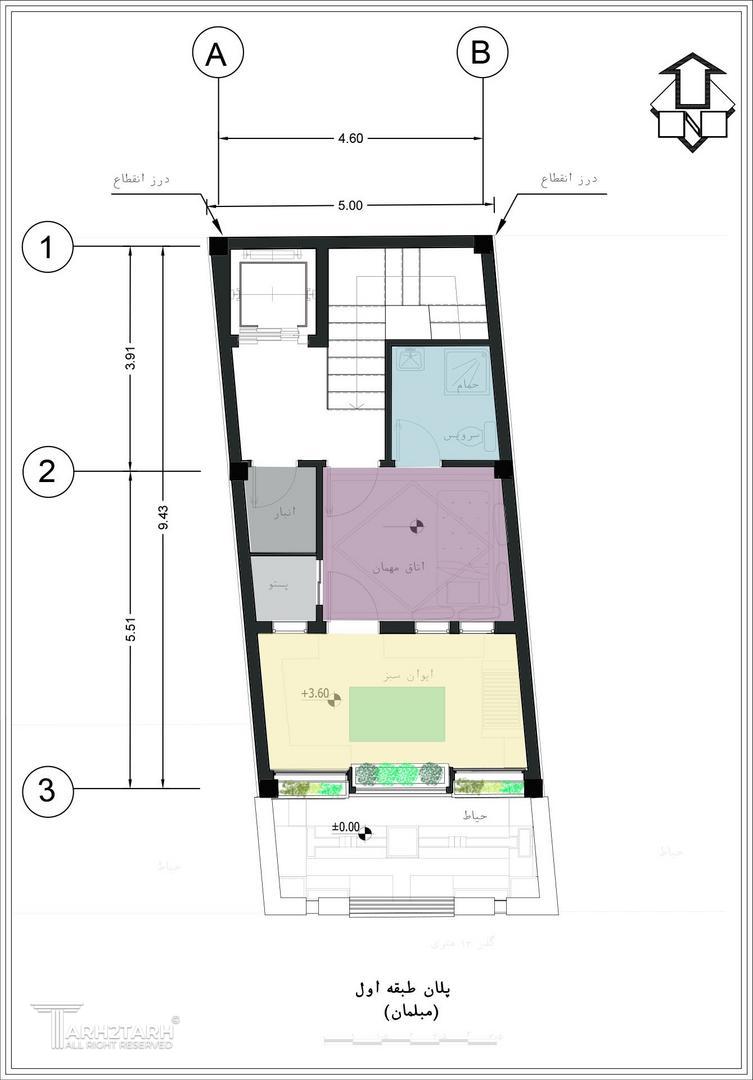
متراژ زیربنا : 80
مساحت زمین : 80
کارفرما : محمد مدرس

موقعیت مکانی پروژه

پیشنهاد و بازخورد