مسابقه طراحی پلان و نما شهراسب قیطریه

0

اطلاعات پروژه

مولود کشتکار ذوالقدر

نوع مسابقه: طراحی مسکونی
سال انجام پروژه : 1400
نقش: طراح
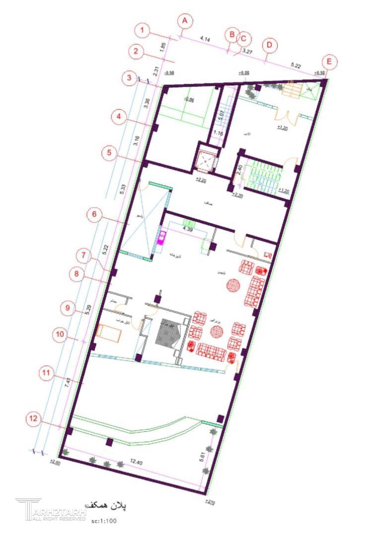
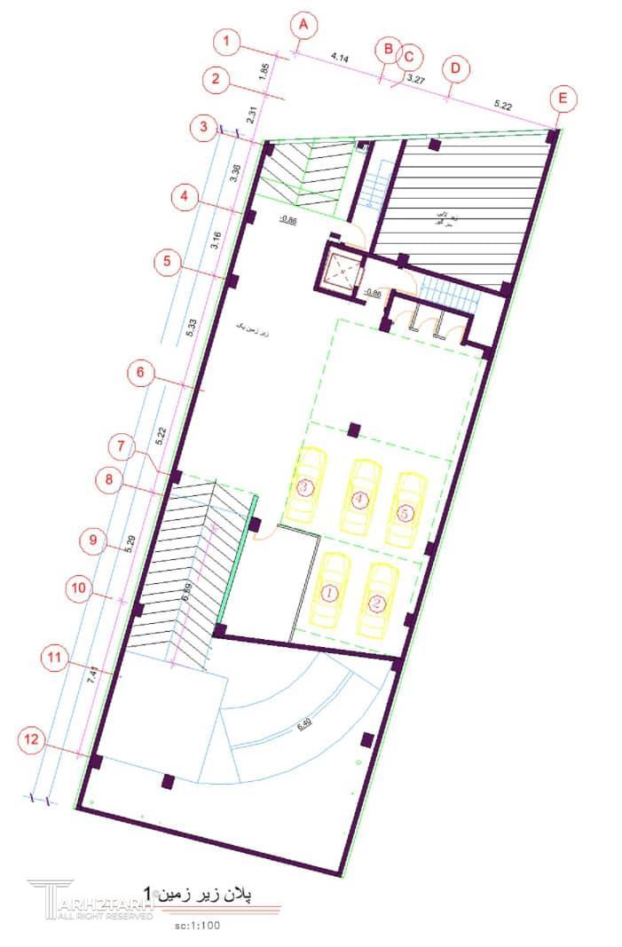
متراژ زیربنا : 2500
کارفرما : فرهانی
پیشنهاد و بازخورد