مسابقه طراحی پلان و نما شهراسب قیطریه

0

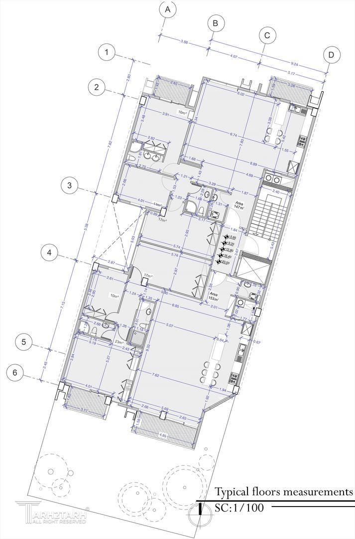
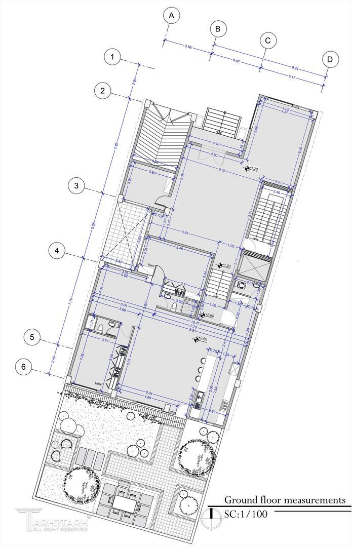
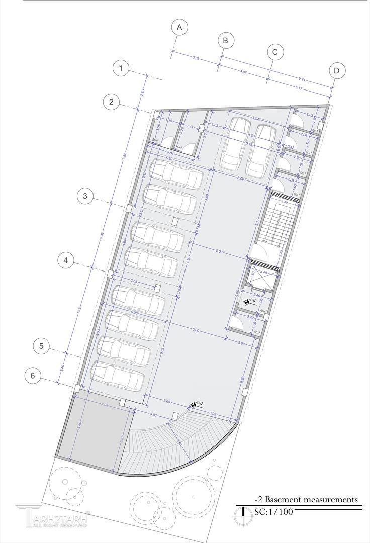
اطلاعات پروژه

ماهرخ اقنوم

نوع مسابقه: طراحی مسکونی
سال انجام پروژه : 1400
نقش: طراح
متراژ زیربنا : 2500
کارفرما : فرهانی
پیشنهاد و بازخورد