مسابقه طراحی ساختمان اداری بتن تنیده ایرانیان

0

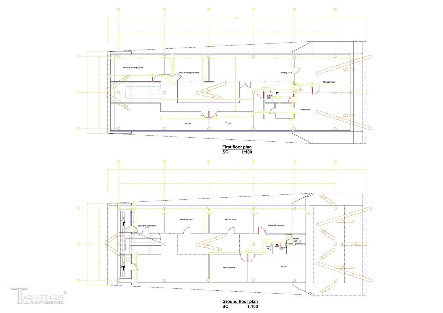
اطلاعات پروژه

سهیلا نظافت خواجه

نوع مسابقه: طراحی تجاری/ اداری
سال انجام پروژه : 1399
نقش: طراح
موقعیت : گلبهار
متراژ زیربنا : 600
کارفرما : نادر ولی نژاد

موقعیت مکانی پروژه

پیشنهاد و بازخورد