اطلاعات پروژه

نقش : طراح ارشد
نوع پروژه : طرح اجرایی
وضعیت : در حال اجرا
کاربری : ساختمان مسکونی
متراژ زمین : 320
متراژ زیربنا : 850
سبک‌های طراحی: مدرن

خدمات ارائه شده توسط طراح

خدمات طراحی و کانسپت
مدل‌سازی سه‌بعدی معماری
طراحی نقشه فاز دو معماری
طراحی پلان (نقشه معماری) فاز 1
طراحی نما
خدمات مشاوره و امکانسنجی
مشاوره تحلیل سایت پروژه
خدمات اجرایی و نظارتی
نظارت بر اجرای معماری (نظام مهندسی)

توضیحات پروژه

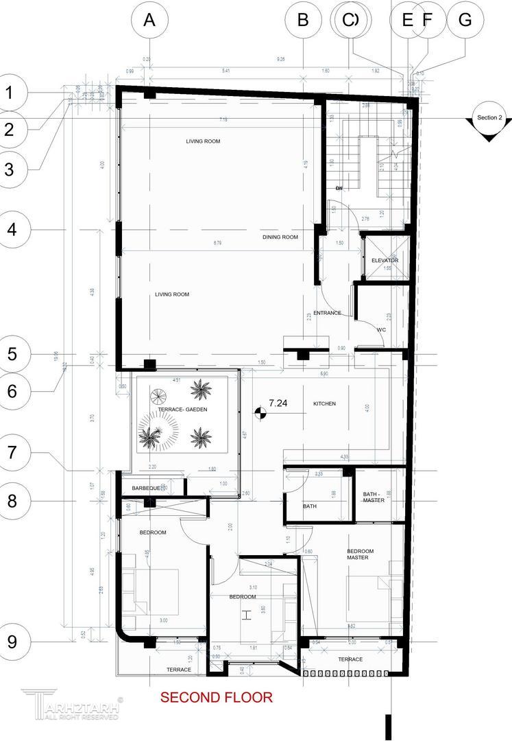
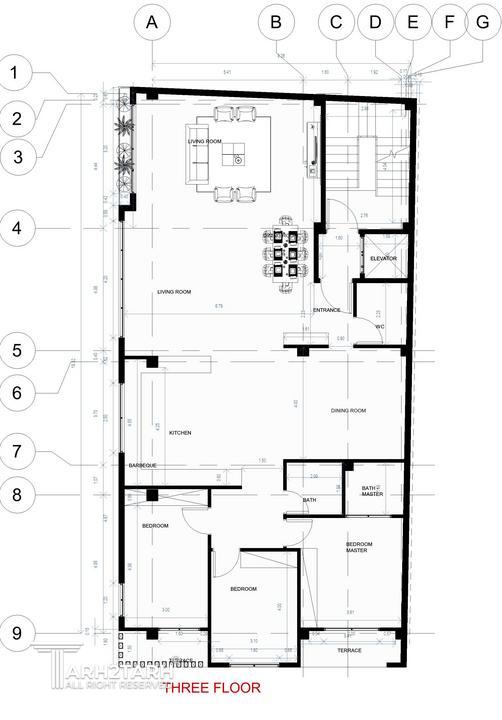
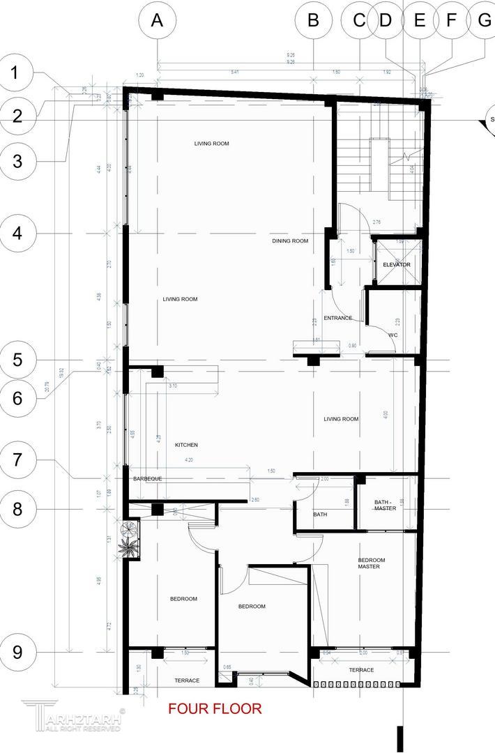
مالک دو برادر با خواسته های متفاوت که تلاش ایجاد آپارتمانی با ایجاد حیاط در طبقات که حس سبزی و سرزندگی با محوریت فضای سبز بود که به عنوان مفصل بتواند فضاهای خصوصی و عمومی را به م پیوند دهد.

موقعیت مکانی پروژه

نظرات
پیشنهاد و بازخورد