اطلاعات پروژه

نقش : طراح ارشد
کارفرما : جناب آقای محمدی
نوع پروژه : طرح اجرایی
وضعیت : اجرا شده
کاربری : ساختمان مسکونی
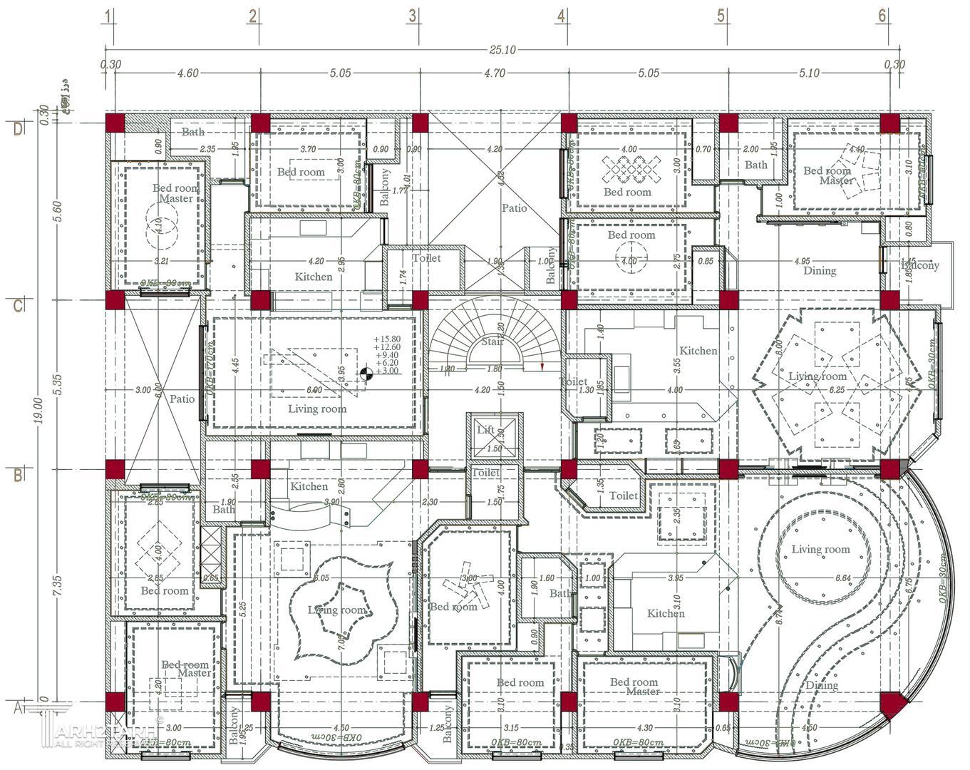
متراژ زمین : 722
متراژ زیربنا : 2960
سبک‌های طراحی: مدرن

خدمات ارائه شده توسط طراح

خدمات طراحی و کانسپت
مدلسازی
دکوراسیون داخلی
طراحی نورپردازی
طراحی نقشه سازه (فولادی، بتنی)
طراحی نقشه سازه
طراحی نقشه تأسیسات مکانیکی
طراحی نقشه تأسیسات الکتریکی
طراحی سردرب
خدمات مشاوره و امکانسنجی
مشاوره تحلیل سایت پروژه
مشاوره فاز صفر و امکان‌سنجی پروژه
مشاوره و برنامه‌ریزی تعیین کاربری پروژه
مشاوره و تجزیه و تحلیل فنی و اصلاحات نقشه‌ها برای تطبیق با ضوابط ارگانهای ذیربط
مشاوره طراحی اقلیمی
مشاوره در زمینه توسعه پایدار
مشاوره انتخاب مصالح و تکنولوژی‌های نوین ساختمانی
مشاوره‌های مرتبط با مجوزات (ضوابط تراکم، سطح اشغال، پروانه ساختمان، ماده 5، کمیسیون های شهرداری، پایان کار و …)
مشاوره آتش‌نشانی
خدمات دیگر
رندرینگ

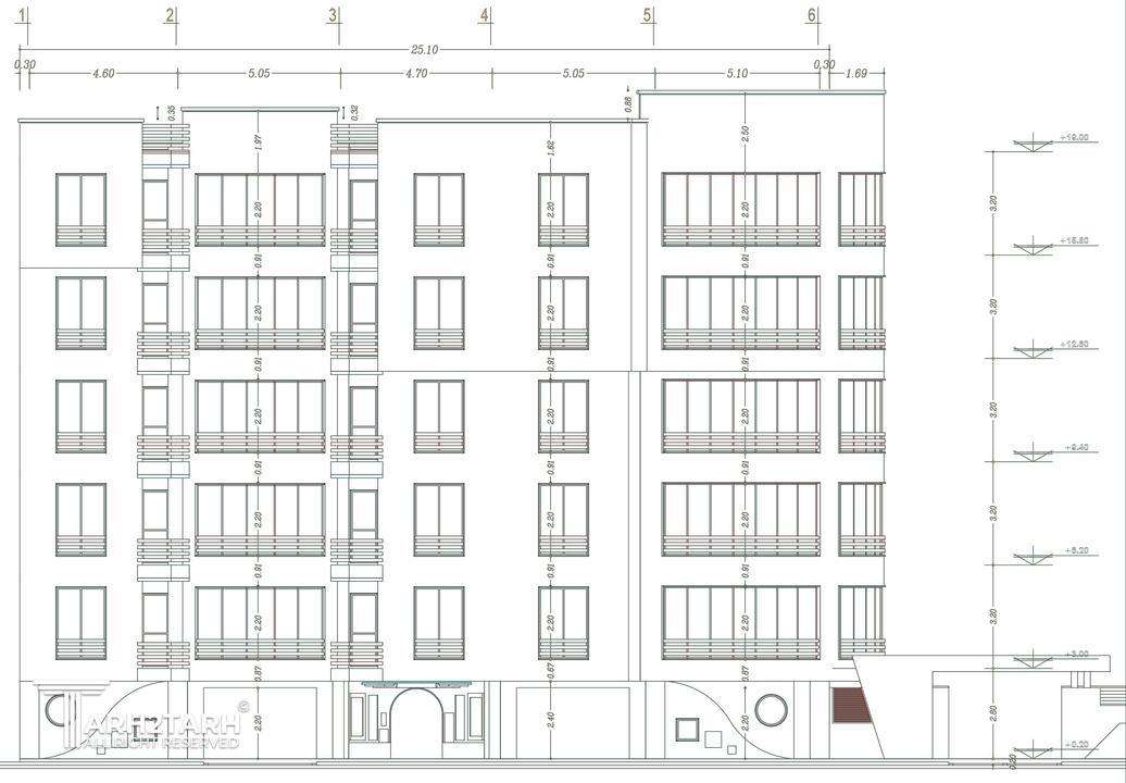
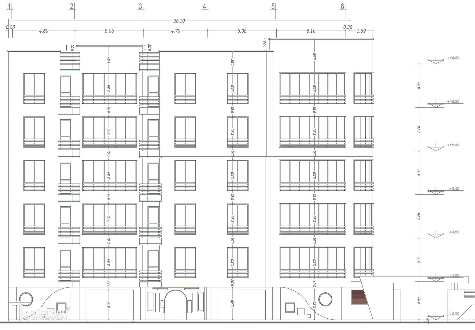
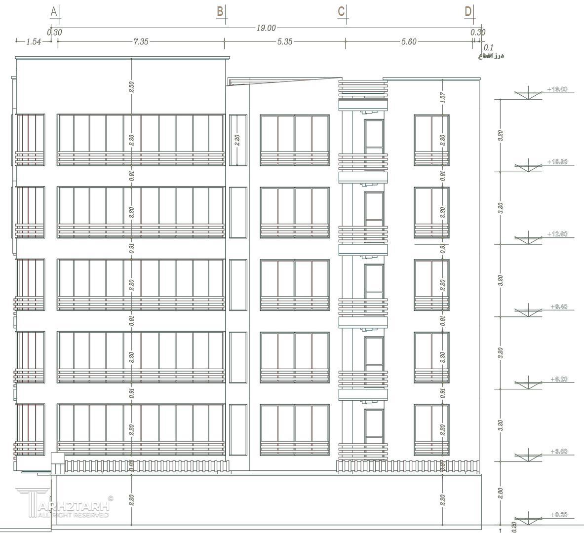
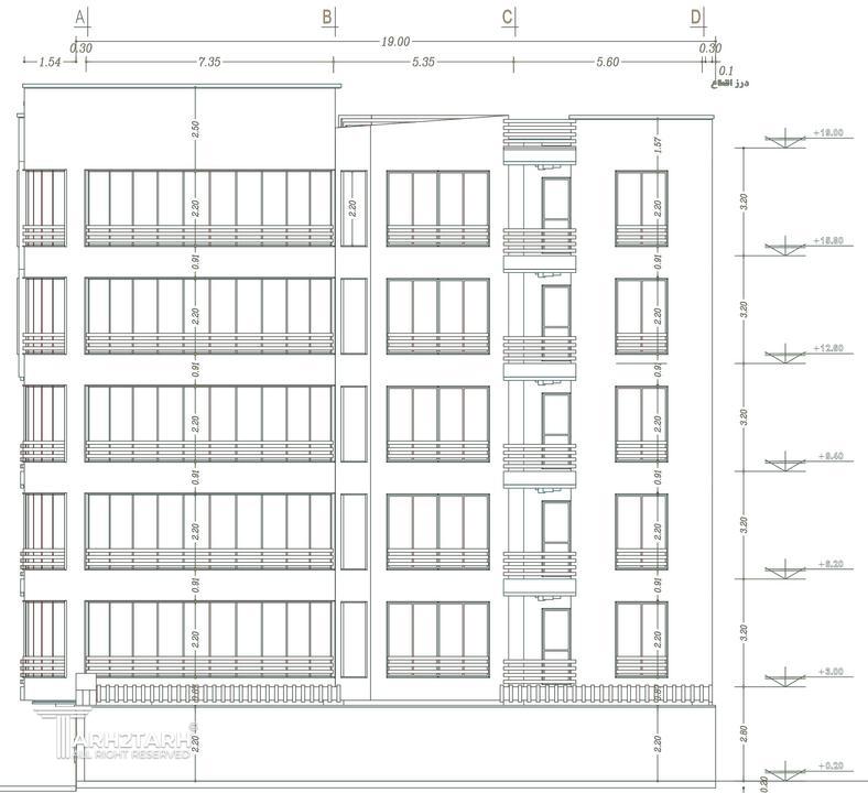
توضیحات پروژه

مجتمع مسکونی 20 واحدی و با معماری دلنواز و نورگیری حد اکثری

موقعیت مکانی پروژه

نظرات
پیشنهاد و بازخورد