مسابقه پروژه طراحی پلان و نما پارک مهر

0

اطلاعات پروژه

علی علی بابایی

نوع مسابقه: طراحی مسکونی
سال انجام پروژه : 1398
نقش: طراح
موقعیت : تهران
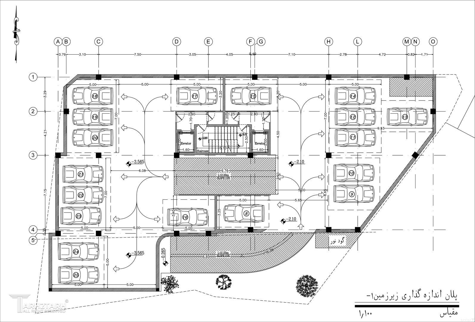
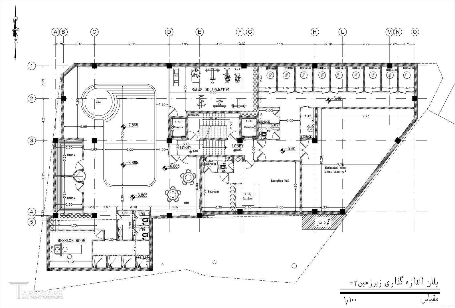
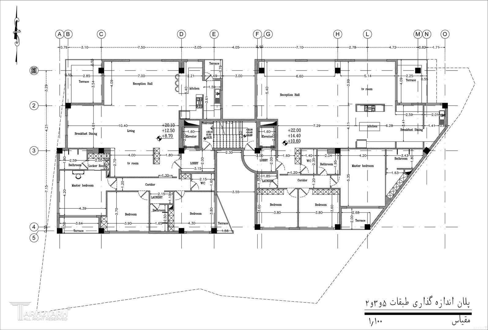
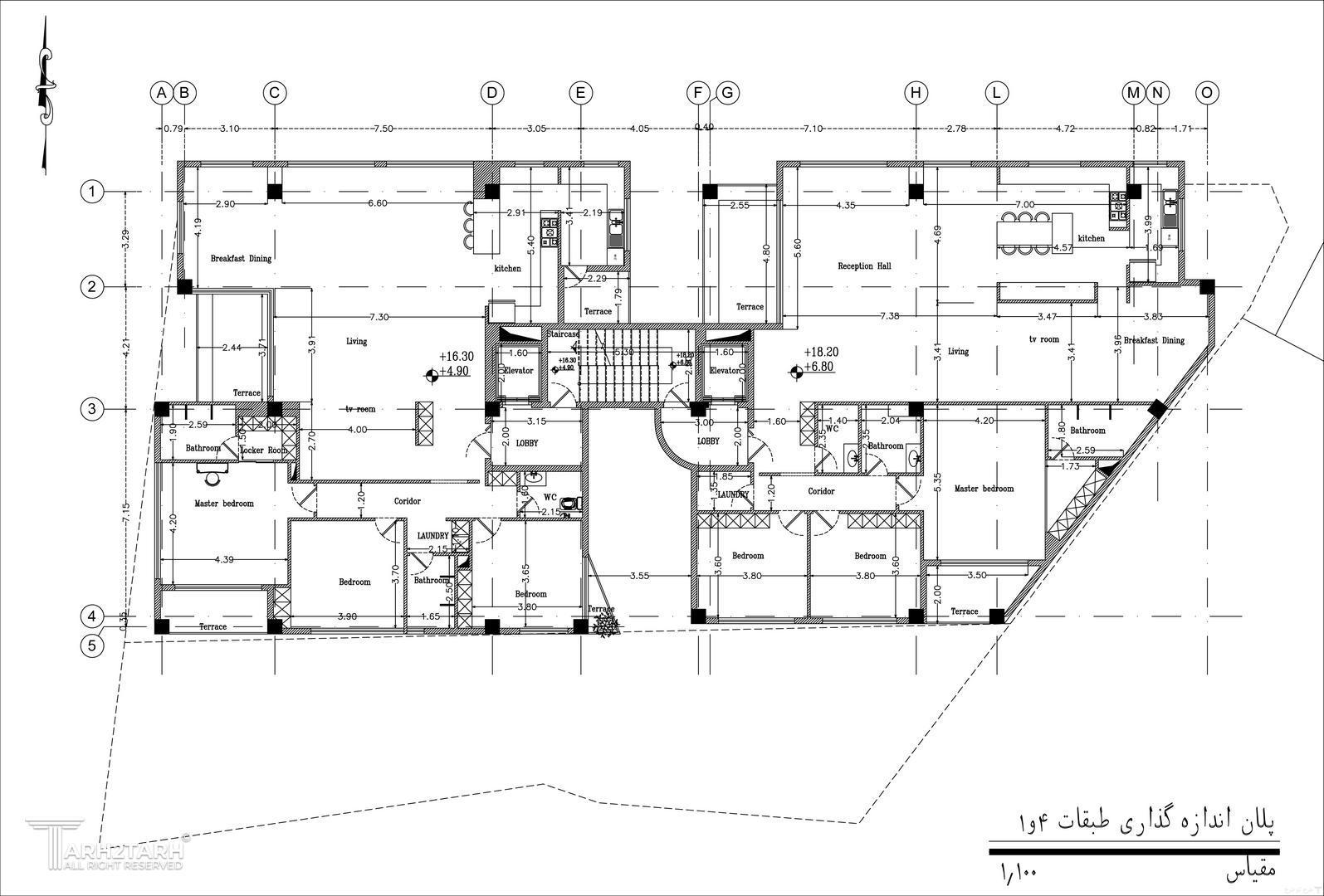
متراژ زیربنا : 738
مساحت زمین : 2656
کارفرما :

موقعیت مکانی پروژه

پیشنهاد و بازخورد