اطلاعات پروژه

نقش : طراح ارشد
نوع پروژه : طرح اجرایی
وضعیت : اجرا نشده
کاربری : ساختمان اداری ساختمان تجاری ساختمان مختلط مرکز خرید پاساژ بازار کافه رستوران سوپرمارکت هایپرمارکت زنجیره فروشگاه‌ها
متراژ زمین : 5000
متراژ زیربنا : 15000
سبک‌های طراحی: مدرن

خدمات ارائه شده توسط طراح

خدمات طراحی و کانسپت
طراحی کانسپت (معماری)
طراحی نقشه فاز دو معماری
طراحی پلان (نقشه معماری) فاز 1
طراحی نما
طراحی داخلی
خدمات مشاوره و امکانسنجی
مشاوره تحلیل سایت پروژه
مشاوره فاز صفر و امکان‌سنجی پروژه
مشاوره و برنامه‌ریزی تعیین کاربری پروژه
مشاوره و تجزیه و تحلیل فنی و اصلاحات نقشه‌ها برای تطبیق با ضوابط ارگانهای ذیربط
مشاوره طراحی اقلیمی
مشاوره در زمینه توسعه پایدار
مشاوره انتخاب مصالح و تکنولوژی‌های نوین ساختمانی
مشاوره مالی و بودجه‌ای
مشاوره آتش‌نشانی
مشاوره برندسازی و هویت پروژه
مشاوره تغییر کاربری
متره و برآورد هزینه ساخت پروژه
خدمات دیگر
طراحی و ساخت ماکت
رندرینگ
طراحی نرم‌افزارهای واقعیت مجازی و افزوده
عکاسی معماری
طراحی و چاپ کاتالوگ معماری
طراحی هویت برند، نام نشان تجاری برای پروژه‌های ساختمانی، لوگو
ساخت انیمیشن

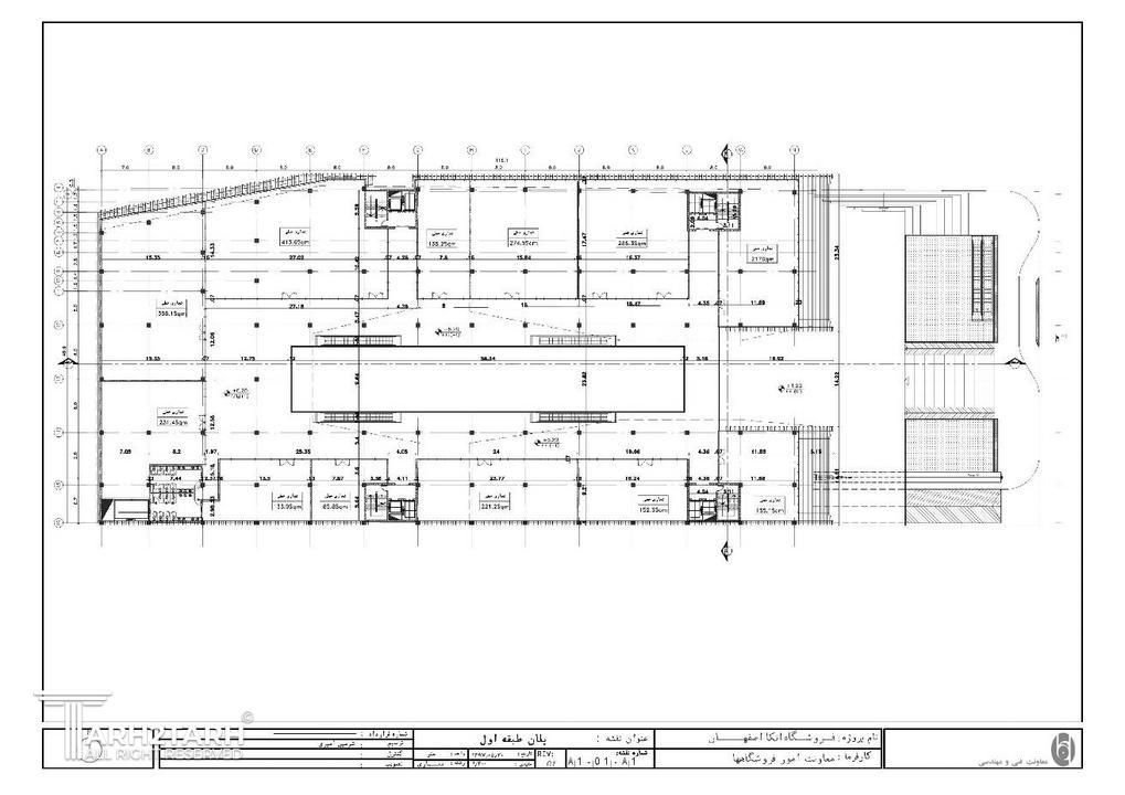
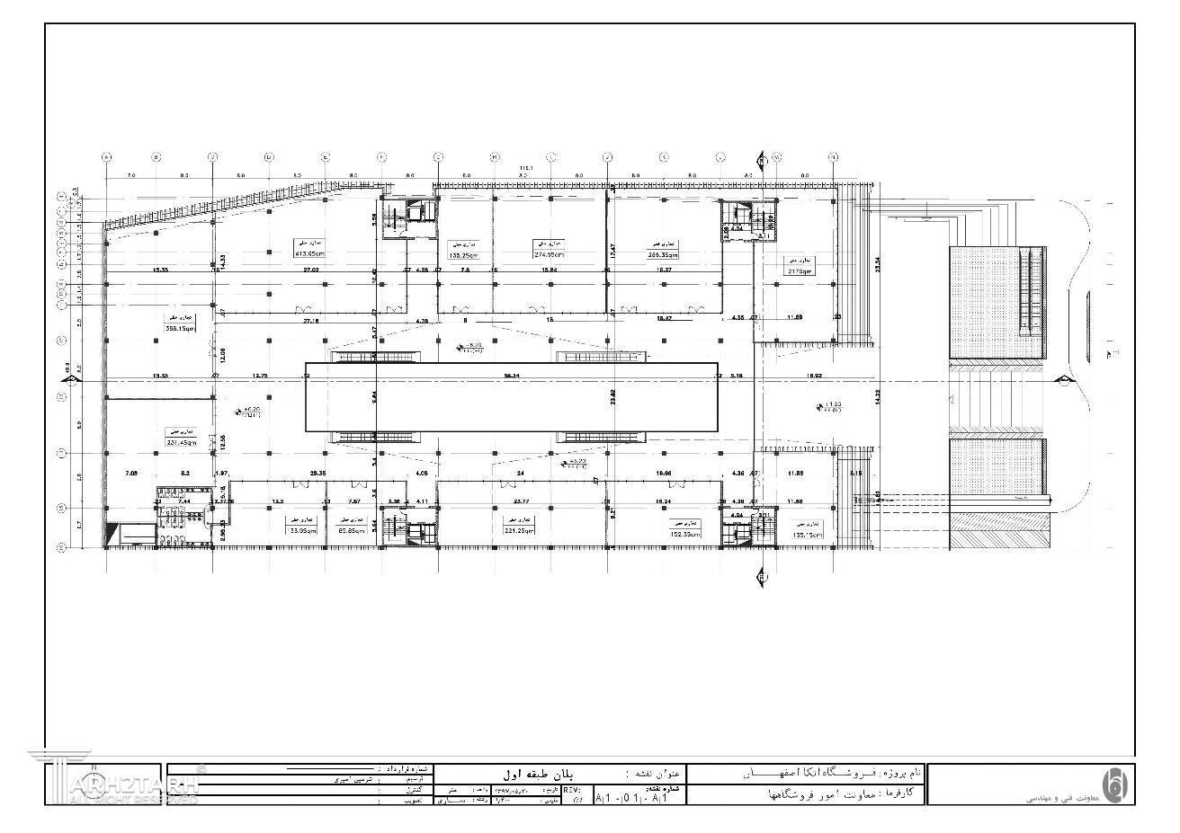
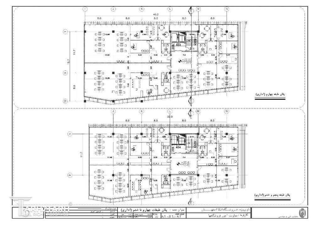
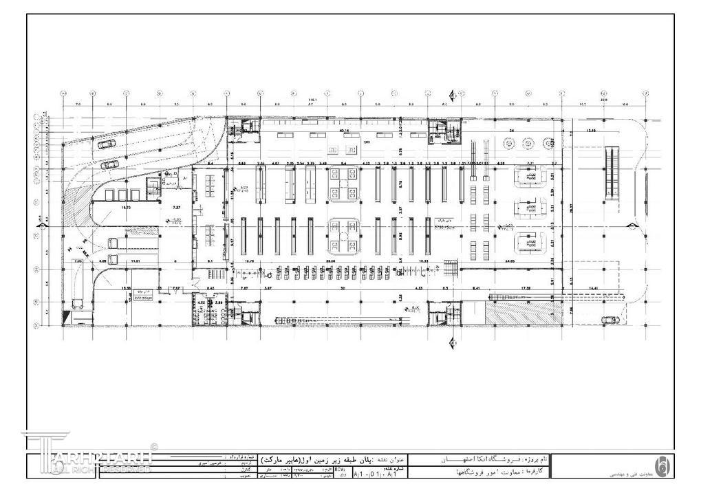
توضیحات پروژه

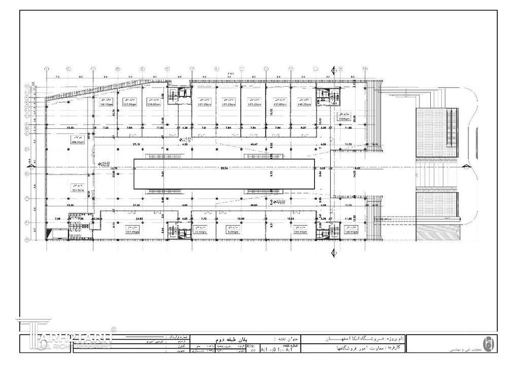
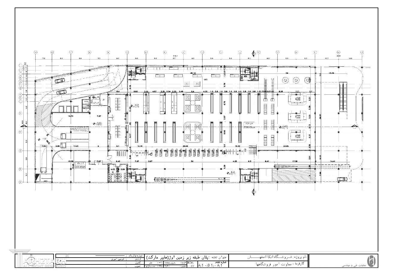
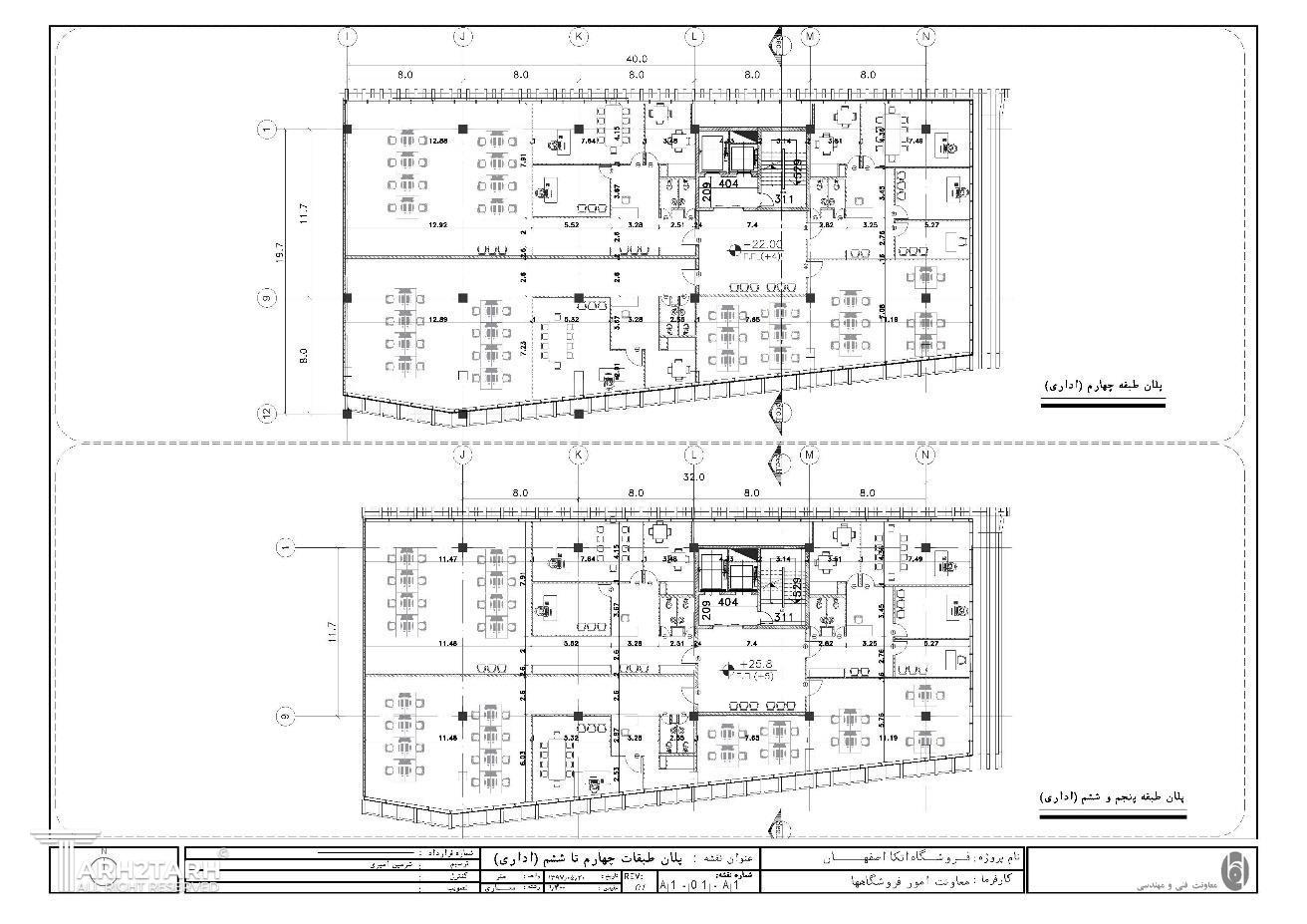
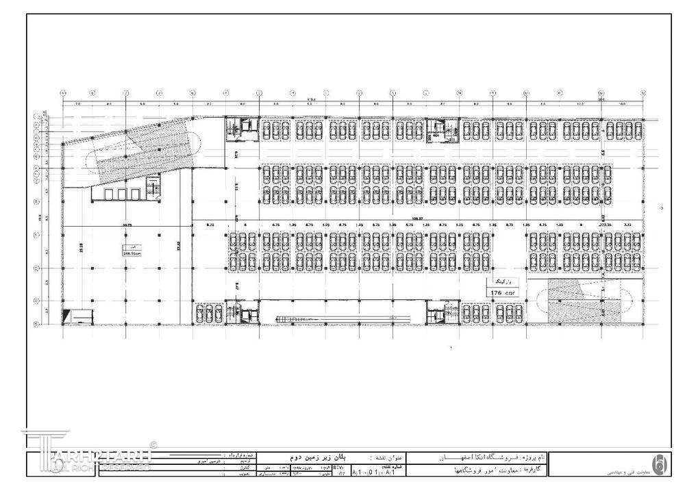
پروژه اتکا اصفهان واقع در خیابان صفه، با هدف نوسازی یک فروشگاه قدیمی و تبدیل آن به مجموعه‌ای مدرن اداری‌–‌تجاری طراحی شده است. در این طرح، با رویکردی اقلیمی و با توجه به ویژگی‌های خاص شهر اصفهان، حداکثر سایه‌اندازی، بهره‌گیری از نور طبیعی و دید مطلوب مد نظر قرار گرفته است.

موقعیت مکانی پروژه

نظرات
پیشنهاد و بازخورد