اطلاعات پروژه

نقش : طراح ارشد
کارفرما : جناب آقای حبیی و بهشتی
نوع پروژه : طرح اجرایی
وضعیت : اجرا شده
کاربری : ساختمان اداری ساختمان تجاری
متراژ زمین : 780
متراژ زیربنا : 5200
سبک‌های طراحی: مدرن

خدمات ارائه شده توسط طراح

خدمات طراحی و کانسپت
طراحی نقشه سازه
طراحی نقشه تأسیسات مکانیکی
طراحی نقشه تأسیسات الکتریکی
طراحی سیستم برق اضطراری و تابلو برق
طراحی سیستم‌های گرمایش، سرمایش، تهویه
طراحی نقشه فاز دو معماری
طراحی پلان (نقشه معماری) فاز 1
خدمات مشاوره و امکانسنجی
مشاوره تحلیل سایت پروژه
مشاوره و تجزیه و تحلیل فنی و اصلاحات نقشه‌ها برای تطبیق با ضوابط ارگانهای ذیربط
مشاوره‌های مرتبط با مجوزات (ضوابط تراکم، سطح اشغال، پروانه ساختمان، ماده 5، کمیسیون های شهرداری، پایان کار و …)
مشاوره آتش‌نشانی
خدمات فنی و مهندسی
اخذ تاییدیه نقشه پلان
ارائه برگه تعهد تهیه نقشه سازه
ارائه برگه تعهد تهیه نقشه تاسیسات مکانیکی
ارائه برگه تعهد تهیه نقشه تاسیسات الکتریکی
کنترل و اصلاح نقشه‌های معماری، سازه و ...
سیستم مانیتوریگ سلامت ساختمان در زلزله (قابلیت استفاده دوباره از ساختمان در زلزله)
تهیه نقشه معماری فاز دو جهت ارائه به سازمان نظام مهندسی
تهیه نقشه سازه فاز دو جهت ارائه به سازمان نظام مهندسی
تهیه نقشه تاسیسات برقی فاز دو جهت ارائه به سازمان نظام مهندسی
تهیه نقشه تاسیسات مکانیکی فاز دو جهت ارائه به سازمان نظام مهندسی
تهیه نقشه معماری فاز دو اجرایی
تهیه نقشه سازه فاز دو اجرایی
تهیه نقشه تاسیسات مکانیکی فاز دو اجرایی
تهیه نقشه تاسیسات برقی فاز دو اجرایی
ارائه برگه تعهد تهیه نقشه معماری

توضیحات پروژه

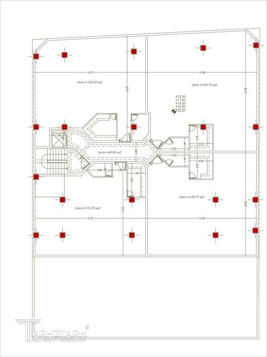
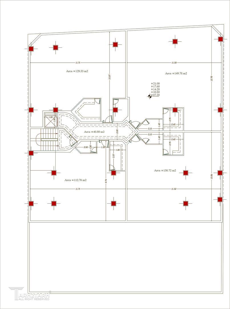
یکی از پر چالشترین مسائل در این ساختمان عدم تامین پارکینگ بود که با یک ایده خلاقانه نه تنها تمام پترکینگ ها تامین شد بلکه پارکینگ اضافه نیز تامین شد.

موقعیت مکانی پروژه

نظرات
پیشنهاد و بازخورد