0
طراحان
طراحان برتر
رزومه طراحان
پرسشهای متداول طراحان
آرشیو مسابقات
خدمات منتورینگ
متقاضیان طراحی
خدمات ما
درخواست مشاوره
پرسش های متقاضیان طراحی
خدمات منتورینگ
قیمت طراحی
طراحی مسکونی/ اداری/ تجاری
طراحی ویلا
خدمات طراحی
نوع خدمات
قیمت طراحی نما
قیمت طراحی پلان
کاربری ساختمان
قیمت طراحی ویلا
قیمت طراحی مسکونی
قیمت طراحی اداری/تجاری
مجله طرح تو طرح
پیشنهادها و بازخورد
ورود | ثبت نام
ورود/ثبت نام
مجله
کاربران
مسابقات
خانه
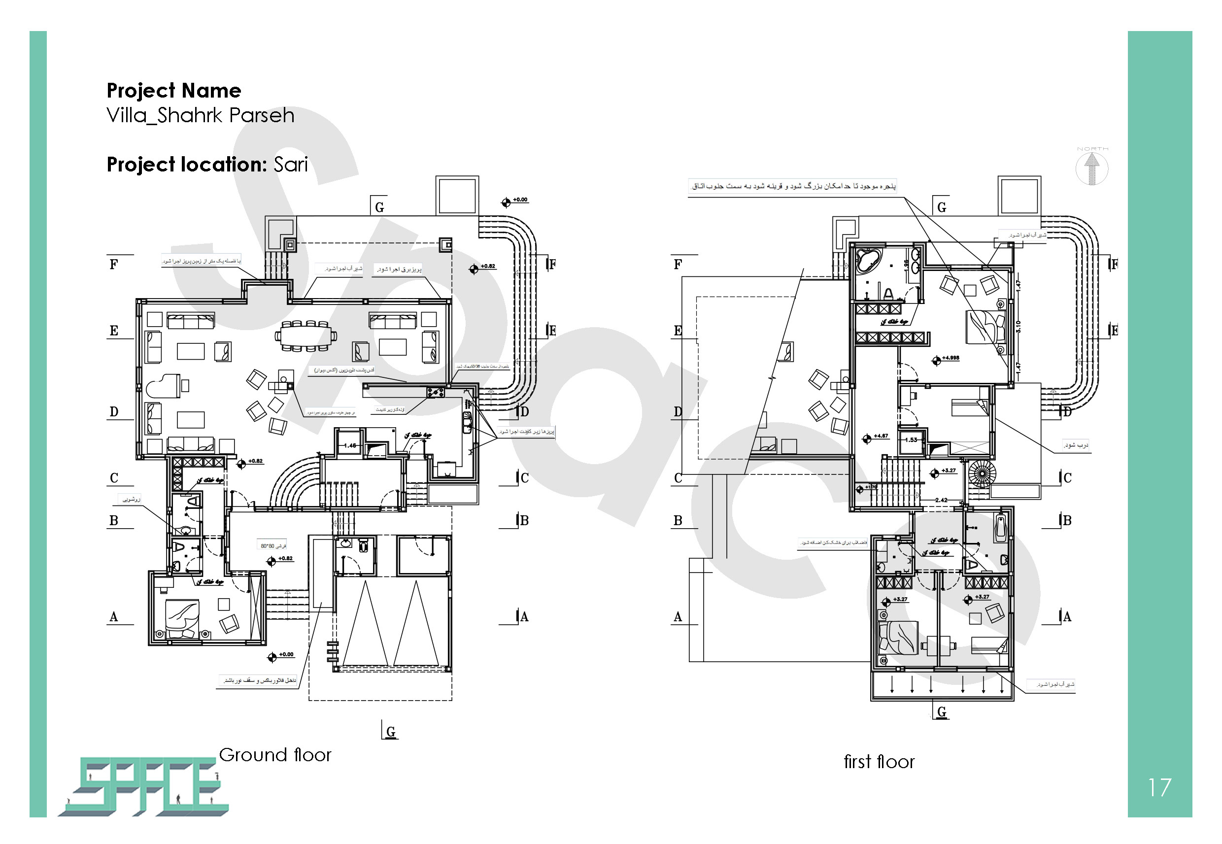
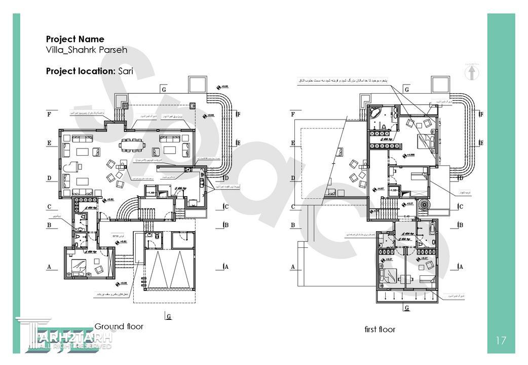
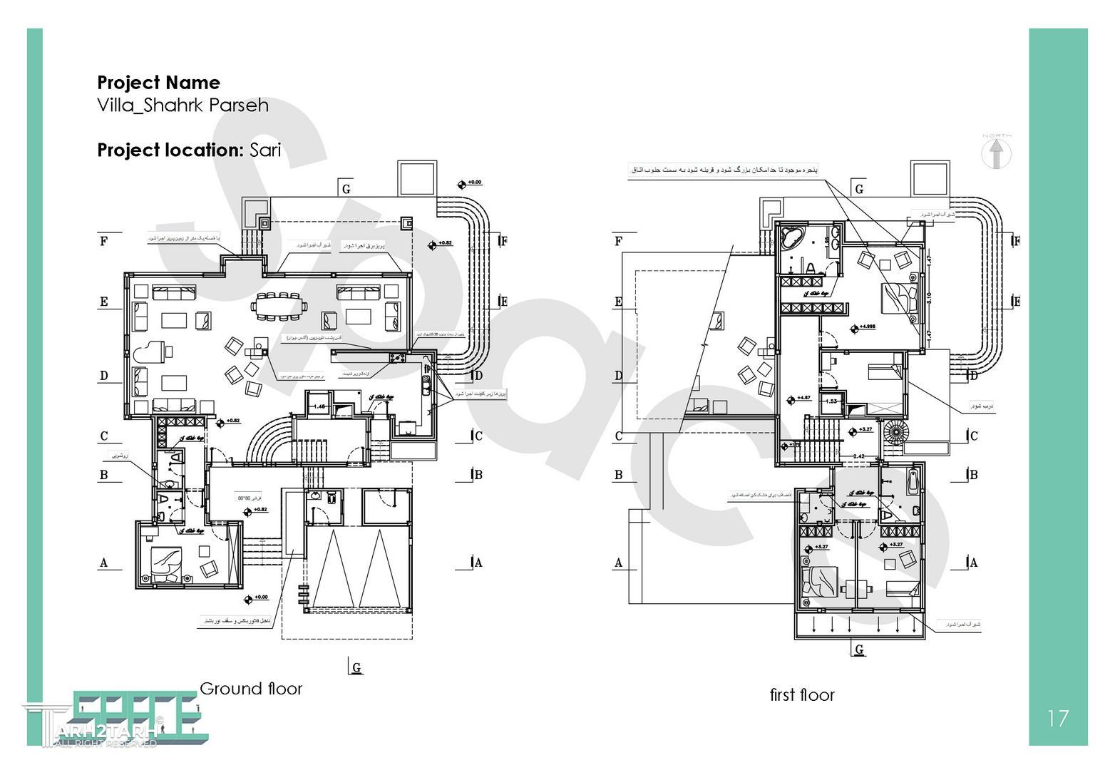
طراحی ویلا مسکونی شهرک پارسه
1397
0
اطلاعات پروژه
گروه معماری فضا
نوع پروژه :
طرح اجرایی
توضیحات پروژه
همه مستندات (1)
نظرات (0)
نظرات
برای ثبت کامنت ابتدا
وارد سایت شوید
.
پیشنهاد و بازخورد
نظرات