مسابقه پروژه طراحی مجتمع شاهرود

0

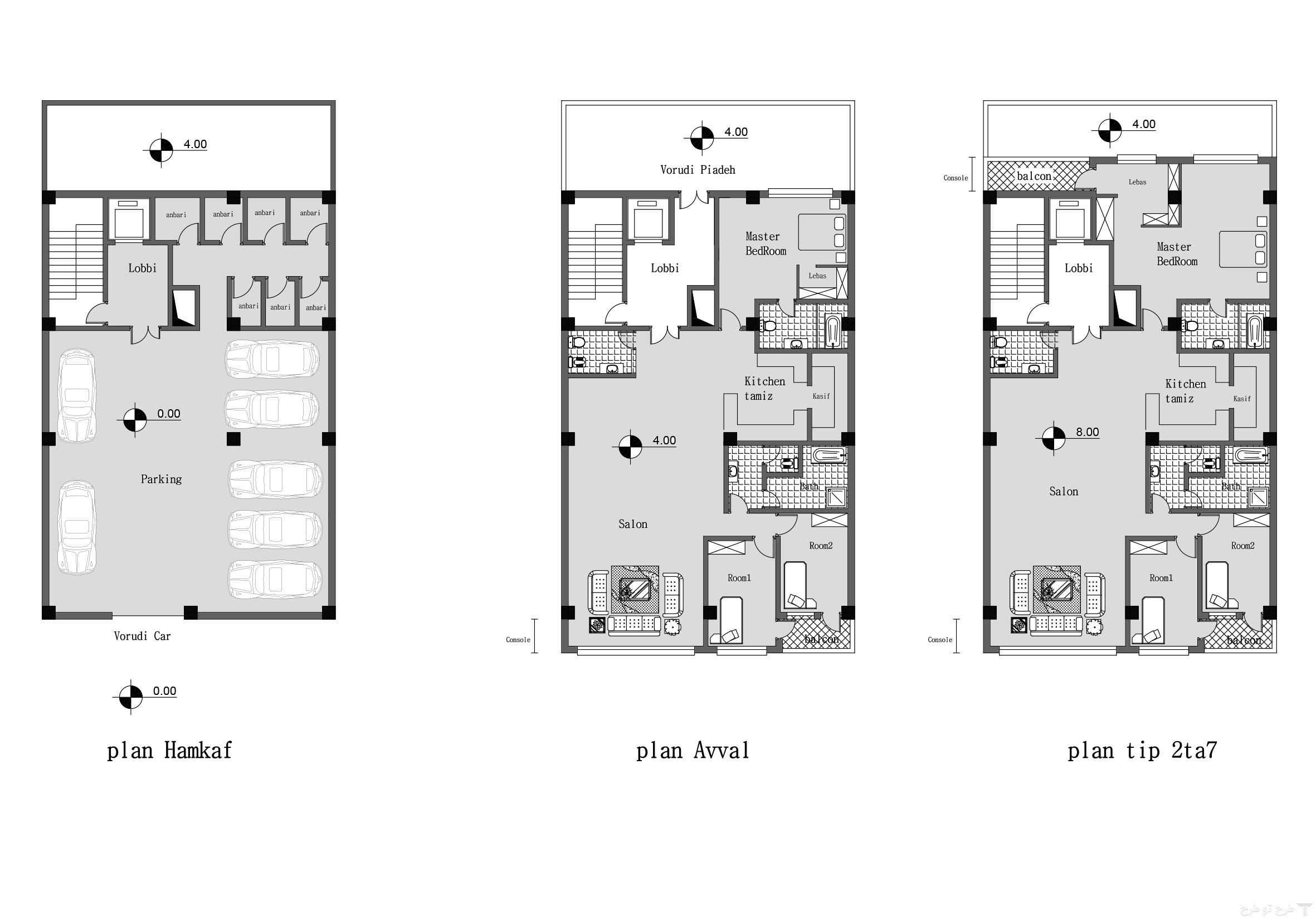
اطلاعات پروژه

Reza Ghadr

نوع مسابقه: طراحی مسکونی
سال انجام پروژه : 1398
نقش: طراح
موقعیت : شاهرود
متراژ زیربنا : 7450
مساحت زمین : 5000
کارفرما :

موقعیت مکانی پروژه

پیشنهاد و بازخورد