اطلاعات پروژه

نقش : طراح ارشد
نوع پروژه : طرح اجرایی
وضعیت : در حال اجرا
کاربری : ساختمان مسکونی
متراژ زمین : 120
متراژ زیربنا : 350
سبک‌های طراحی: مدرن

خدمات ارائه شده توسط طراح

خدمات طراحی و کانسپت
مدل‌سازی سه‌بعدی معماری
طراحی کانسپت (معماری)
طراحی نقشه فاز دو معماری
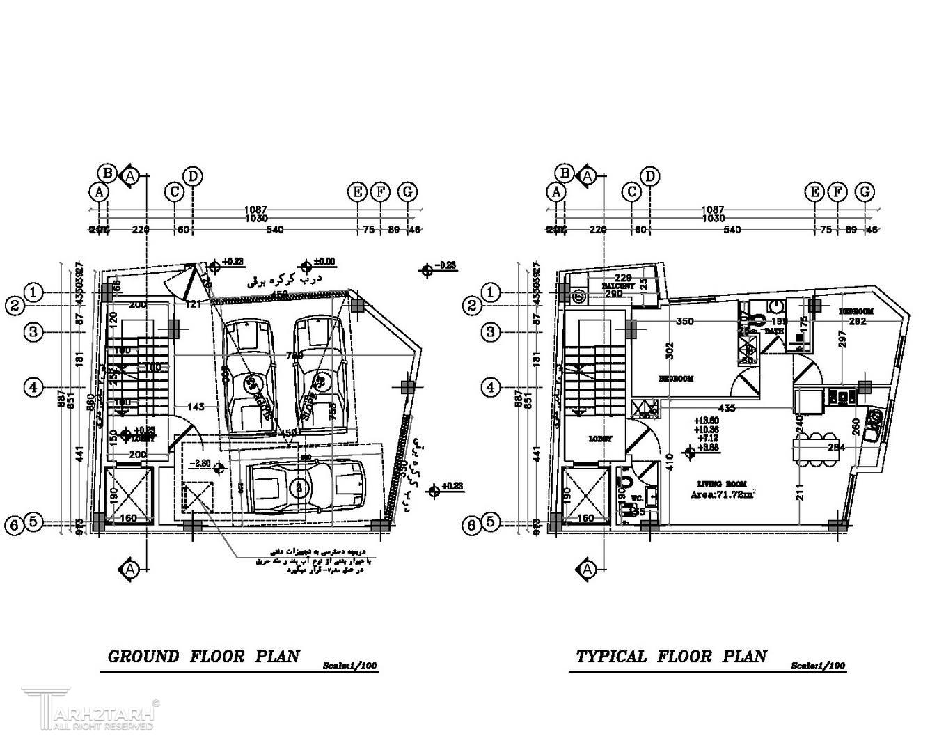
طراحی پلان (نقشه معماری) فاز 1
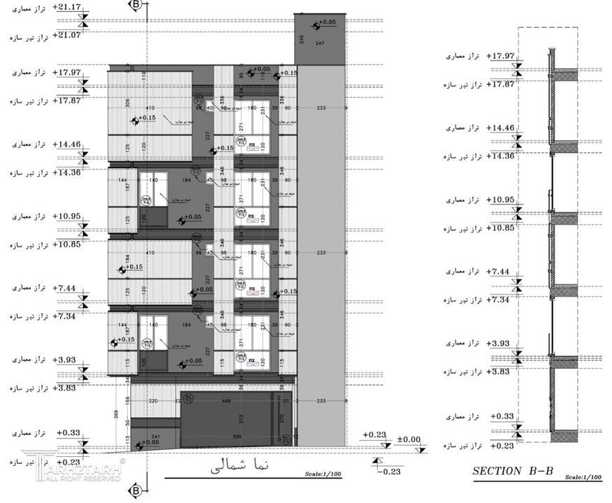
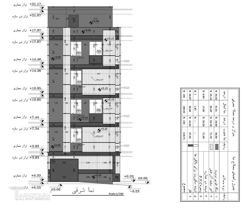
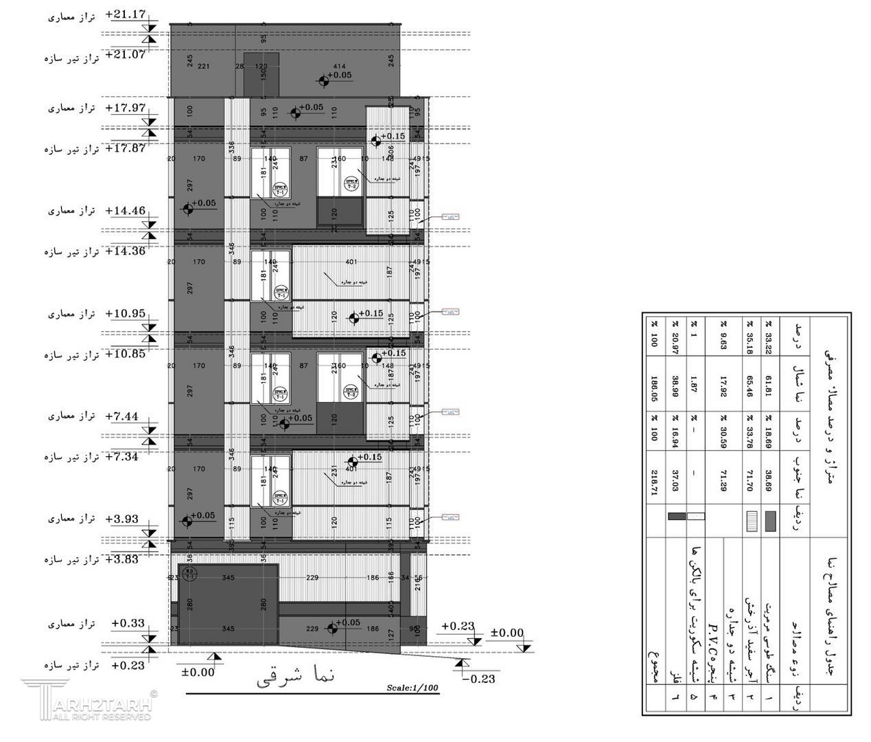
طراحی نما
طراحی داخلی
خدمات مشاوره و امکانسنجی
مشاوره فاز صفر و امکان‌سنجی پروژه
تطبیق نقشه‌ها با ضوابط شهرداری
خدمات فنی و مهندسی
اخذ تاییدیه نقشه پلان
اخذ تاییدیه نما
تهیه آلبوم نمای شهرداری
تهیه نقشه فاز دو شهرداری
تهیه نقشه فاز دو نظام مهندسی
تهیه طرح توجیهی و امکانسنجی(جهت ارائه به کمیسیون ماده 5 و ...)
رندرینگ و خدمات فنی
مدل سازی
انجام تغییرات نقشه معماری
تهیه نقشه معماری فاز دو جهت ارائه به سازمان نظام مهندسی
اخذ پروانه (جواز) تخریب و نوسازی شهرداری
تهیه نقشه‌های اجرایی پروژه برای دریافت مجوزهای لازم (شهرداری، نظام مهندسی و …)
ارائه برگه تعهد تهیه نقشه معماری
خدمات دیگر
رندرینگ

توضیحات پروژه

پروژه زمین ۱۲۰ متری با ابعادی عجیب در منطقه ۱ تهران به صورت شخصی سازی شده برای کارفرما از دستور نقشه تا روند تاییدیه نما و جواز انجام شد ، تاییدیه نما منطقه ۱ دارد ، و در حال روند اجرا میباشد

موقعیت مکانی پروژه

نظرات
پیشنهاد و بازخورد