مشهد
1402
0

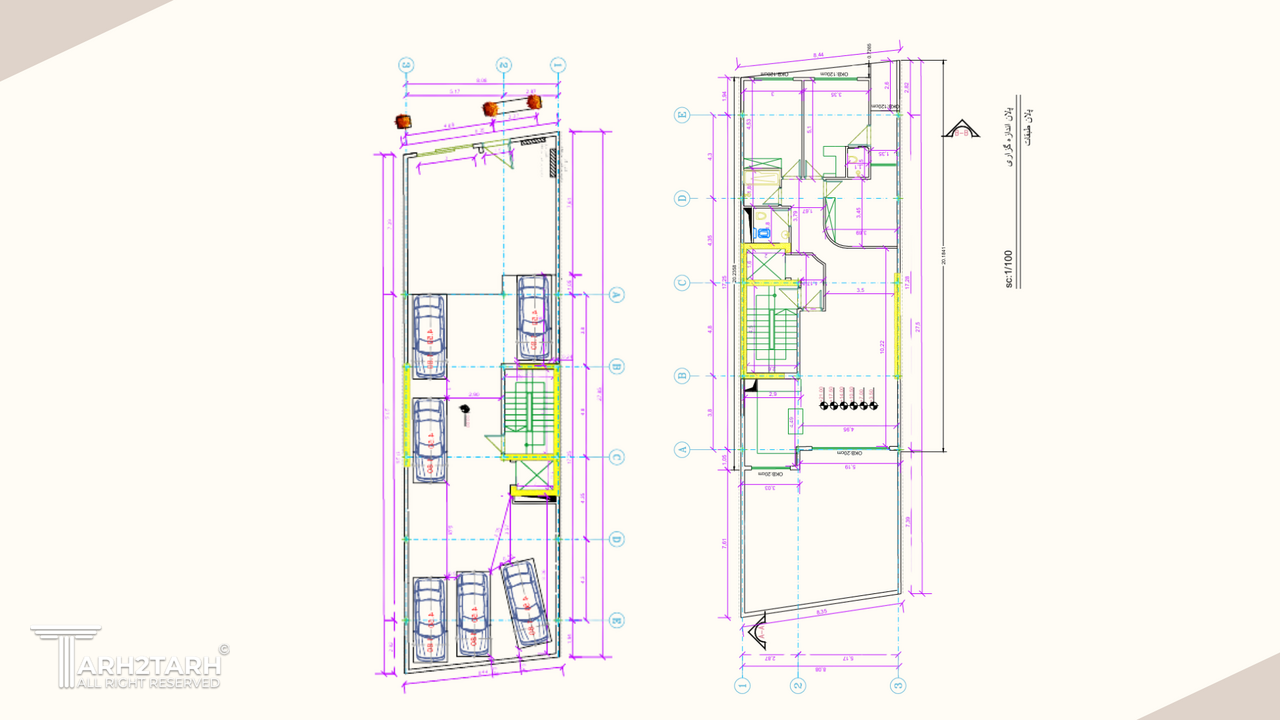
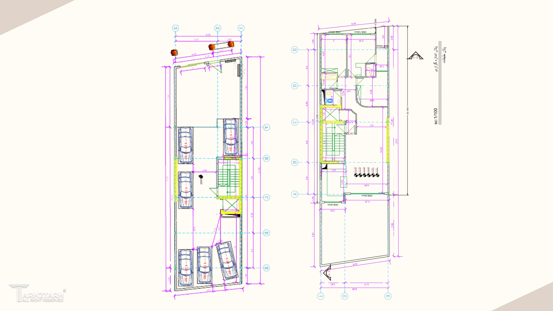
اطلاعات پروژه

نوع پروژه : طرح اجرایی
وضعیت : اجرا شده
کاربری : ساختمان مسکونی
متراژ زمین : 250
متراژ زیربنا : 1100
سبک‌های طراحی: مدرن

خدمات ارائه شده توسط طراح

خدمات طراحی و کانسپت
طراحی منظر، فضای سبز، لند اسکیپ، روف گاردن و محوطه
طراحی نما
طراحی داخلی

توضیحات پروژه

طراحی نما و داخلی و روف گاردن پروژه توسط دفتر ما به اجرا رسیده است

موقعیت مکانی پروژه

نظرات
پیشنهاد و بازخورد