اطلاعات پروژه

نوع پروژه : طرح اجرایی
وضعیت : اجرا شده
کاربری : واحد مسکونی
متراژ زمین : 230
متراژ زیربنا : 230
سبک‌های طراحی: مدرن

خدمات ارائه شده توسط طراح

خدمات طراحی و کانسپت
طراحی کانسپت (معماری)
طراحی داخلی
خدمات اجرایی و نظارتی
نظارت عالیه بر اجرا
بازسازی
مدیریت پروژه

توضیحات پروژه

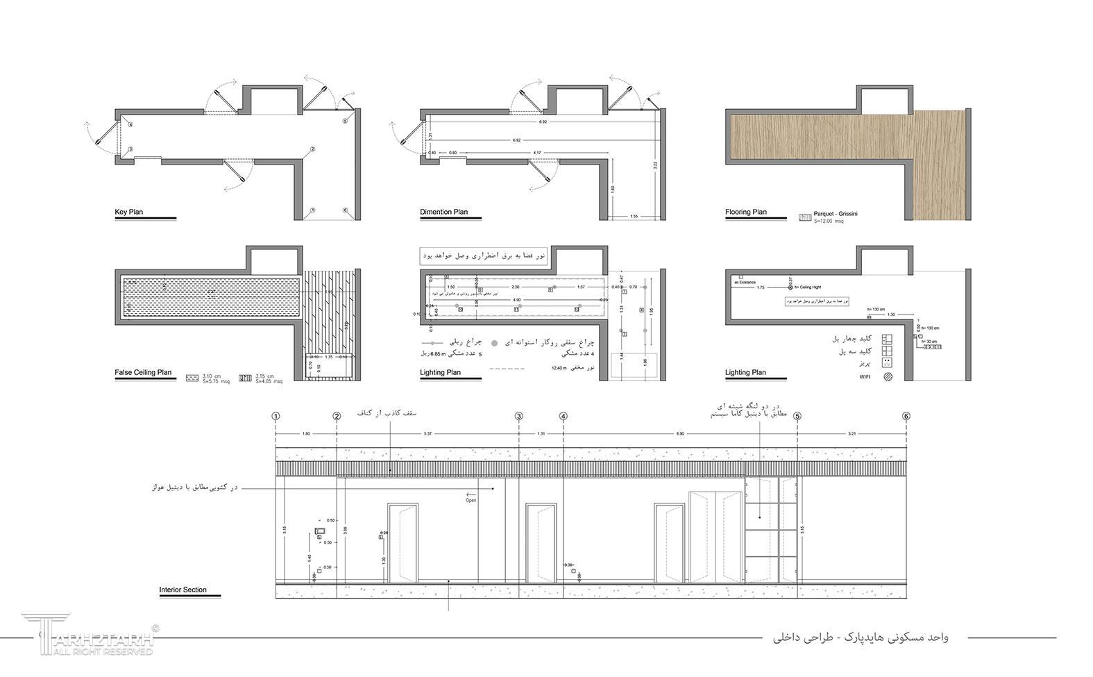
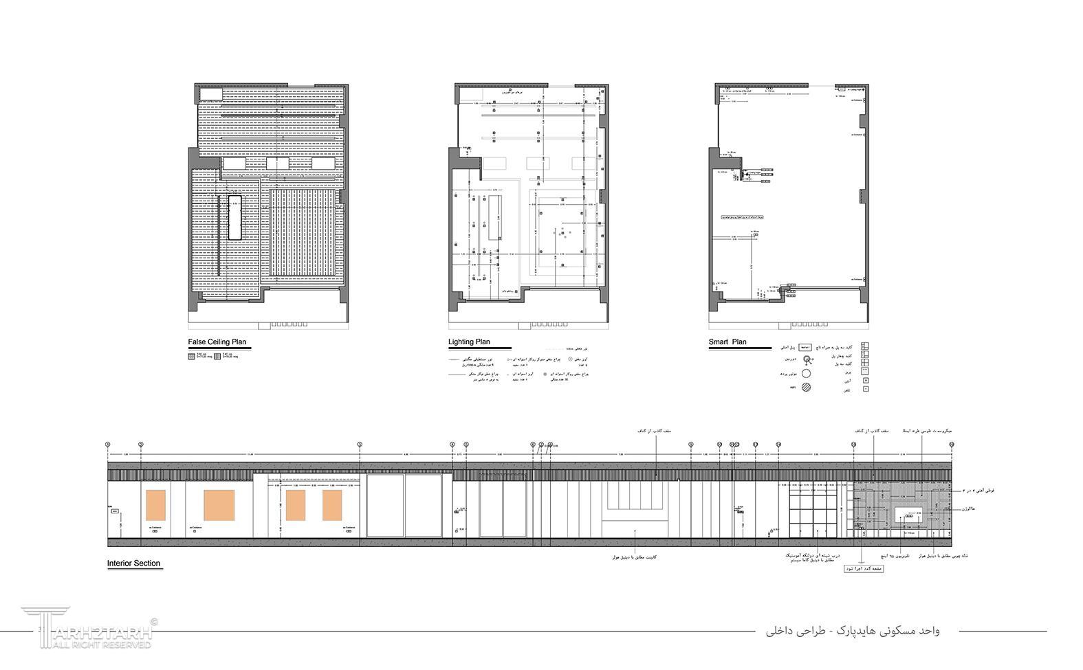
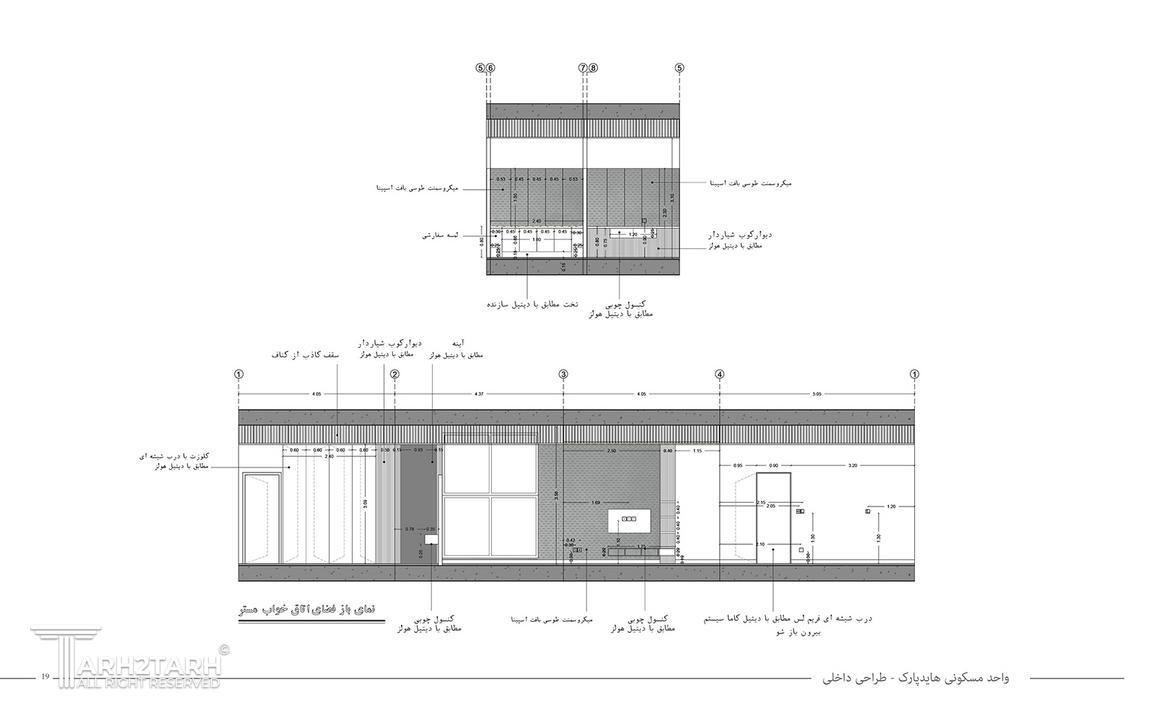
پروژه "اوگار" بازسازی یک خانه 230 متری در مجتمع مسکونی هاید پارک در شیخ بهایی است. مالک خانه فردی است هنر دوست که به ساز و ضبط موسیقی و همچنین آثار هنری علاقه مند است. از این روی پروسه طراحی بر این اصل بنا شد و محل زندگی او در غالب یک خانه-گالری طراحی و بازسازی شد.

موقعیت مکانی پروژه

نظرات
پیشنهاد و بازخورد