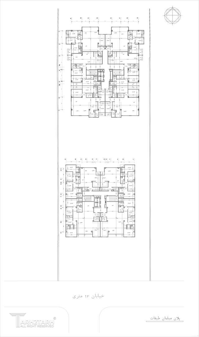
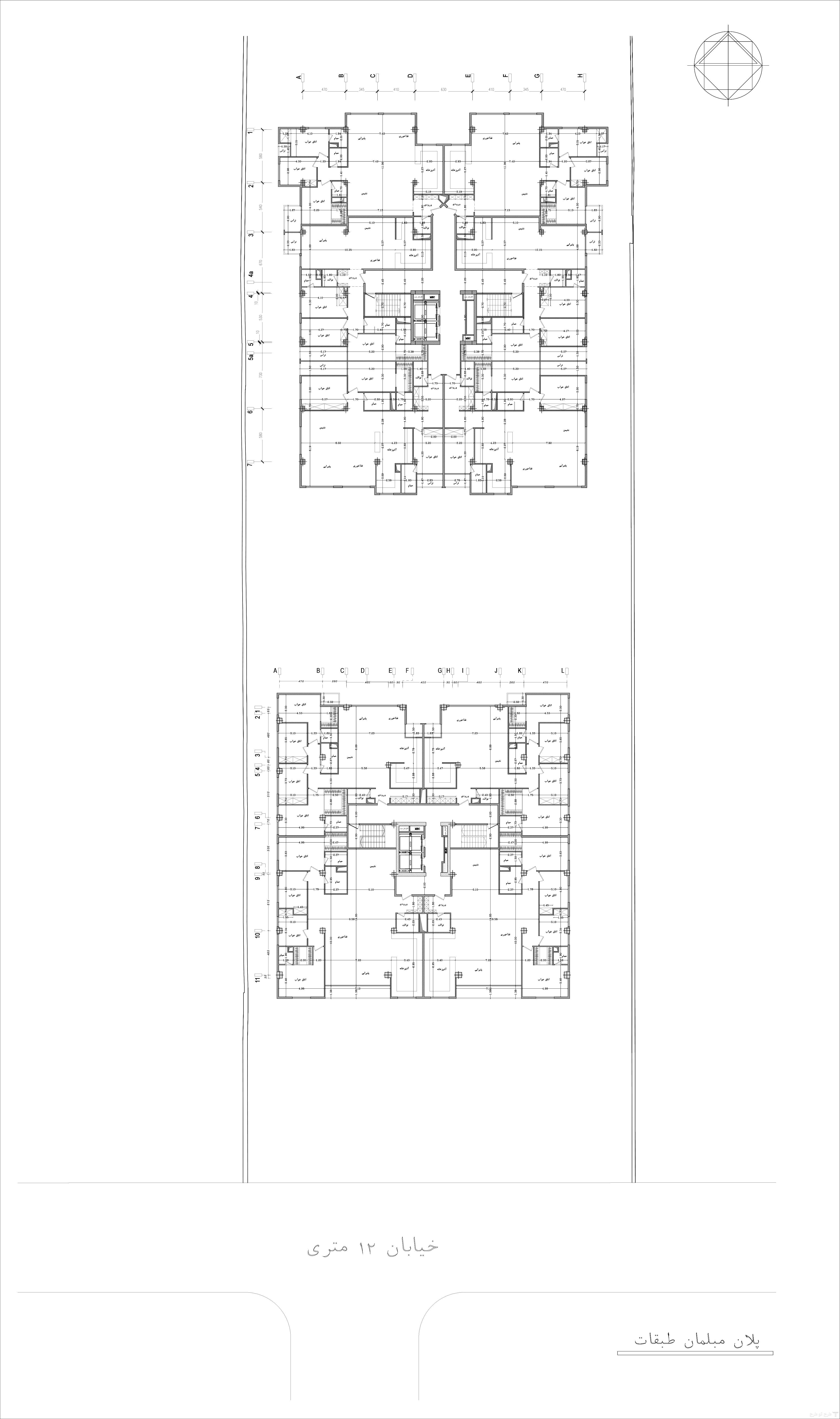
مسابقه طراحی پلان طبقه مسکونی در دو بلوک سعادت آباد

0

اطلاعات پروژه

مریم حسینی

نوع مسابقه: طراحی مسکونی
سال انجام پروژه : 1398
نقش: طراح
موقعیت : تهران
متراژ زیربنا : 1000
مساحت زمین : 2000
کارفرما : مسعود پورقدیری

موقعیت مکانی پروژه

پیشنهاد و بازخورد