اطلاعات پروژه

نقش : طراح ارشد
کارفرما : آقای محمدیان
نوع پروژه : طرح اجرایی
وضعیت : اجرا شده
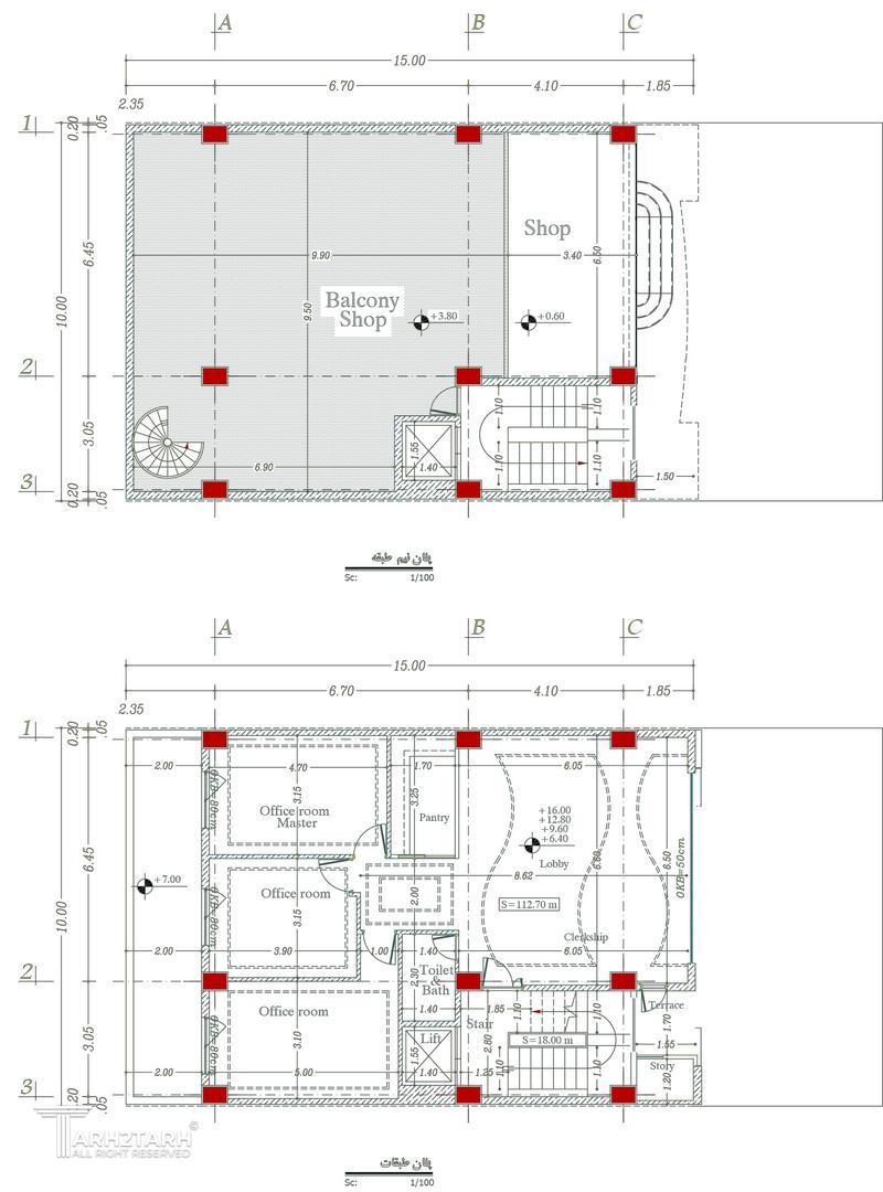
کاربری : ساختمان اداری ساختمان تجاری
متراژ زمین : 150
متراژ زیربنا : 940
سبک‌های طراحی: مدرن

خدمات ارائه شده توسط طراح

خدمات طراحی و کانسپت
مدل‌سازی سه‌بعدی معماری
طراحی نورپردازی
طراحی نقشه سازه بتنی
طراحی نقشه فاز دو معماری
طراحی پلان (نقشه معماری) فاز 1
طراحی نما
خدمات مشاوره و امکانسنجی
مشاوره تحلیل سایت پروژه
مشاوره و تجزیه و تحلیل فنی و اصلاحات نقشه‌ها برای تطبیق با ضوابط ارگانهای ذیربط
خدمات اجرایی و نظارتی
نظارت عالیه بر اجرا
خدمات فنی و مهندسی
اخذ تاییدیه نقشه پلان
مدل سازی
انجام تغییرات نقشه معماری
ارائه برگه تعهد تهیه نقشه سازه
ارائه برگه تعهد تهیه نقشه تاسیسات مکانیکی
ارائه برگه تعهد تهیه نقشه تاسیسات الکتریکی
خدمات دیگر
رندرینگ

توضیحات پروژه

یک ساختمان اداری تجاری ، 4 طبقه تک واحدی و طبقه همکف یک باب تجاری

موقعیت مکانی پروژه

نظرات
پیشنهاد و بازخورد