مسابقه طراحی ویلا زایگان

0

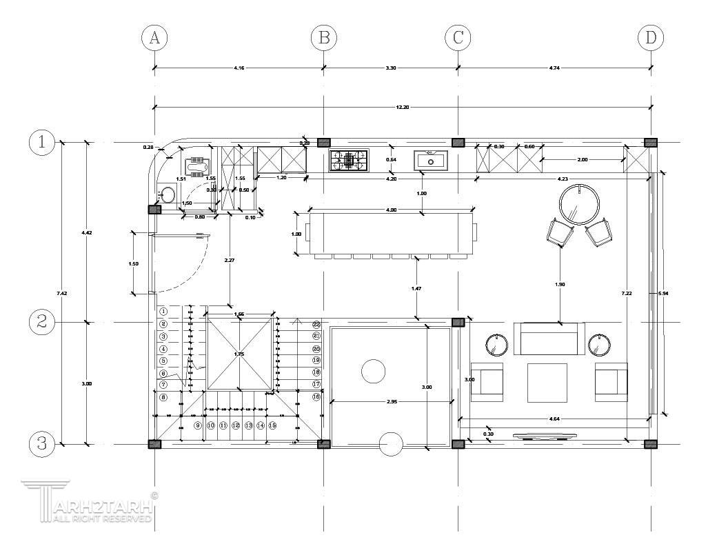
اطلاعات پروژه

غزال قديمي

نوع مسابقه: طراحی ویلا
سال انجام پروژه : 1400
نقش: طراح
موقعیت : فشم
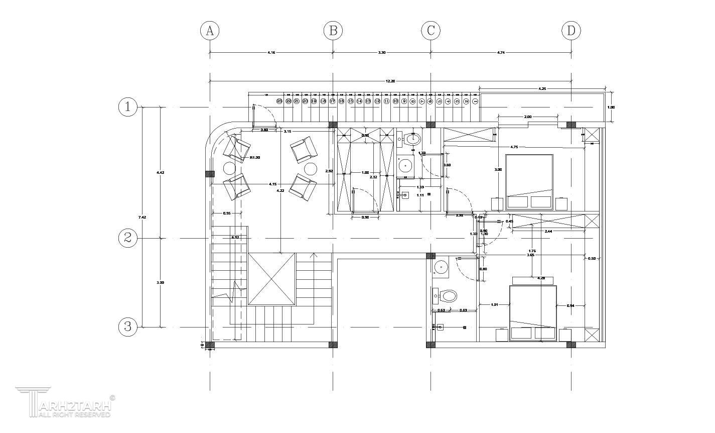
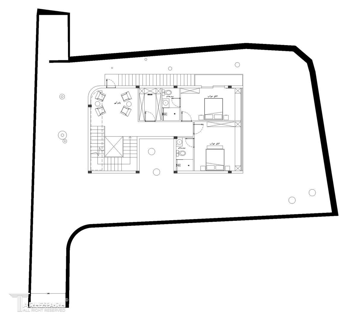
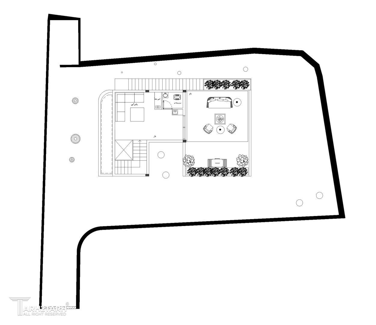
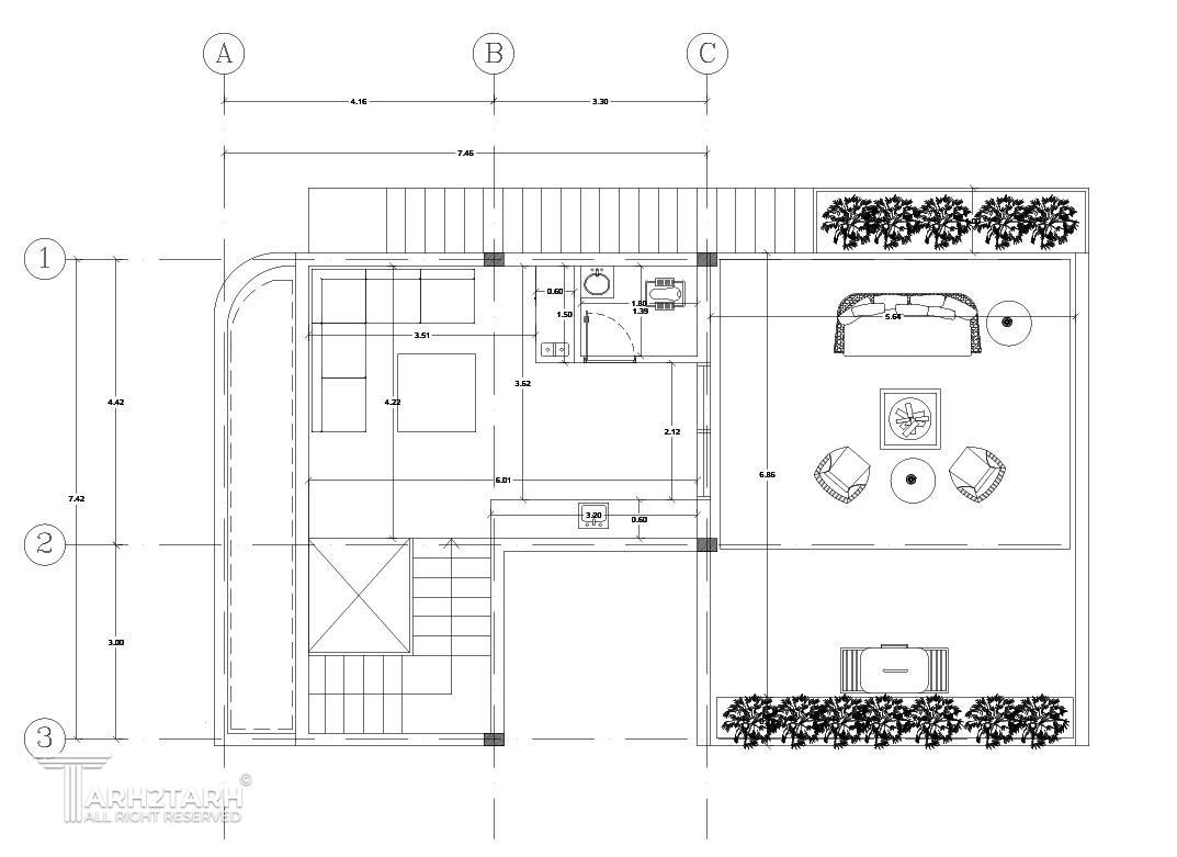
متراژ زیربنا : 210
مساحت زمین : 210
کارفرما : سلیمانی فر

موقعیت مکانی پروژه

پیشنهاد و بازخورد