مسابقه طراحی ویلا زایگان

0

اطلاعات پروژه

کاربر حذف شده

نوع مسابقه: طراحی ویلا
سال انجام پروژه : 1400
نقش: طراح
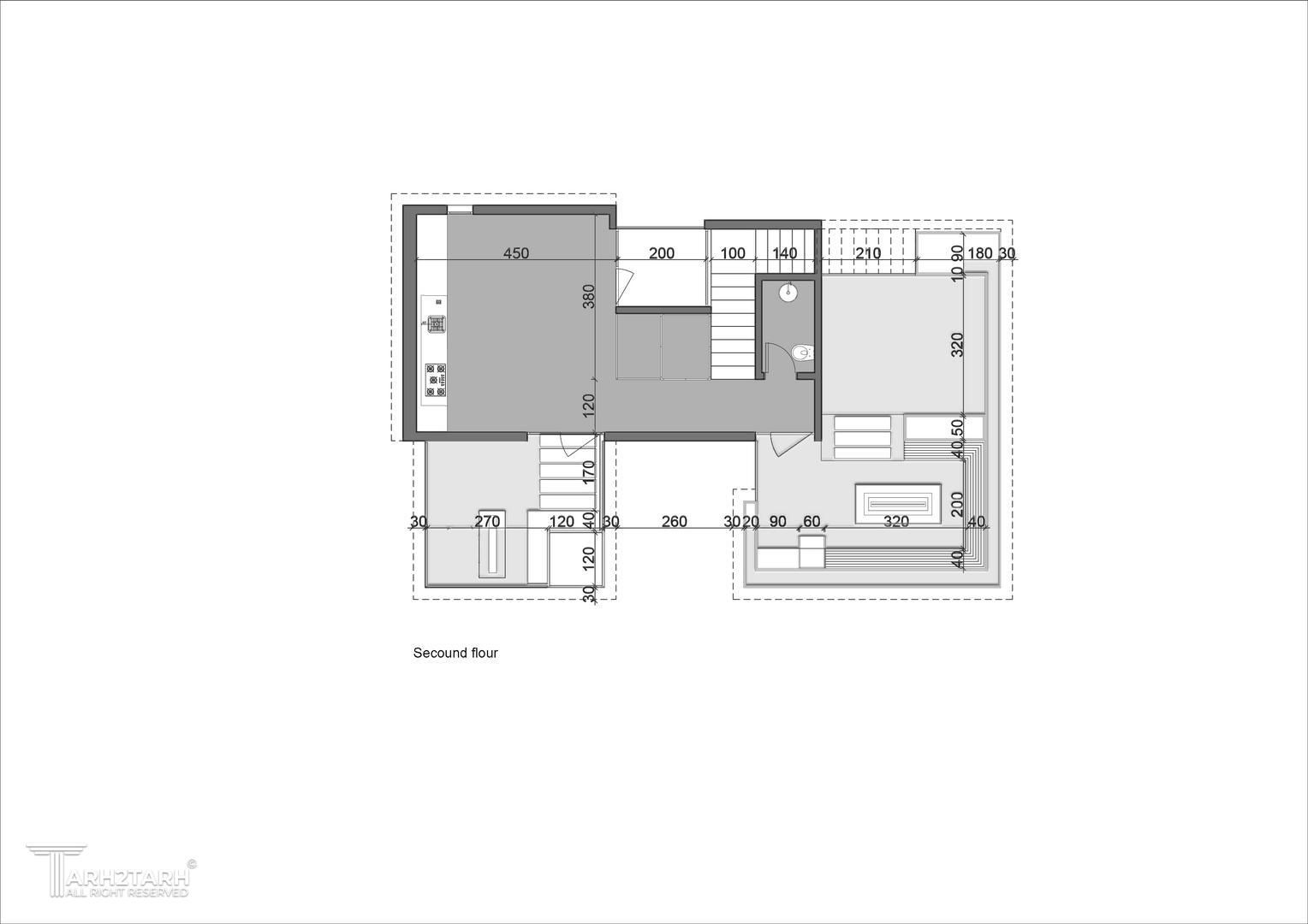
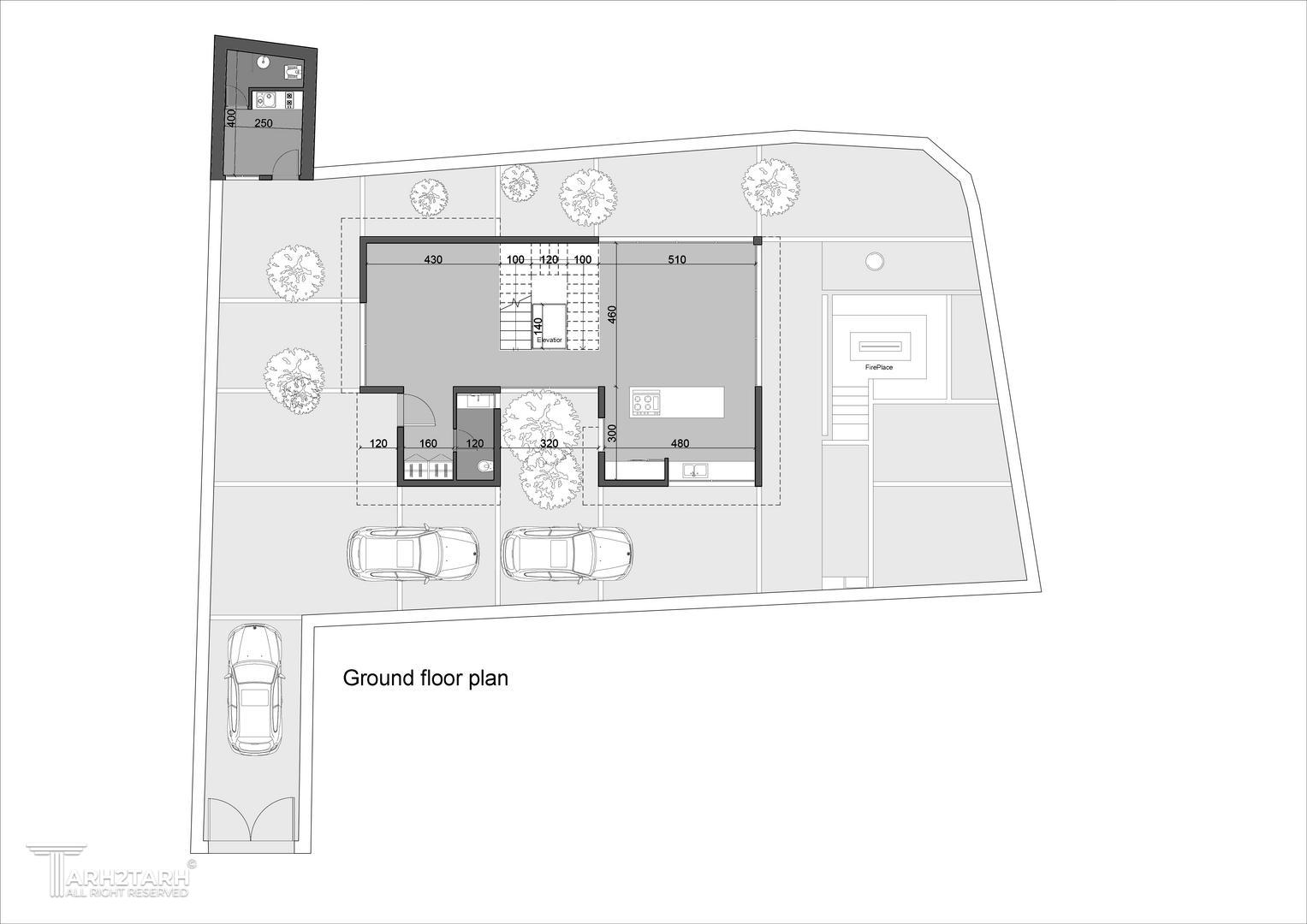
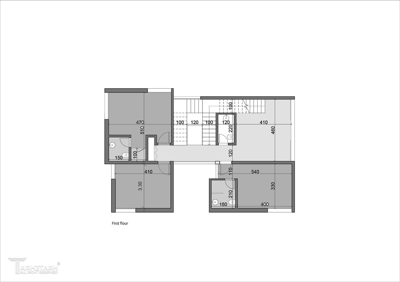
موقعیت : فشم
متراژ زیربنا : 210
مساحت زمین : 210
کارفرما : سلیمانی فر

موقعیت مکانی پروژه

پیشنهاد و بازخورد