رامسر
1400
0

اطلاعات پروژه

نوع پروژه : طرح اجرایی

توضیحات پروژه

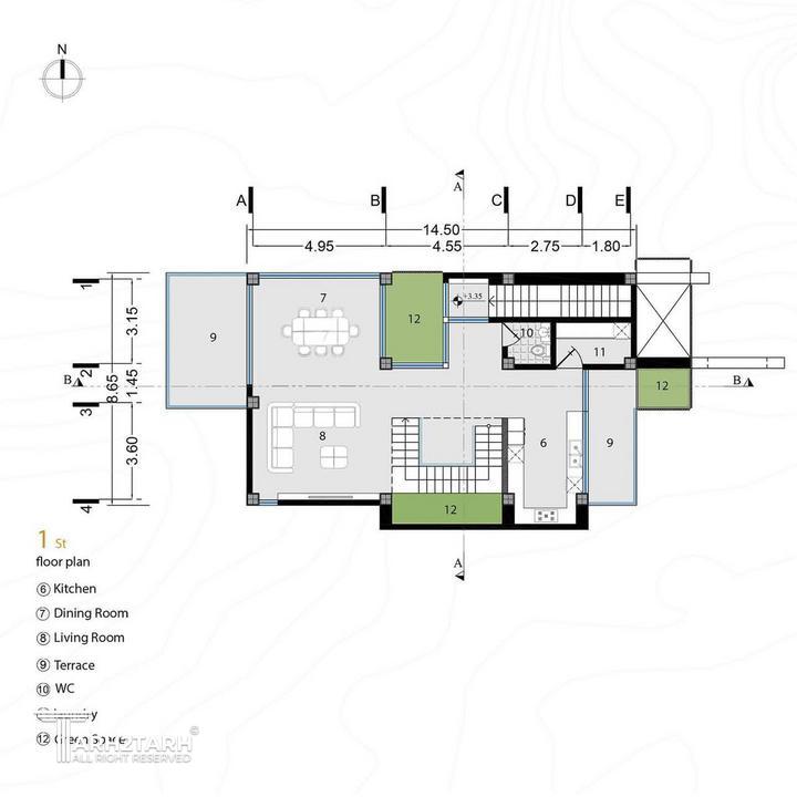
ویلای دیدار تمرینی است برای به چالش کشیدن سازمان دهی فضای سکونت موقت یا همان ویلای ییلاقی. این پروژه،ویلایی خانوادگی در روستای اربه کله و منطقه سرلیماک واقع شده است. مساحت زمین ۳۳۰ متر و مساحت کل ۴۳۸ متر مربع و در حال اجرا می باشد.

نظرات
پیشنهاد و بازخورد