اطلاعات پروژه

نقش : طراح ارشد
نوع پروژه : طرح اجرایی
وضعیت : در حال اجرا
کاربری : ساختمان مسکونی
متراژ زمین : 130
متراژ زیربنا : 100
سبک‌های طراحی: مدرن

خدمات ارائه شده توسط طراح

خدمات طراحی و کانسپت
دکوراسیون داخلی
طراحی کانسپت (معماری)
طراحی نقشه فاز دو معماری
طراحی پلان (نقشه معماری) فاز 1
طراحی داخلی
خدمات مشاوره و امکانسنجی
مشاوره فاز صفر و امکان‌سنجی پروژه
خدمات دیگر
رندرینگ

توضیحات پروژه

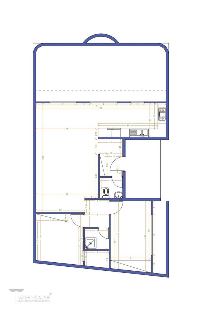
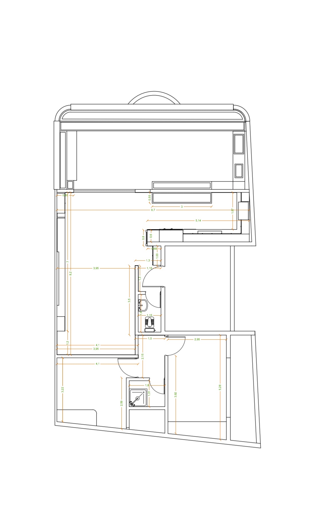
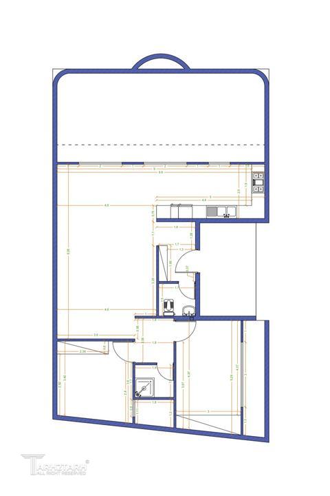
کارفرما مجوز ساخت یک واحد روی طبقه آخرو گرفته بودن و با چالش چیدمان فضایی نسبت به محدودیت جای آشپزخانه و تاسیسات خانه و الزام دو خواب بودن ، روبه رو بودن با توجه به خواسته های کارفرما طراحی انجام شد

موقعیت مکانی پروژه

نظرات
پیشنهاد و بازخورد