فردیس
1398
0

اطلاعات پروژه

نقش : طراح ارشد
کارفرما : جناب آقای میرکی
نوع پروژه : طرح اجرایی
وضعیت : اجرا شده
کاربری : ساختمان مسکونی ساختمان تجاری
متراژ زمین : 225
متراژ زیربنا : 940
سبک‌های طراحی: ایرانی سنتی مدرن

خدمات ارائه شده توسط طراح

خدمات طراحی و کانسپت
مدل‌سازی سه‌بعدی معماری
طراحی درب
طراحی پارامتریک و الگوریتمیک
طراحی نقشه فاز دو معماری
طراحی پلان (نقشه معماری) فاز 1
طراحی نما
طراحی داخلی
خدمات مشاوره و امکانسنجی
مشاوره آتش‌نشانی
خدمات فنی و مهندسی
اخذ تاییدیه نقشه پلان
خدمات دیگر
رندرینگ

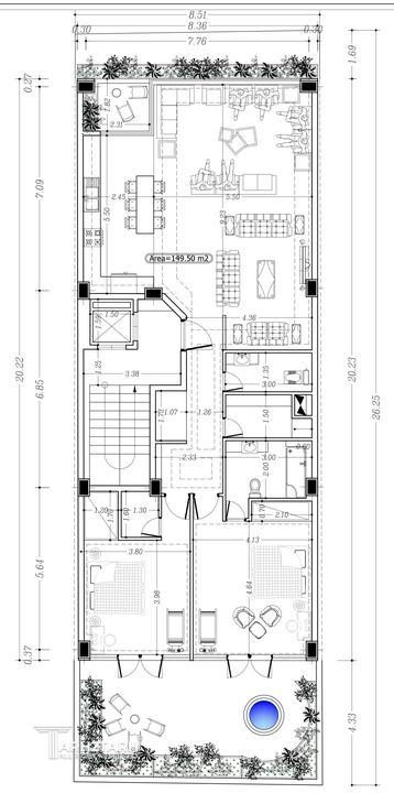
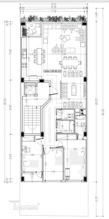
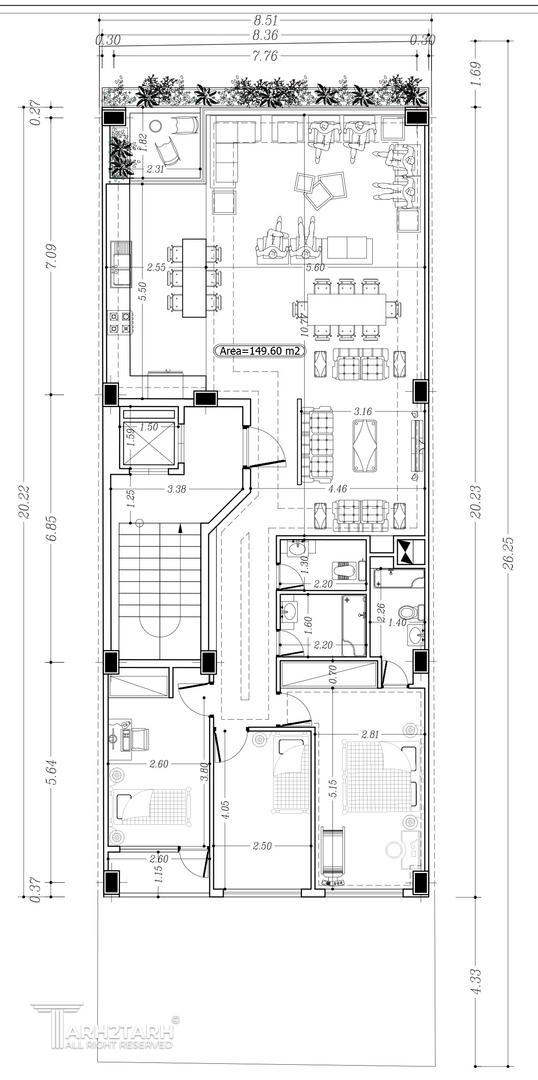
توضیحات پروژه

در دل بافت شهری فردیس، ساختمانی قد علم کرده که نه فقط برای سکونت، بلکه برای تجربه‌ی زندگی طراحی شده. چهار طبقه‌ی مسکونی، هرکدام یک واحد مستقل، در کنار همکف تجاری و پارکینگ، ترکیبی از خلوت و هم‌زیستی را رقم می‌زنند. اما آنچه این بنا را از همسایگانش متمایز می‌کند، پوستِ زنده‌ی آن است: نمایی آجری که با الگویی پارامتریک، سطحی ناهموار و پویا خلق کرده—مثل تنفس دیوارها در ریتم زندگی روزمره. این بازی با آجر، نه تزئین صرف، بلکه دعوتی‌ست به لمس، به توقف، به تأمل.

موقعیت مکانی پروژه

نظرات
پیشنهاد و بازخورد