کرج
1393
0

اطلاعات پروژه

نقش : طراح ارشد
کارفرما : آقای کشاورز
نوع پروژه : طرح اجرایی
وضعیت : اجرا شده
کاربری : ساختمان مسکونی
متراژ زمین : 170
متراژ زیربنا : 700
سبک‌های طراحی: یونانی کلاسیک

خدمات ارائه شده توسط طراح

خدمات طراحی و کانسپت
مدل‌سازی سه‌بعدی معماری
خدمات مشاوره و امکانسنجی
مشاوره آتش‌نشانی
خدمات دیگر
رندرینگ

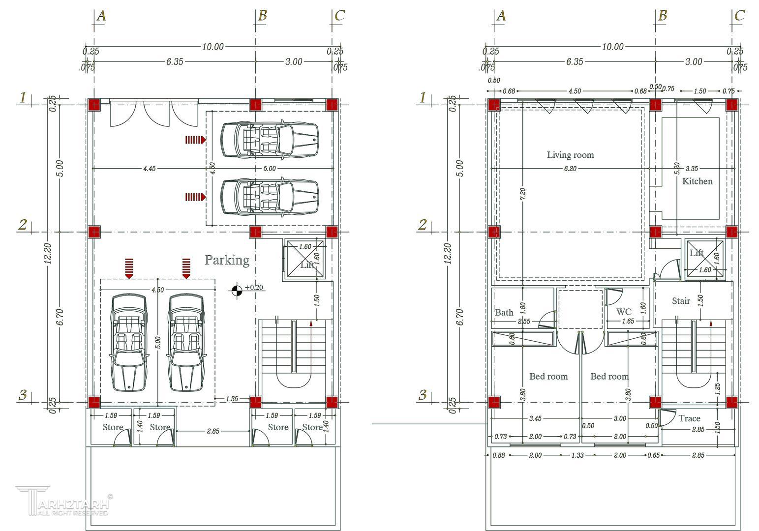
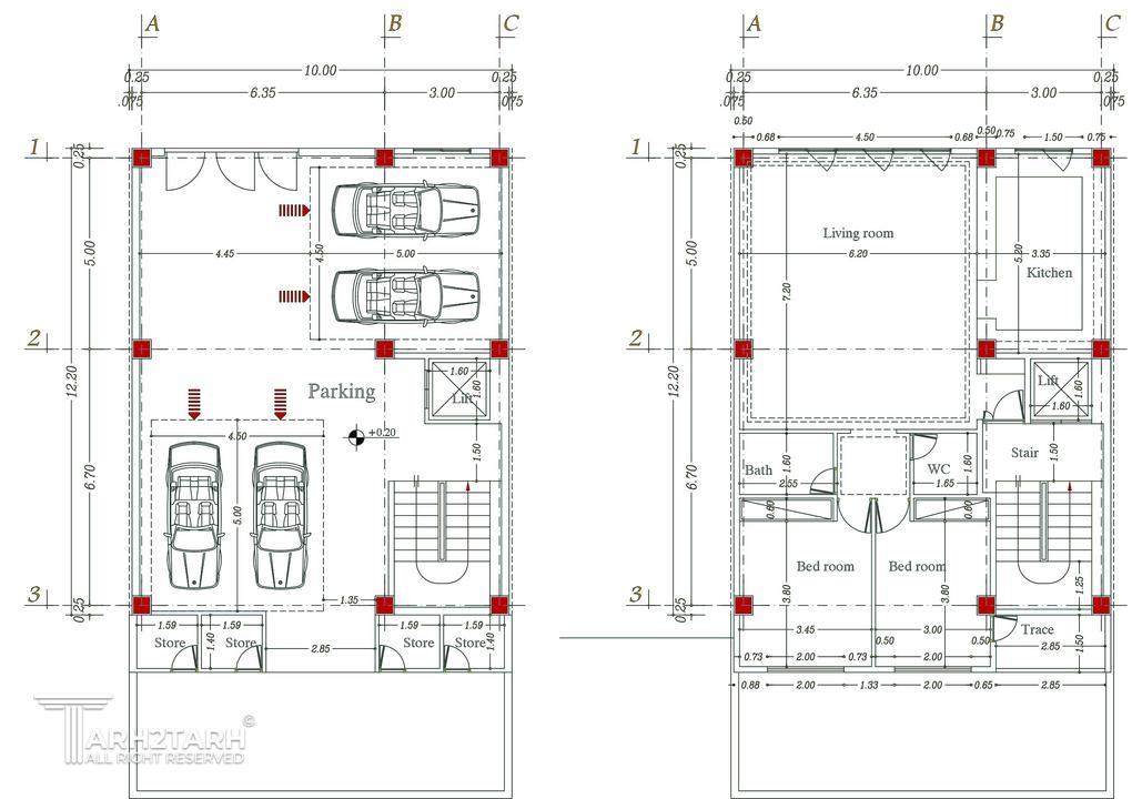
توضیحات پروژه

طراحی ساختمان زمانی در اختیار بنده قرار گرفت که بصورت نیمه کاره بود و با کلی ایراد، که در نهایت یک طرح خوب برای ساختمان انجام شد.

موقعیت مکانی پروژه

نظرات
پیشنهاد و بازخورد