دماوند
1399
0

اطلاعات پروژه

نقش : موارد دیگر
نوع پروژه : طرح اجرایی
وضعیت : اجرا نشده
کاربری : ویلا
متراژ زمین : 800
متراژ زیربنا : 1100
سبک‌های طراحی: مدرن

خدمات ارائه شده توسط طراح

خدمات طراحی و کانسپت
طراحی منظر، فضای سبز، لند اسکیپ، روف گاردن و محوطه
طراحی کانسپت (معماری)
طراحی پلان (نقشه معماری) فاز 1
طراحی نما

توضیحات پروژه

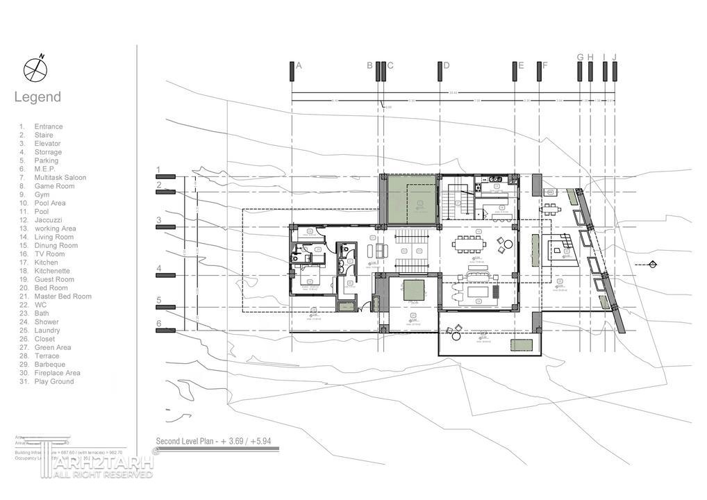
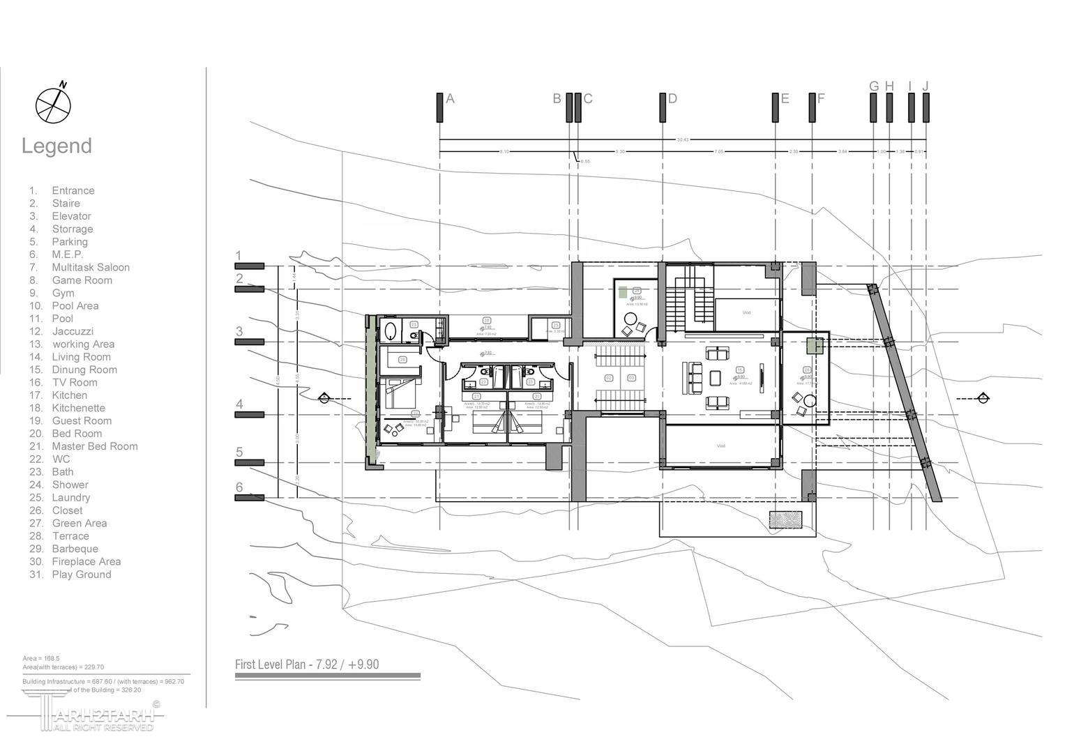
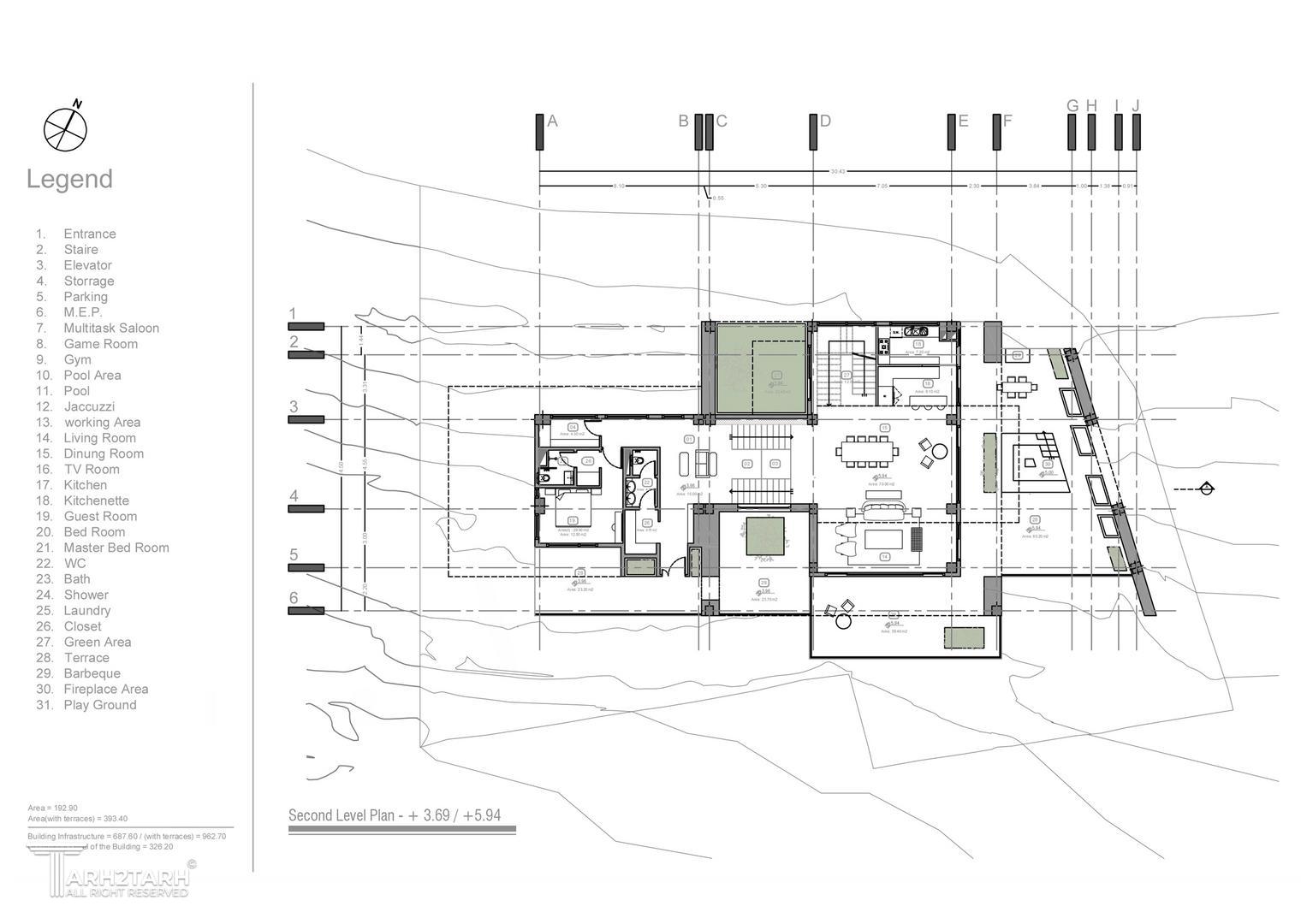
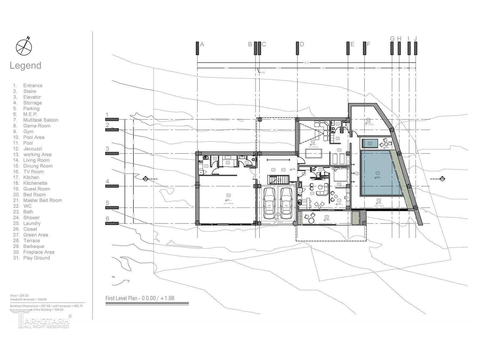
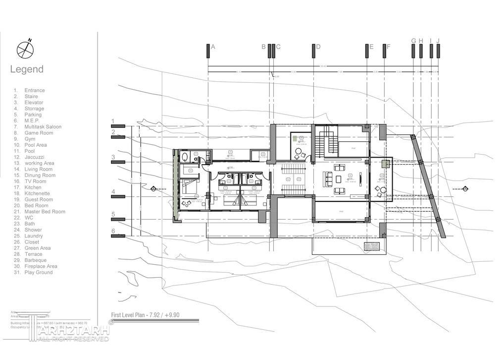
پروژه ویلای بادامستان در گیلاوند تهران در زمینی در یک شهرک خصوصی  تعریف شده است. ابتدای امر در برقراری دیالوگ مناسب با شیب زمین،  ساختار پلکانی برای بنا در راس طراحی قرار گرفته است. در ادامه بر اساس خواسته اصلی مالک مبنی بر برخورداری از فضاهای جانبی مانند اتاق بازی، استخر، سالن مراسم و یک سوییت جداگانه - هم‌ارزش با فضاهای موسوم در یک ویلا - و در عین حال داشتن حریم جداگانه برای هر یک از این فضاها، طراحی حول زون ارتباطی عمودی ساختمان (پله و آسانسور) شکل گرفته‌است که با توجه به کشیدگی شرقی-غربی زمین و در راستای استفاده هر چه بیشتر از نور و منظره جنوبی، عملکردها به طور جداگانه در نیم‌طبقه‌هایی در شرق و غرب رون جانمایی شده‌اند تا در عین ارتباط، هر یک دارای حریم نیز باشند. هم‌چنین با توجه به همجواری سایت با ویلاهای مشرف در ضلع شمالی،  بازشوهای ساختمان در این  جهت محدود شده و در مقابل، ضلع جنوبی به سمت دید 180 درجه به چشم‌انداز زیبا آن کاملا گشوده شده است. از طرفی دیواره بلند شرقی مانع اشراف همسایه این امتداد به تراس بزرگ اصلی و بخش نیمه خصوصی ویلا خواهد بود. پله در این پروژه به عنوان یک زون جدا تعریف شده است. زون میانی و واسط که کاربری های مختلف ویلا را در نیم طبقه های شرقی و غربی به هم مرتبط می کند. تاثیر ان در نما هم در غالب یک حجم شیشه ای برون گرا در میانه ساختمان مشهود می باشد کهن که توسط تک درخت بلند جلوی ان مورد تاکید واقع می شود

موقعیت مکانی پروژه

نظرات
پیشنهاد و بازخورد