اطلاعات پروژه

نقش : طراح ارشد
کارفرما : جناب اقای سلطانی
نوع پروژه : طرح اجرایی
وضعیت : اجرا شده
کاربری : ساختمان مسکونی
متراژ زمین : 180
متراژ زیربنا : 320
سبک‌های طراحی: یونانی کلاسیک

خدمات ارائه شده توسط طراح

خدمات طراحی و کانسپت
مدلسازی
دکوراسیون داخلی
طراحی نورپردازی
طراحی نقشه سازه (فولادی، بتنی)
طراحی نقشه سازه
طراحی نقشه تأسیسات مکانیکی
طراحی نقشه تأسیسات الکتریکی
طراحی سیستم برق اضطراری و تابلو برق
طراحی سیستم‌های گرمایش، سرمایش، تهویه
طراحی کابینت
طراحی سردرب
طراحی درب
طراحی نقشه فاز دو معماری
طراحی پلان (نقشه معماری) فاز 1
طراحی نما
طراحی داخلی
خدمات مشاوره و امکانسنجی
مشاوره تحلیل سایت پروژه
مشاوره فاز صفر و امکان‌سنجی پروژه
مشاوره و تجزیه و تحلیل فنی و اصلاحات نقشه‌ها برای تطبیق با ضوابط ارگانهای ذیربط
مشاوره طراحی اقلیمی
مشاوره انتخاب مصالح و تکنولوژی‌های نوین ساختمانی
مشاوره‌های مرتبط با مجوزات (ضوابط تراکم، سطح اشغال، پروانه ساختمان، ماده 5، کمیسیون های شهرداری، پایان کار و …)
مشاوره آتش‌نشانی
تطبیق نقشه‌ها با ضوابط شهرداری
خدمات اجرایی و نظارتی
نظارت بر اجرای معماری (نظام مهندسی)
نظارت بر اجرای سازه (نظام مهندسی)
نظارت بر اجرای تاسیسات الکتریکی (نظام مهندسی)
نظارت بر اجرای تاسیسات مکانیکی (نظام مهندسی)
خدمات فنی و مهندسی
اخذ تاییدیه نقشه پلان
تهیه نقشه فاز دو شهرداری
تهیه نقشه فاز دو نظام مهندسی
رندرینگ و خدمات فنی
مدل سازی
انجام تغییرات نقشه معماری
ارائه برگه تعهد تهیه نقشه سازه
ارائه برگه تعهد تهیه نقشه تاسیسات مکانیکی
ارائه برگه تعهد تهیه نقشه تاسیسات الکتریکی
تهیه نقشه معماری فاز دو اجرایی
تهیه نقشه سازه فاز دو اجرایی
تهیه نقشه تاسیسات مکانیکی فاز دو اجرایی
تهیه نقشه تاسیسات برقی فاز دو اجرایی
ارائه برگه تعهد تهیه نقشه معماری
خدمات دیگر
رندرینگ

توضیحات پروژه

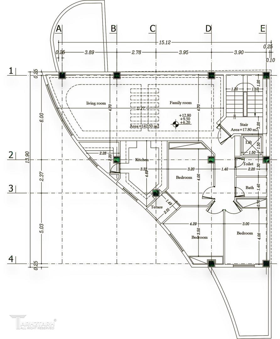
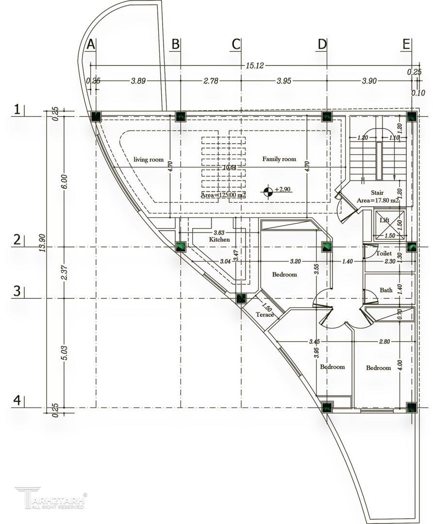
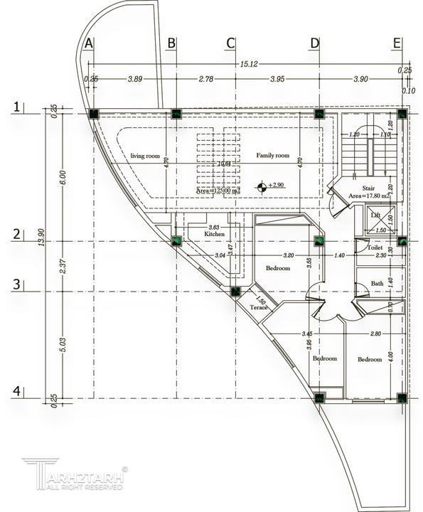
یک ساختمان با چالش زمینی کاملا نا گونیا در پیچ خیابان که بر اساس همین شرایط یک معماری منحصر به فرد طراحی شده است.

موقعیت مکانی پروژه

نظرات
پیشنهاد و بازخورد