اطلاعات پروژه

نقش : مدیر پروژه
کارفرما : آزمایشگاه فنی و مکانیک خاک
نوع پروژه : طرح اجرایی
وضعیت : اجرا نشده
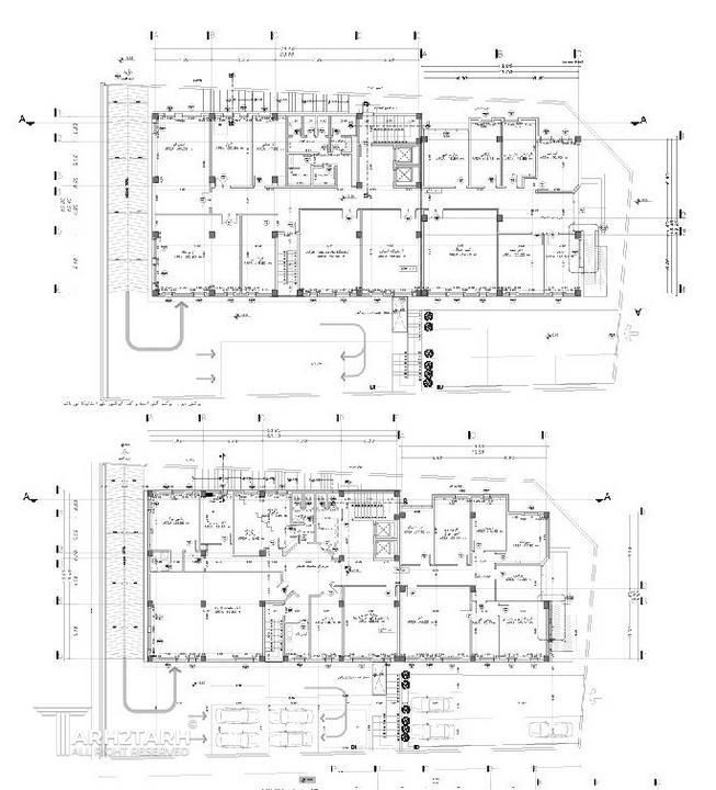
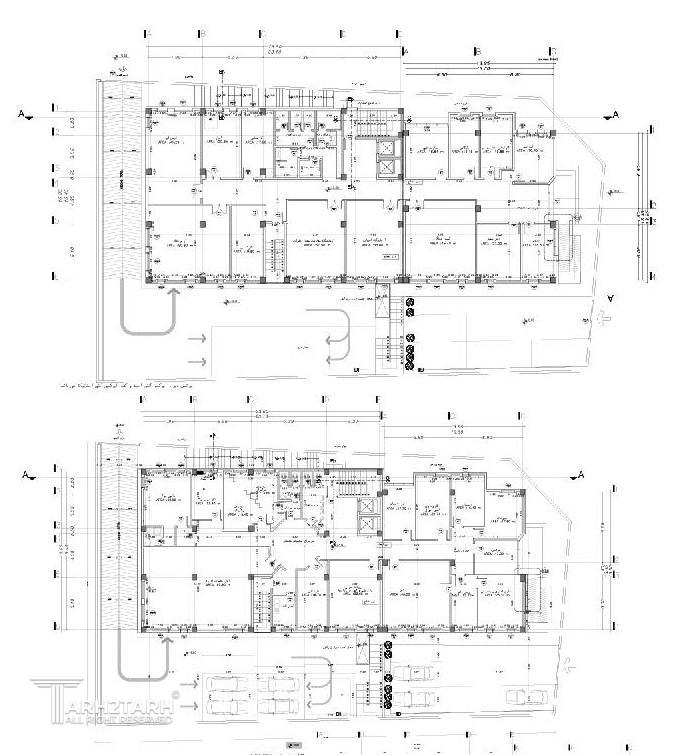
کاربری : ساختمان اداری
متراژ زمین : 1225
متراژ زیربنا : 1680
سبک‌های طراحی: مدرن

خدمات ارائه شده توسط طراح

خدمات طراحی و کانسپت
طراحی پلان (نقشه معماری) فاز 1
خدمات مشاوره و امکانسنجی
مشاوره و تجزیه و تحلیل فنی و اصلاحات نقشه‌ها برای تطبیق با ضوابط ارگانهای ذیربط
خدمات اجرایی و نظارتی
موارد دیگر
خدمات فنی و مهندسی
تهیه نقشه‌های اجرایی پروژه برای دریافت مجوزهای لازم (شهرداری، نظام مهندسی و …)
خدمات دیگر
رندرینگ

توضیحات پروژه

ساختمان مرکزی آزمایگاه فنی و مکانیک خاک استان البرز مجموعه تخصصی است که فعالیتهای اداری و آزمایش خاک ومصالح ساختمانی در انجام میشود.

موقعیت مکانی پروژه

نظرات
پیشنهاد و بازخورد