دماوند
1403
0

اطلاعات پروژه

نقش : طراح ارشد
کارفرما : آقای احمدی
نوع پروژه : طرح اجرایی
وضعیت : اجرا نشده
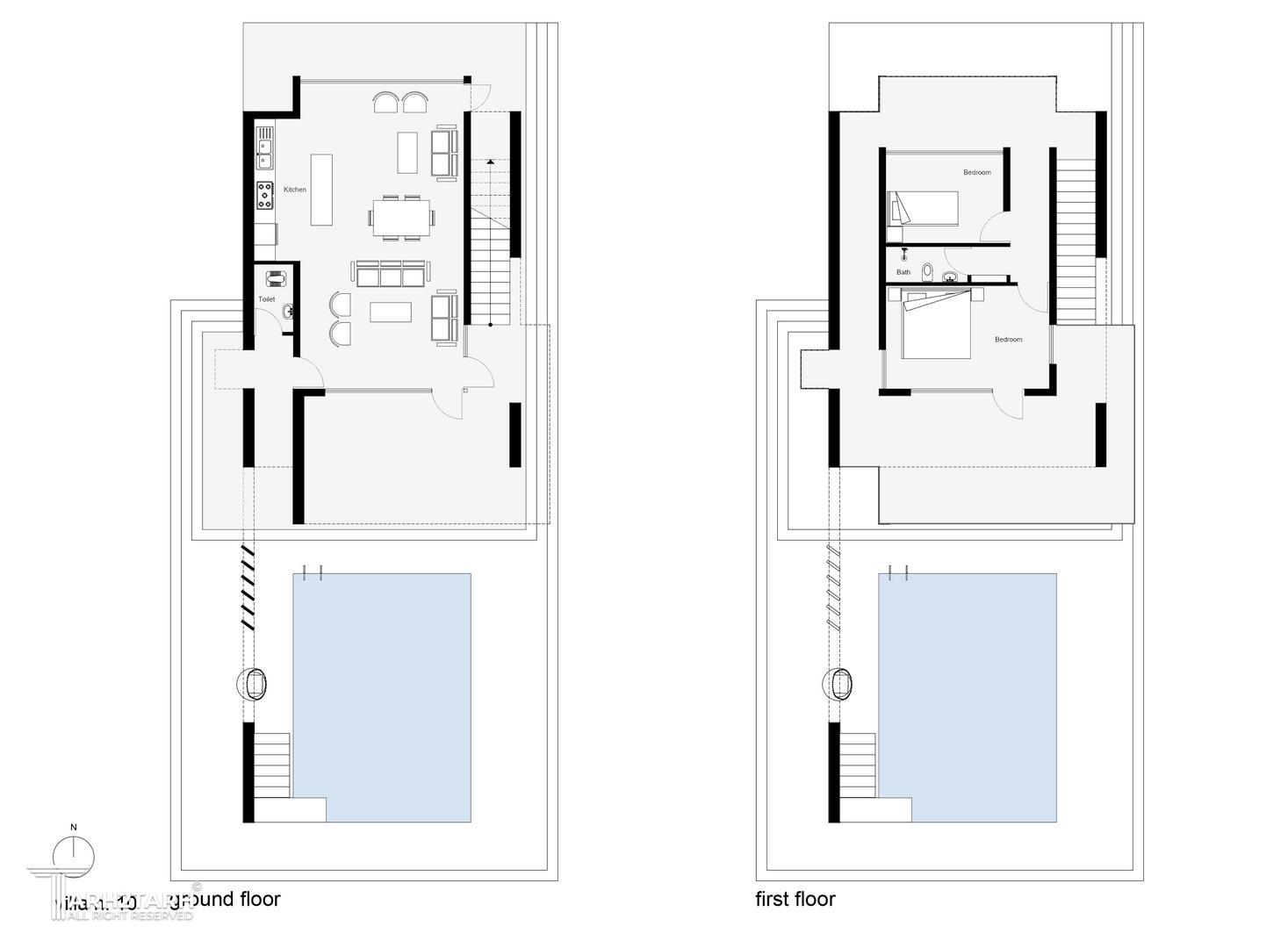
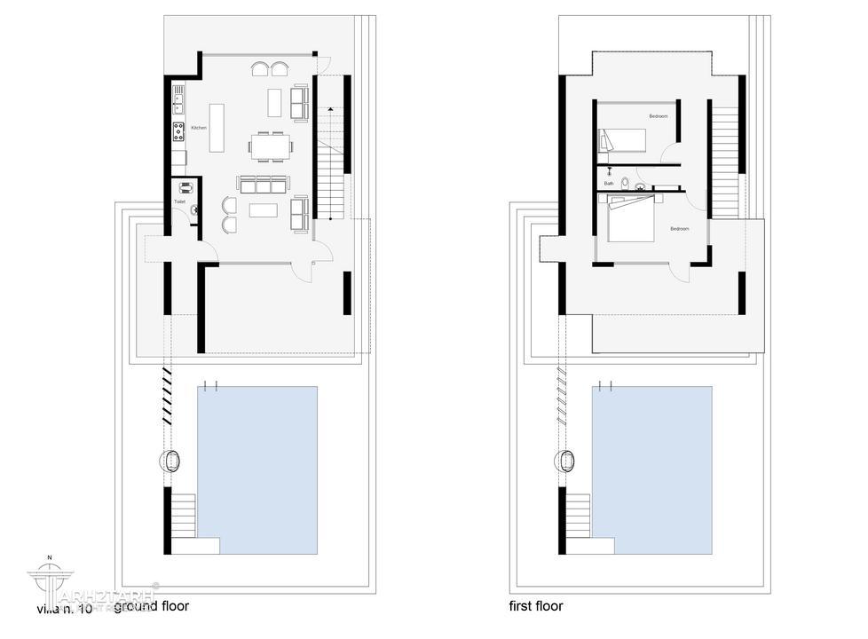
کاربری : ویلا
متراژ زمین : 3000
متراژ زیربنا : 180
سبک‌های طراحی: مینیمال

خدمات ارائه شده توسط طراح

خدمات طراحی و کانسپت
طراحی پلان (نقشه معماری) فاز 1
طراحی نما

توضیحات پروژه

خواسته کارفرما طراحی یک ویلای کوچک مقیاس با فضاهای حداقلی و کمترین هزینه

موقعیت مکانی پروژه

نظرات
پیشنهاد و بازخورد