اطلاعات پروژه

نقش : طراح ارشد
کارفرما : آقای اکیج
نوع پروژه : طرح اجرایی
وضعیت : اجرا شده
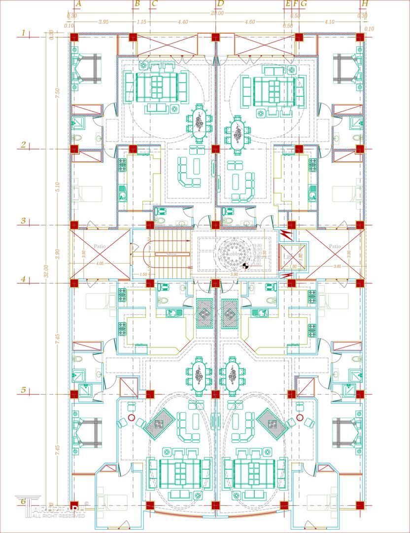
کاربری : ساختمان مسکونی
متراژ زمین : 1000
متراژ زیربنا : 4000
سبک‌های طراحی: یونانی کلاسیک

خدمات ارائه شده توسط طراح

خدمات طراحی و کانسپت
مدلسازی
دکوراسیون داخلی
طراحی نقشه فاز دو معماری
طراحی پلان (نقشه معماری) فاز 1
طراحی نما
خدمات مشاوره و امکانسنجی
مشاوره تحلیل سایت پروژه
مشاوره فاز صفر و امکان‌سنجی پروژه
مشاوره و برنامه‌ریزی تعیین کاربری پروژه
مشاوره و تجزیه و تحلیل فنی و اصلاحات نقشه‌ها برای تطبیق با ضوابط ارگانهای ذیربط
مشاوره طراحی اقلیمی
مشاوره در زمینه توسعه پایدار
مشاوره انتخاب مصالح و تکنولوژی‌های نوین ساختمانی
مشاوره‌های مرتبط با مجوزات (ضوابط تراکم، سطح اشغال، پروانه ساختمان، ماده 5، کمیسیون های شهرداری، پایان کار و …)
مشاوره مالی و بودجه‌ای
مشاوره آتش‌نشانی
مشاوره برندسازی و هویت پروژه
مشاوره و تهیه شناسنامه فنی و ملکی پروژه
خدمات فنی و مهندسی
اخذ تاییدیه نقشه پلان
تهیه نقشه فاز دو شهرداری
تهیه نقشه فاز دو نظام مهندسی
رندرینگ و خدمات فنی
مدل سازی
انجام تغییرات نقشه معماری
ارائه برگه تعهد تهیه نقشه سازه
ارائه برگه تعهد تهیه نقشه تاسیسات مکانیکی
ارائه برگه تعهد تهیه نقشه تاسیسات الکتریکی
ارائه گزارش مکانیک خاک
کنترل و اصلاح نقشه‌های معماری، سازه و ...
سیستم مانیتوریگ سلامت ساختمان در زلزله (قابلیت استفاده دوباره از ساختمان در زلزله)
تهیه نقشه معماری فاز دو جهت ارائه به سازمان نظام مهندسی
تهیه نقشه سازه فاز دو جهت ارائه به سازمان نظام مهندسی
تهیه نقشه تاسیسات برقی فاز دو جهت ارائه به سازمان نظام مهندسی
تهیه نقشه تاسیسات مکانیکی فاز دو جهت ارائه به سازمان نظام مهندسی
تهیه نقشه معماری فاز دو اجرایی
تهیه نقشه سازه فاز دو اجرایی
تهیه نقشه تاسیسات مکانیکی فاز دو اجرایی
تهیه نقشه تاسیسات برقی فاز دو اجرایی
تهیه نقشه‌های اجرایی پروژه برای دریافت مجوزهای لازم (شهرداری، نظام مهندسی و …)
ارائه برگه تعهد تهیه نقشه معماری
خدمات دیگر
رندرینگ

توضیحات پروژه

ساختمانی در منطقه خوش آب و هوای شهر کرج با معماری کلاسیک

موقعیت مکانی پروژه

نظرات
پیشنهاد و بازخورد