مسابقه طراحی نما و پلان پرستو عظیمیه

0

اطلاعات پروژه

... ....

نوع مسابقه: طراحی مسکونی
سال انجام پروژه : 1399
نقش: طراح
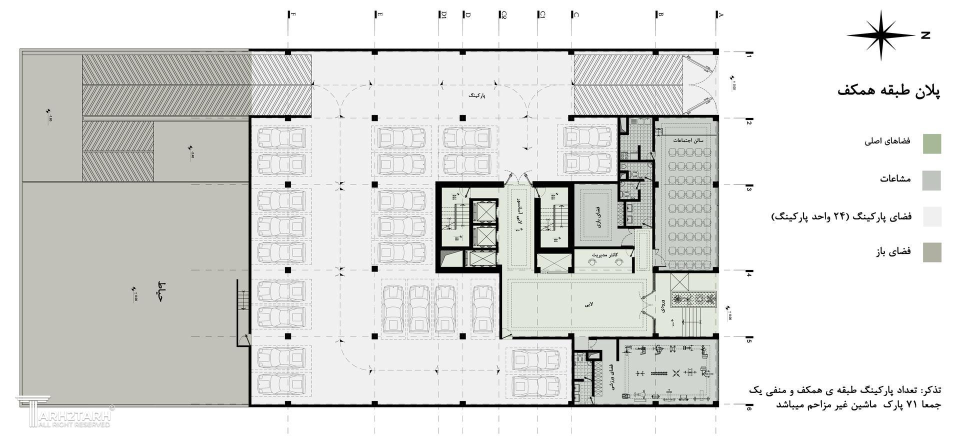
موقعیت : کرج
متراژ زیربنا : 8000
مساحت زمین : 2000
کارفرما : امیر امینی

موقعیت مکانی پروژه

پیشنهاد و بازخورد