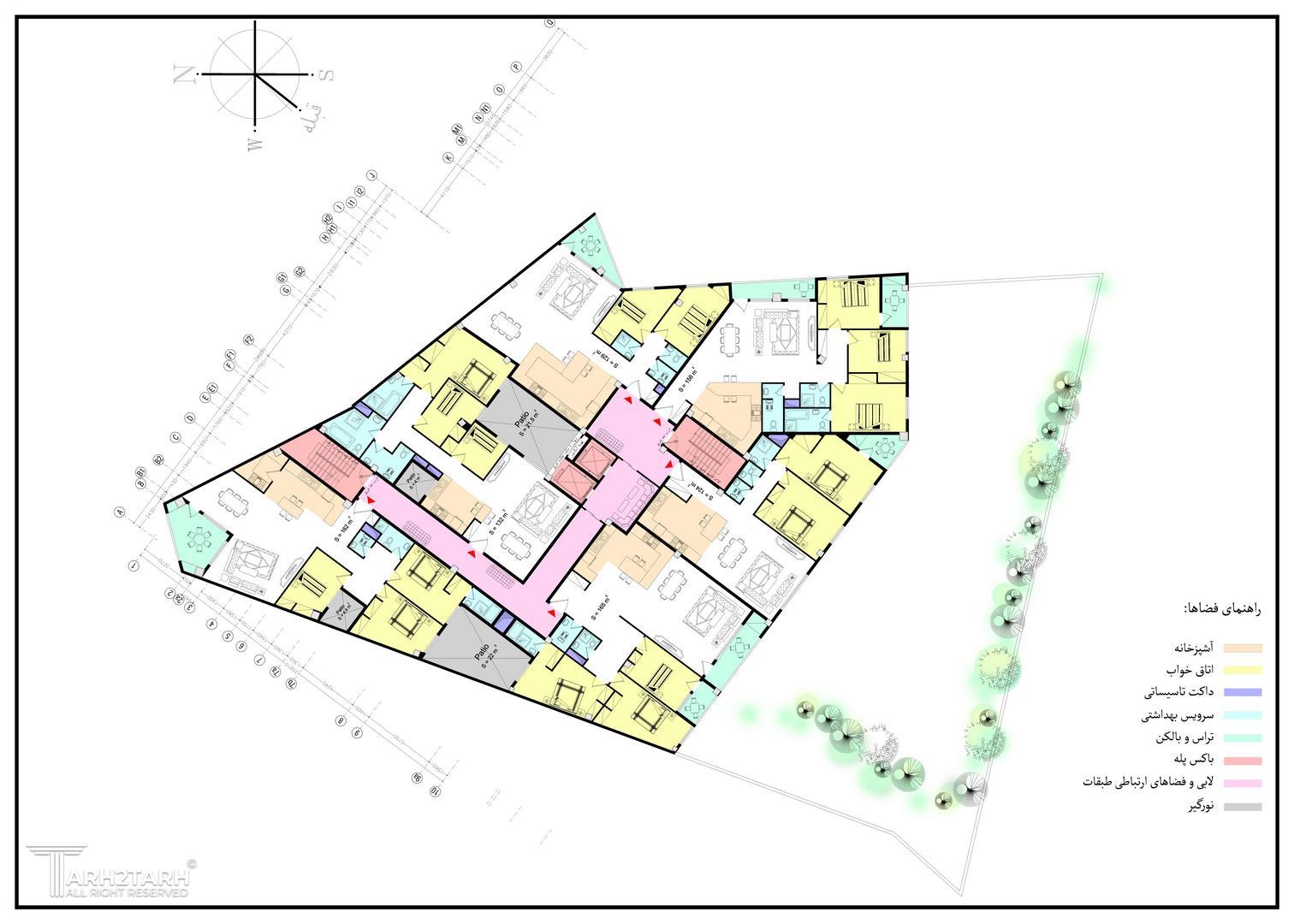
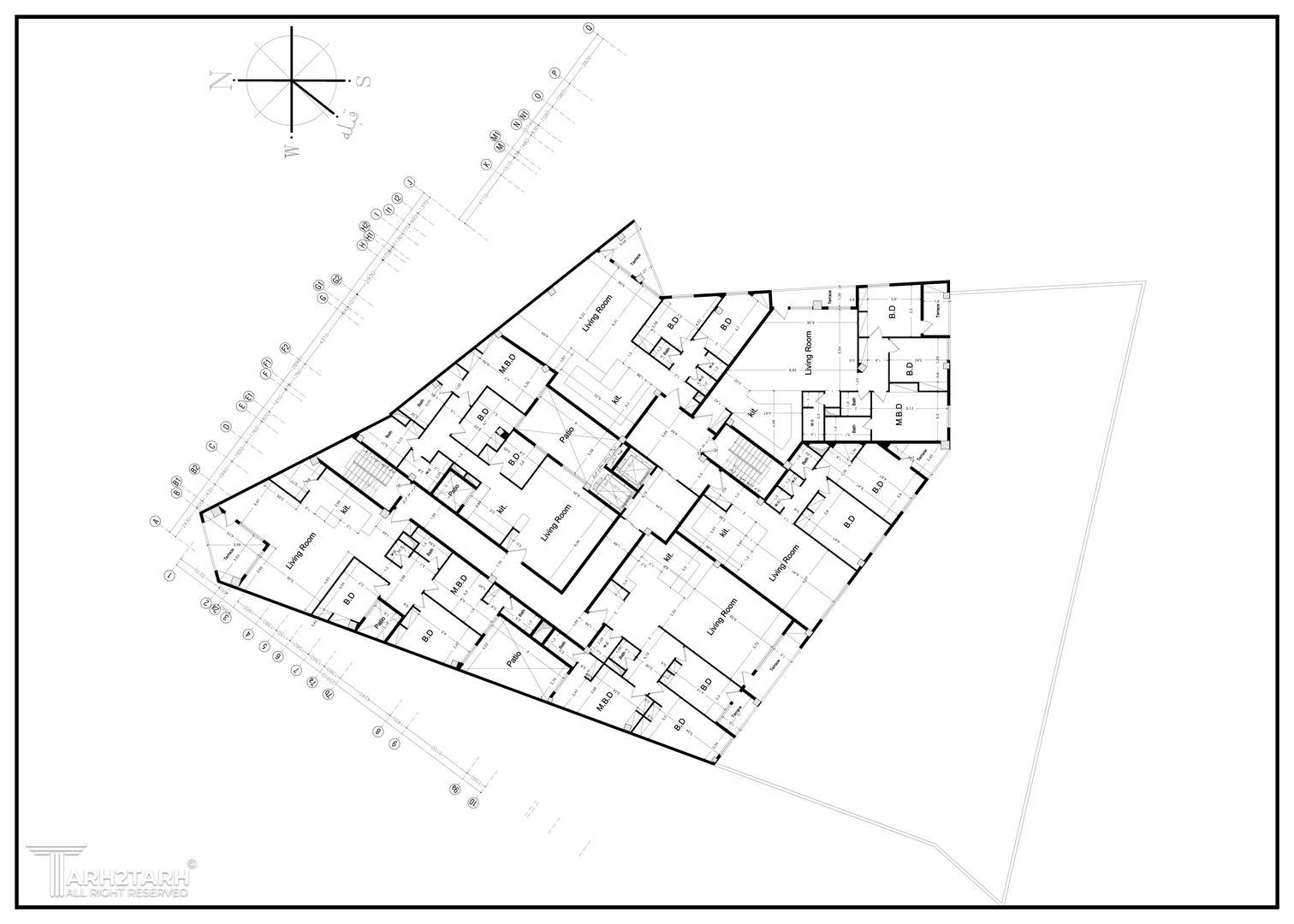
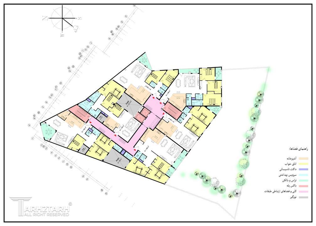
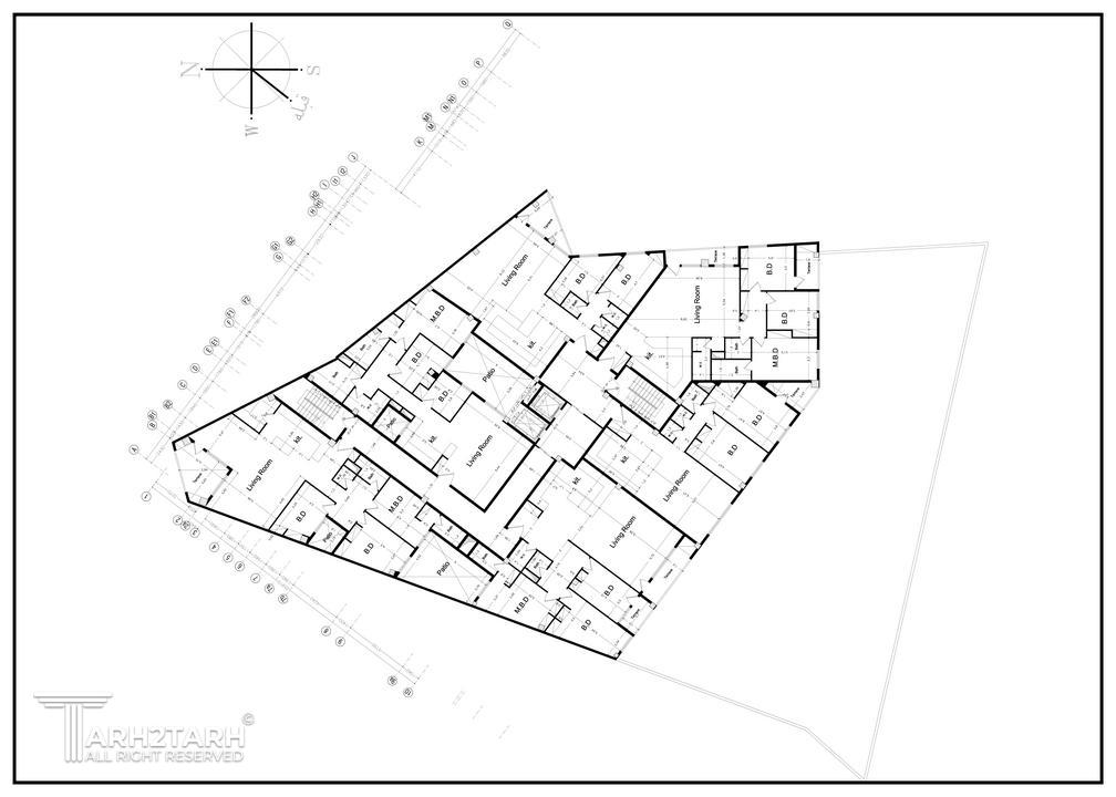
مسابقه طراحی پلان قیطریه رزیدنس2

0

اطلاعات پروژه

فرزانه زلفي

نوع مسابقه: طراحی مسکونی
سال انجام پروژه : 1400
نقش: طراح
موقعیت : تهران
متراژ زیربنا : 980
مساحت زمین : 8000
کارفرما : امیر امینی

موقعیت مکانی پروژه

پیشنهاد و بازخورد