تهران
1396
0

اطلاعات پروژه

نقش : مسئول پروژه
کارفرما : بنیاد خیریه رفاه مسلمین
نوع پروژه : طرح اجرایی
وضعیت : اجرا شده
کاربری : مدرسه مرکز آموزشی
متراژ زمین : 5000
متراژ زیربنا : 8000
سبک‌های طراحی: ایرانی سنتی

خدمات ارائه شده توسط طراح

خدمات طراحی و کانسپت
طراحی کانسپت (معماری)
طراحی نما
خدمات مشاوره و امکانسنجی
مشاوره تحلیل سایت پروژه
مشاوره فاز صفر و امکان‌سنجی پروژه
مشاوره در زمینه توسعه پایدار
خدمات اجرایی و نظارتی
نظارت عالیه بر اجرا
خدمات فنی و مهندسی
تهیه نقشه‌های اجرایی پروژه برای دریافت مجوزهای لازم (شهرداری، نظام مهندسی و …)
خدمات دیگر
طراحی و ساخت ماکت
رندرینگ

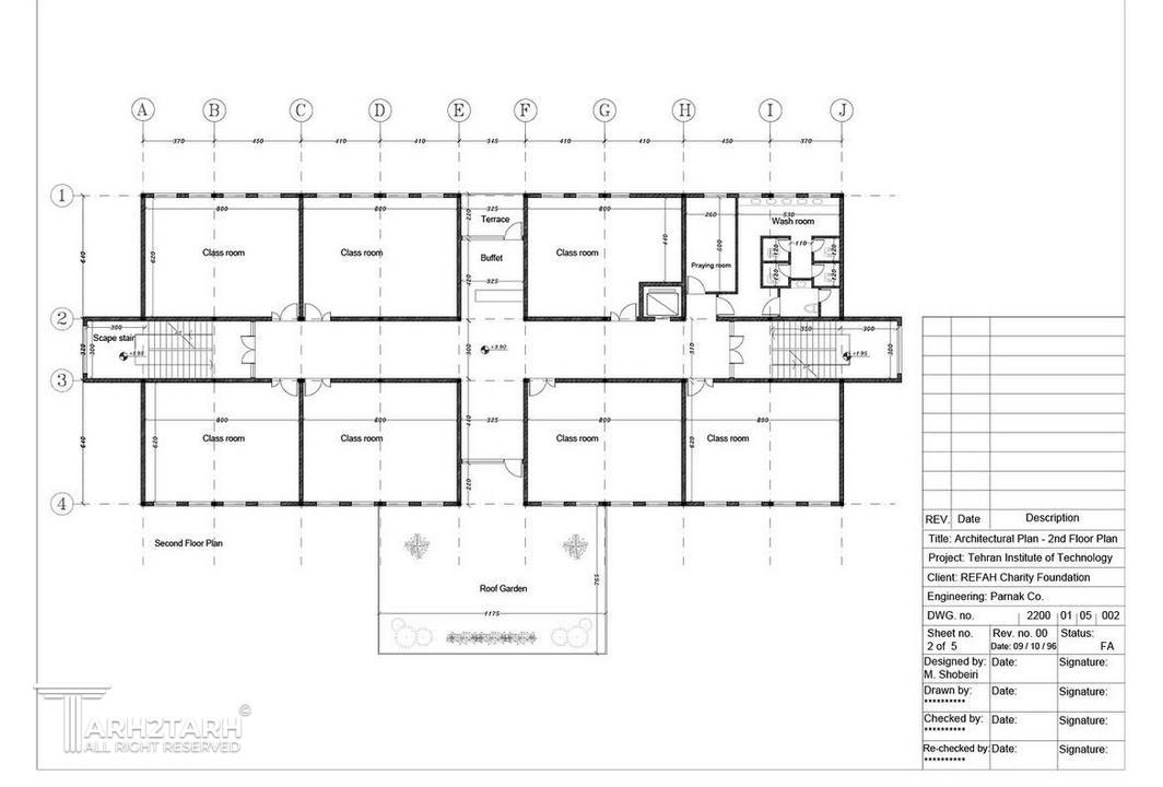
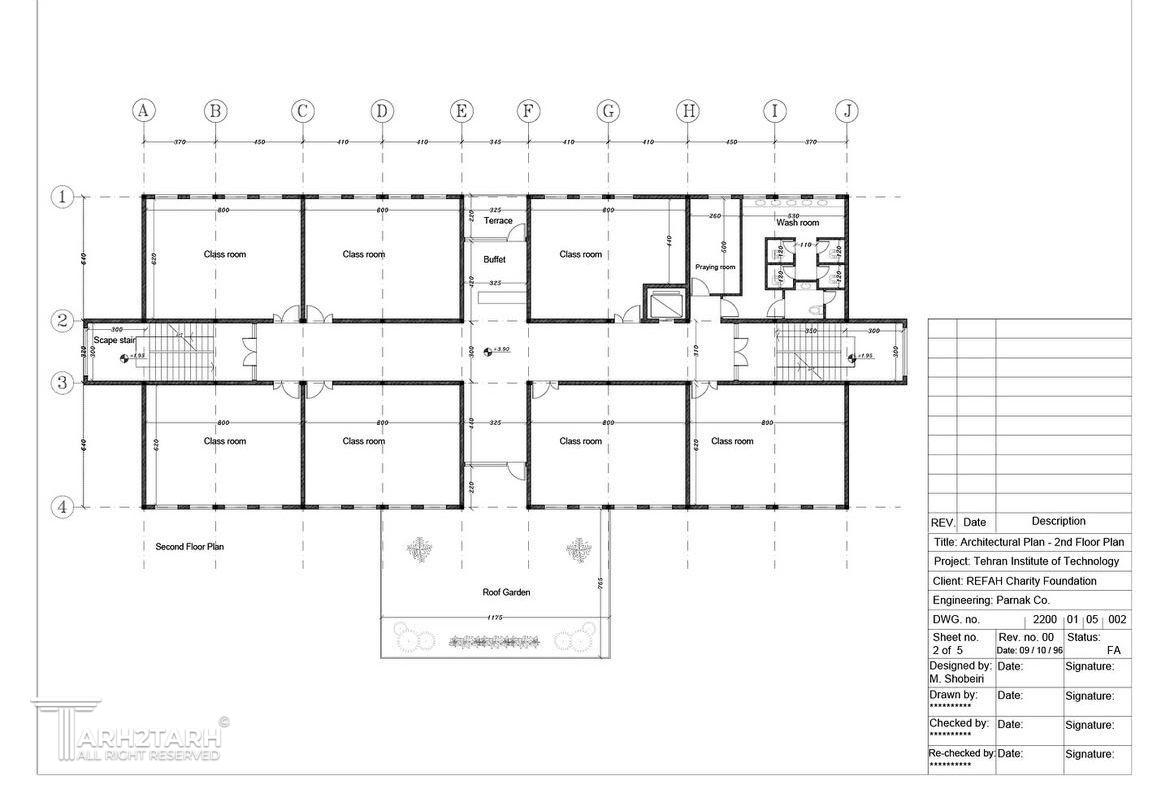
توضیحات پروژه

طراحی و ساخت ساختمان مدرسه حکیمیه، هدف کلی پروژه بهره برداری از یک فضای آموزشی به عنوان مجتمعی از نیازهای آموزشی بود که در قالب فرم های ساده در ترکیب با یکدیگر مفهوم خود را نمایان می کرد.

موقعیت مکانی پروژه

نظرات
پیشنهاد و بازخورد