مسابقه طراحی پلان قیطریه رزیدنس 1

0

اطلاعات پروژه

کاربر حذف شده

نوع مسابقه: طراحی مسکونی
سال انجام پروژه : 1400
نقش: طراح
موقعیت : تهران
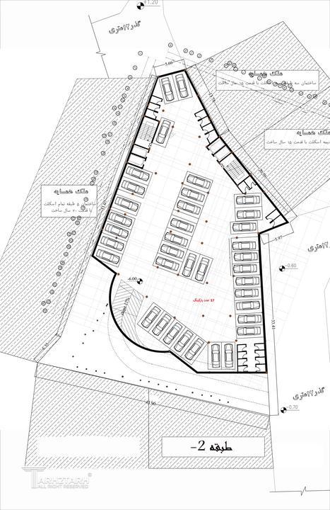
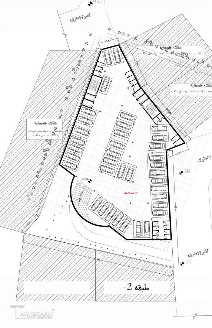
متراژ زیربنا : 980
مساحت زمین : 8000
کارفرما : امیر امینی

موقعیت مکانی پروژه

پیشنهاد و بازخورد