اطلاعات پروژه

نوع پروژه : طرح اجرایی

توضیحات پروژه

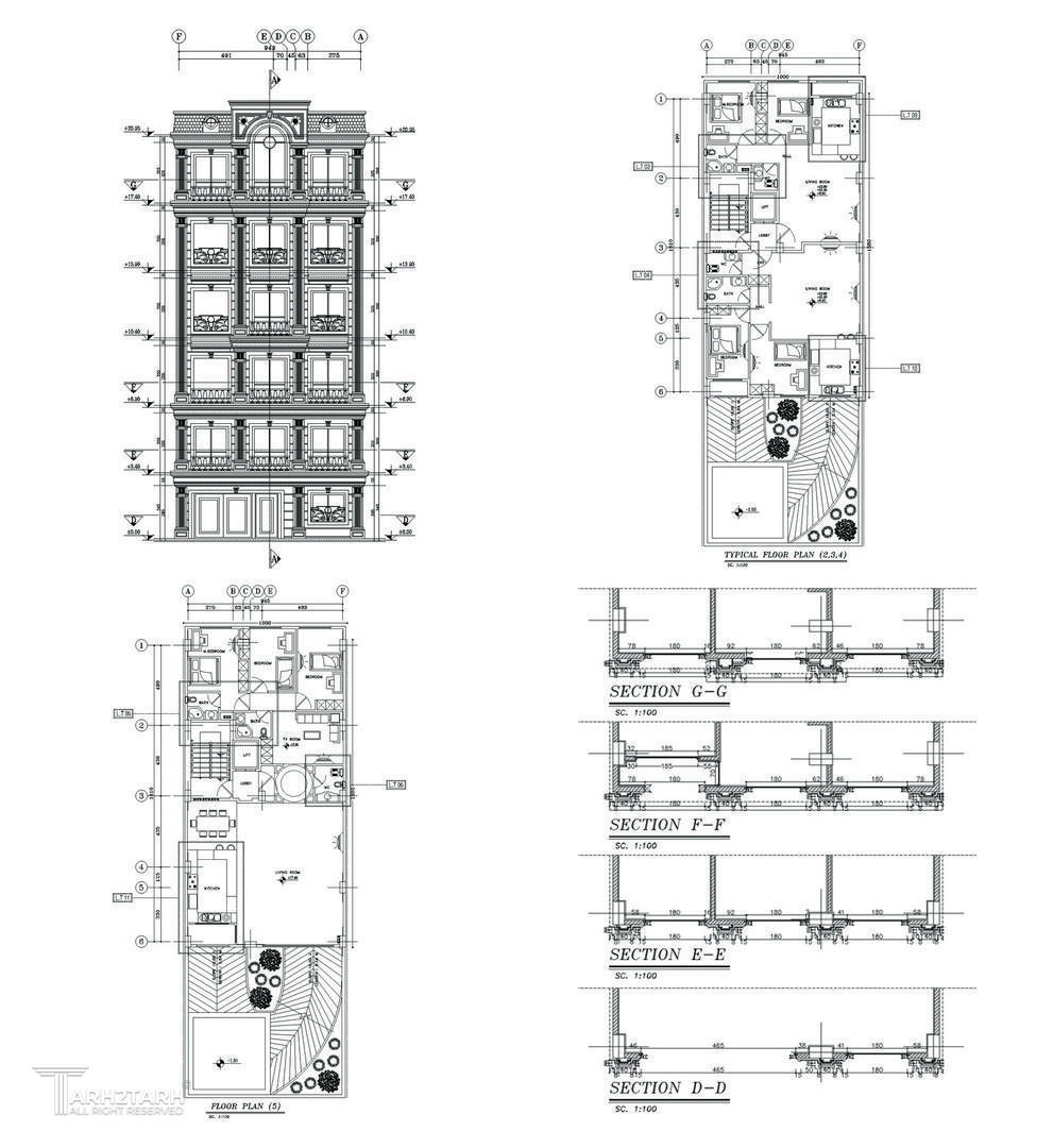
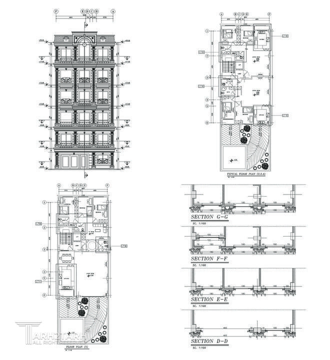
<p>پروژه مسکونی گلزار پونک</p><p>زیربنا کل : 1400 مترمربع&nbsp;</p><p>تعداد طبقات کل : 7 طبقه</p><p>8 واحد 80 مترمربع</p><p>1 واحد 160 متر مربع</p>

نظرات
پیشنهاد و بازخورد