مسابقه پروژه طراحی نما و پلان دربند

0

اطلاعات پروژه

فرشاد مریدی

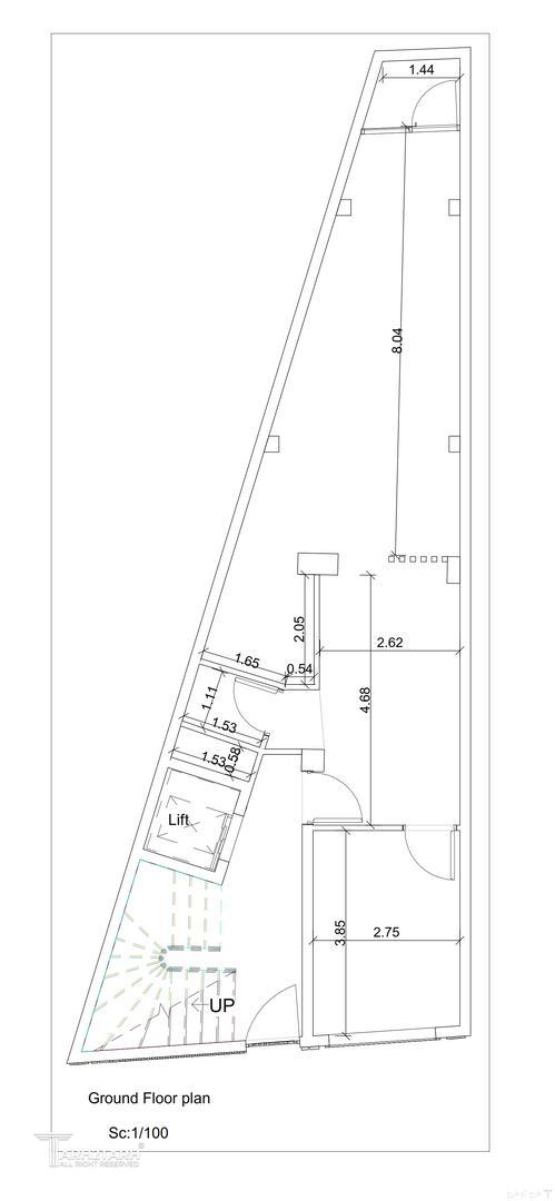
نوع مسابقه: طراحی تجاری/ اداری
سال انجام پروژه : 1399
نقش: طراح
موقعیت : تهران
متراژ زیربنا : 167
مساحت زمین : 150
کارفرما :

موقعیت مکانی پروژه

پیشنهاد و بازخورد