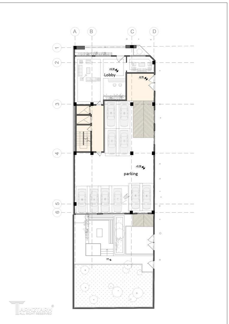
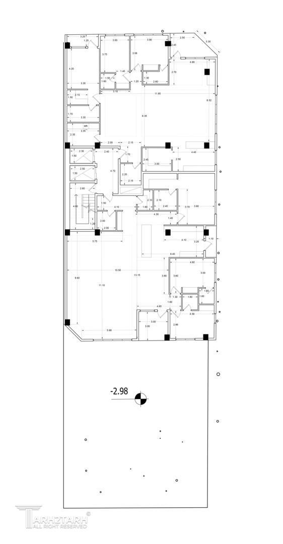
مسابقه طراحی پلان و نما دلارا

0

اطلاعات پروژه

Farbod Mehraz

نوع مسابقه: طراحی مسکونی
سال انجام پروژه : 1400
نقش: طراح
موقعیت : تهران
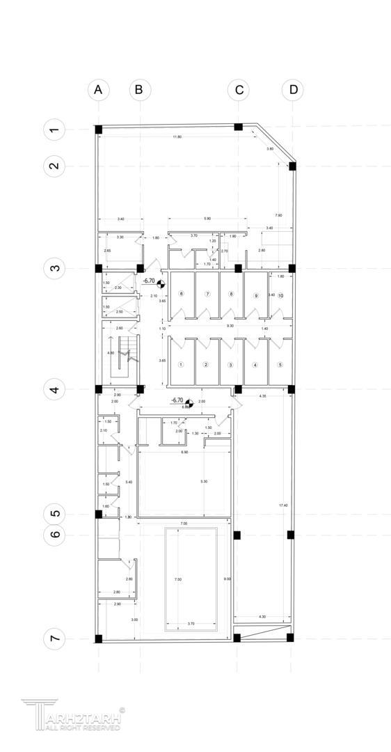
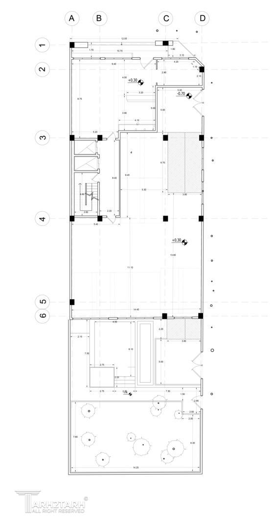
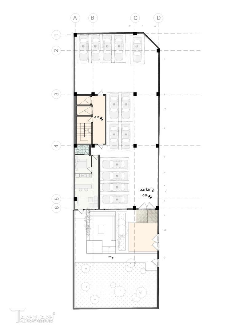
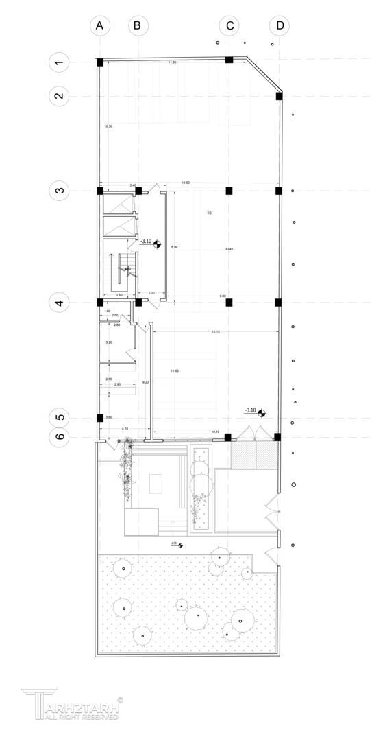
متراژ زیربنا : 4000
مساحت زمین : 480
کارفرما : مسعود خوببخت

موقعیت مکانی پروژه

پیشنهاد و بازخورد